查看完整案例


收藏

下载
FENGDONG CREATIVE INDUSTRY PARK
ARCHITECTURE | LANDSCAPEURBAN AESTHETICS | 03′29″
项目背景
诗经里创想源项目位于西安市西咸新区沣东生态湿地公园旁,紧邻沣河。项目性质为办公园区。由于基地临近公园,自然景观优美,视野开阔,拥有绝佳的环境资源;同时,基地南侧200M左右为“诗经里”-沣滨水镇项目,建筑风格为汉唐仿古商业街,处于基地建筑可视范围内。因此,如何利用好自然景观资源,让建筑融于环境当中,同时建筑风格与已有建筑和谐统一,营造优美良好的办公环境,是本次设计的重点。
△鸟瞰实景图
“我们能做什么”基地处于一个特别的环境下,我们所考虑的出发点,不仅仅是建筑,更多的是建筑之间的空间,利用建筑的角度、轴线,形成对话和场所,以及和地形、环境相融合的多层级空间体验。
△鸟瞰实景图
在建筑手法上,采用坡屋顶的形式,通过虚实对比与体块的咬合,配以景观倒影池和下沉庭院;细密的丛竹、树影;通过材料、线条、语汇的简化,和建筑体量、块面与空间的延伸,让建筑围合形成院落,层级形成退台和屋顶花园,从而凝聚成一种优雅、静谧、和谐的院落气息,形成建筑的美学之诗。场地共七栋建筑,包括6栋办公单元和一个公共艺术展览馆。展览馆地下包含一个多功能厅,承担公共配套服务和发布会议等功能。
鸟瞰实景图“业主想做什么”在前期的沟通过程中,业主的需求和期望也在逐步的明确。低高度、独立院落、与环境结合紧密等要求被反复强调,这也与我们的设计初衷不谋而合。传统的坡屋顶形式被抽象、简化,以一种现代的语汇表达出来;连续的折面屋顶,与远处的南山剪影相呼应。
建筑屋面抽象于中国山水画,以山为形
同时,为了与南侧已建项目和谐统一,建筑的风格选用了中式的元素。从材料到语汇,都以一种全新的现代手法表达,而建筑的整体气质,仍然蕴含着传统中式建筑的内敛、含蓄、包容、沉稳,让中式的元素,贯穿建筑的每一个细节。
△建筑元素
“我们能传达什么”
△总体布局
在建筑功能上,采用散布式的建筑布局,每一个或几个建筑体量围合形成多个独立院落,让办公区都拥有私密花园。除了希望能够吸引独具品味、觅求优美环境的客户来此办公,同时我们也试图凭依设计,挖掘生态办公的最大价值和多种可能性,形成项目独有的特色和口碑。
△效果图实景图无论是中式元素,还是选材自然,亦或是坡屋顶、院落、屋顶花园,都是建筑的语汇。中式建筑的灵魂,如北宋青瓷笔洗,典雅而不张扬;将优美的自然环境与时代风貌和谐结合;结合当地文化氛围与历史文脉,营造一个优雅、绿色的生态办公园区。
△实景图
在这次设计中,设计师探讨了建筑与场地、建筑与环境、建筑与功能之间的交互与融合,通过设计的语汇,在沣河之滨增添了一抹不一样的风景。
△屋顶花园实景图
△室内实景图
△园区景观
实景图
“江流天地外,山色有无中——沣河的流水缓缓向东
远处南山的倒影叠映在夕阳下的院落中
如诗如画
细节控制
△建筑立面细节控制
建筑立面细节控制,对立面细节及完成度,设计师与幕墙单位不断沟通优化方案,同时多轮次施工图现场巡视,与现场施工人员沟通解决每一个细节问题,保证项目的完成度。
施工过程巡场
技术图纸
北立面
△南立面
△东立面
△西立面
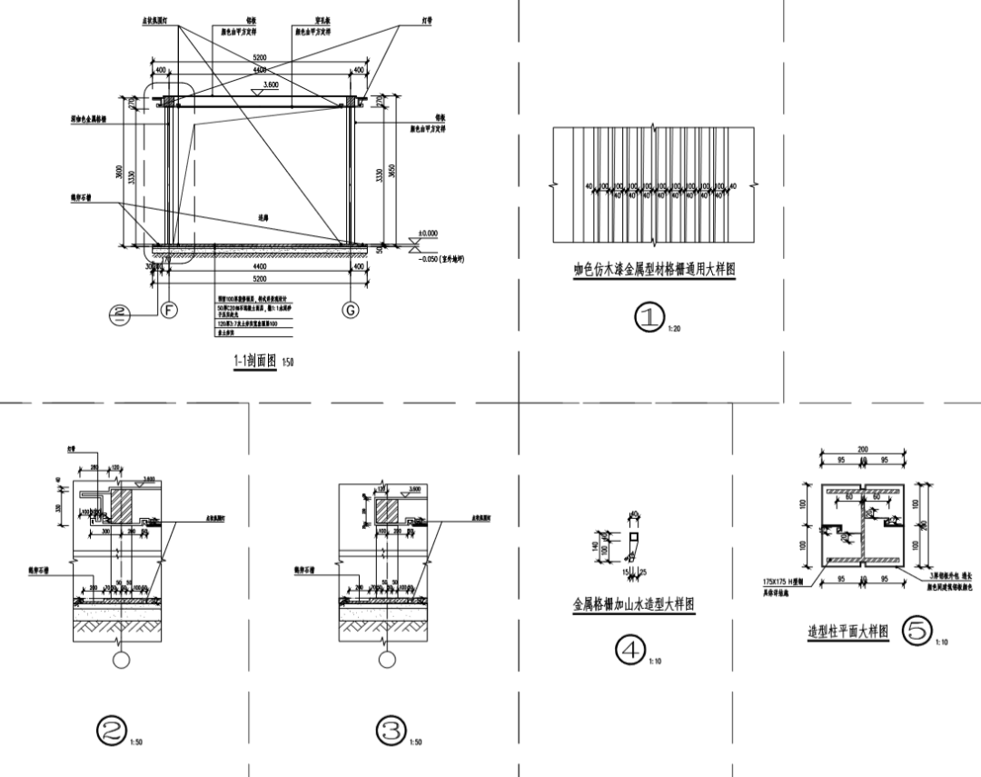
立面图钢型材柱设计1:200
连廊的造型共计541根钢型材柱子,每一根的高度都是设计师逐个标注定位好提供给深化厂家。
整体剖面图
整体剖面图
项目信息
项目名称:西安市西咸新区诗经里创想源
开发商:西安沣东城建开发有限公司
建筑设计单位:基准方中西安分公司
建成时间:2020.03
总建筑面积:19954.8㎡
项目地点:西安市西咸新区沣河东路
主创设计:冯虎 侯博仁 李风岐 王培杰 韩阳 李祎烁
建筑:徐劲 孙小平 王永星 柴皓 张博 王新力
结构:王晓梅 左恩胜 同龙 邢永超
暖通:康炜 孙海洋
电气:王海蓉 牛亚雄
给排水:张朋伟
幕墙设计:江苏鼎尚建筑装饰股份有限公司
景观:浩安生态环境建设有限公司
室内:陕西鑫鼎策饰业有限公司
建筑摄影:刘泉
视频摄制:切片儿建筑影像
展示JZFZ近年来具有社会影响力和品牌代表性的建筑作品
更多的关注人与环境、城市与艺术
探索设计对城市发展的内在联系
体现设计之于当今社会的影响
往期回顾
More
诚信/创新/服务/责任
领先的建筑与工程设计服务专家
全过程、全面专业的设计服务整合专家
客服
消息
收藏
下载
最近











































