查看完整案例


收藏

下载
溪边照影行,天在清溪底。
The sky is at the bottom of the stream.
天上有行云,人在行云里。
There are clouds in the sky, and people in the clouds.
序| SEQUENCE
当代的诗意,是在喧嚣的年代里,寻找并做些安静的事情。将东方文化精神化为空间的诗意,从室内到室外,将建筑的语言融入室内,为自然诗意的延伸打破边界。本案例是把中式元素与现代审美结合的新中式风格,打破陈旧,凝练时光中的永恒。不拘于类别,审美不限于形式,古法之中,穿越时代之潮;在文化与古的理解之上,循古人履易,玩古出新。
客来已两春,更瞻韶光早。花鸟既环合,江山复骈抱。楼形写北潭,堞势凌青岛。白云谢归雁,驰怀洛阳道《和尹懋登南楼》【唐代】张均
北方的冬天各有特色。青岛的冬天,远比不上黑土地上隆冬雪扬,苍茫大地素裹无垠的壮丽景象,这里甚至很难见到一场雪。
这里的街巷和建筑,生动地述说着城市空间形态的独特,本土同现代兼收并蓄,市井气息与国际浪潮和而不同,城市新旧场域之间多维度的张力在这里张驰有度。
承载着花城的空间记忆,一路向北,进入市北新区的核心。负贰由外入内,车库的门徐徐打开,步入负一层会客区。「松风阁」茶室的水墨艺术挂画迎面扑来,极具当代性的粗旷笔触,强调着力量与动感,层层重叠的组构在古典浓郁的金色背景上,藏露一丝定静的氛围。
设计师从建筑、景观概念切入,户外的松枝透过茶室的落地玻璃门悄悄映入室内,一株矮松则静静伫立在室内茶台旁,形成某种既定画面非对称的平衡感。
在光线暗淡的负一层空间,金色背景的挂画和透明的铂晶茶具映耀着微弱光芒,在这里独自品酌或与亲朋对饮,情思爽然,乃人间乐事。古铜色金属网围合建筑原始的梁柱结构,有效的化零为整,开拓了空间体块的收纳性,保持了茶室和相邻空间的通透与连接。
阳光透过天井安静地照射下来,静寂而虚幻的光线在一天之中变幻着角度,温暖丝丝沁入空间的木纹墙面。
开放娱乐区的棋牌室,器物展陈为空间注入审美意趣,木纹独有的细腻纹理和透光石的隐约肌理糅合温厚的触感,弥散着匠人手工艺触手可及的温度。
设计师以家的温暖诠释生活的真意,每个独立空间各司其职,相互联系、作用,从而融合成空间机能完整的家庭聚会空间,符合家庭成员生活习性的同时也能彼此陪伴。
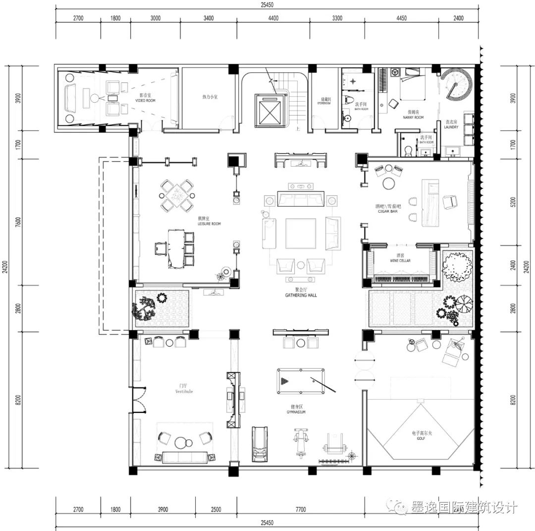
01 墨山繁云芳重锦官
△门厅
“以画入室,因画筑梦。”是设计师崔斐于本案的灵感来源。将园林与古建筑的设计手法融于室内,步移景异,于小巧中融合世间万象,于自然中荟萃人文精华。居于室,便是花云落心,平和自然,因有此情,继而景生,心安其所。
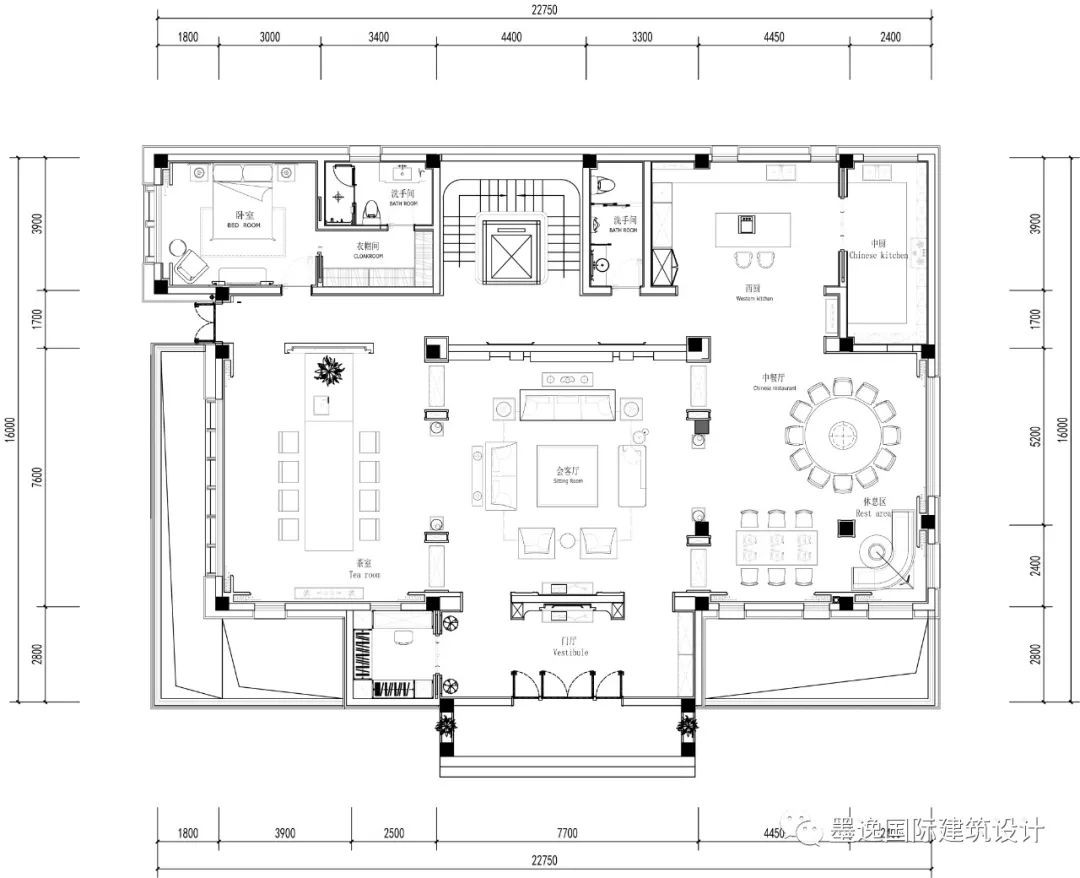
△客厅
入室,梦开启之起点。设计师将曲线与直线融合,奠定下柔和而具有线条感的空间基调。柔软质地的沙发与金属圆几,给人以舒适而休闲的感受。客厅中的色彩鲜明而和谐,展现空间当中独一无二的高级质感。客厅空间以红色经典塑造出传统的东方之美,感受典雅隽永之意境。整体空间大而不空,厚而不重,极具格调又不显压抑。
△餐厅
以客厅色彩延伸出用餐空间,日常三餐,节令品宴,生活的节奏流动在一方餐桌前。开放式的设计使得空间更加通透,简约而现代的餐桌椅展现出明快而优雅的空间质感。餐桌上方的灯饰线条感十足,与大理石元素相呼应的同时,让空间静静流露出低调轻奢的气息。
△茶室
燃一支檀香,呷了一口茶四五好友,谈天阔地细数过往种种,皆以风轻云淡泡腾、煮沸、去质,茶烟氤氲,茶味透骨
家人闲坐,灯火可亲,闲来知茶,静享岁月
△卧室
卧室的设计,采用高级的暖灰色调,极具意蕴的装饰画与墙面装饰,共同营造出温馨舒适的居住氛围,无主灯设计为空间平添别样的美感。简约的书桌前放置着一张皮质的扶手椅,让主人可以舒适惬意的度过午后时光。
设计师的设想,是造一个梦,更是创造出一个能够产生永恒的生命精神的空间。由设计到落地,将自然与质感写进每一寸生活空间,让生活逐渐放慢节奏、回归本色,亦使一家人在梦想的居所里畅享高品质人居生活。
PROJECT INTRODUCTION
项目名称|蓝泰·海乐府
Project Name | Lantai haiyuefu
项目类型|家居独栋别墅
Project Type | Live in villa
软装设计 | 米洛映象
Soft Decoration Design| Millo Casa
项目地点|山东青岛
Project Site | Qingdao, Shandong
项目面积1200
Project Area | 1200
完工时间
客服
消息
收藏
下载
最近













































