查看完整案例


收藏

下载
项目概况/全案设计·209
Projectoverview / In project design 209
项目地址 / 华润 昆仑御
Location / taiyuan
设计团队 / 四合空间设计事务所
DesignTeam / A-Z SpaceDesign Studio
并不仅仅只有创造出新奇的东西才算是创造,把熟悉的东西当成未知的领域再度开发也同样具有创造性。——原研哉
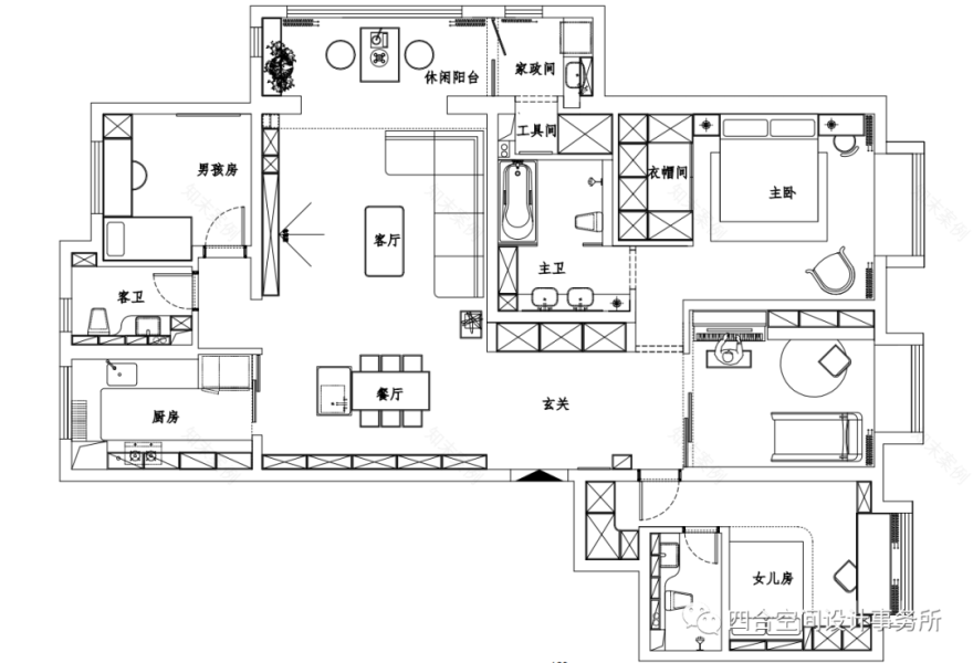
平面布置图
--客厅--Living room
空间、结构、材质、色彩,构成一个完整的关于家的视觉感受。那些透过纱帘漫入的光,清浅地扫过温厚的实木地板,扫过毛茸茸的地毯,扫过坚硬的大理石桌,最后停在柔软的沙发上。
纤细的线条表达细腻精致的质感,曲线型的靠椅在空间中成为吸睛之重,半透明的纱帘代表着若有似无的轻,轻重之间的平衡,低饱和度色彩的油画与黑白灰为基调的空间,提供了适宜独处的思考空间。
--餐厅--Diningroom
半开放式厨房,充足的光线通过四周的折射将空间延伸,避免密闭带来的压抑感。别具一格的包围型餐厨,满足了舒适自然的备餐就餐需求,让餐厅的动线更加流畅立体。
玻璃的加入,增添似有若无的空间界限美,在安全的基础上给予舒适感。
--主卧--Bedroom
黑,白,灰,透露出着空间的静谧,枕边的那盏吊灯聆听小憩时的呼吸。
同一空间形成不同的生活状态,即使在私密领域,我们仍然拥有对生活的选择。
-女儿房--
Daughter room
春寒料峭的,乍暖还寒的,所有的情绪与感受都在卧室的空间里,被吸收,被容纳,被涤净。
-卫生间--
Bathroom
比起设计一个惊世骇俗的新事物,将一件平凡的事做到极致更是一种修行。我们在一个最熟悉的空间里,构造建筑的几何,用信手拈来的材质,拼凑出一幅家的画卷。我们在设计路上踽踽独行,寻找光。作品回顾MORE
四合新作 | 用优雅诠释干练
四合新作 | 顾盼之间 一见倾心
四合新作 | 觉悟者
四合新作|心有猛虎,细嗅蔷薇
四合新作 | 内敛雅奢侈,演绎精致与纯粹
年度盘点 | 2020四合原创设计项目锦集
四合新作 | 轻氧健身
四合新作 | 何处不为家
四合新作 | 是大宅也是传统情怀
四合新作 | 50度黑的酷感时尚
四合空间 丨团队故事
专注价值与颜值并存的设计
太原市小店区晋阳街北美N1文创区8号楼1604
· 部分设计奖章荣誉展示 ·第十四届中国室内设计大赛/一等奖
梦想家装修设计大赛/点金设计奖
2018年国际建筑及室内设计节/最佳室内空间奖
中国装饰设计奖(CBDA奖)/金奖
中国室内设计学会奖/一等奖
【住小帮口碑设计师奖】2020年度星选商家【住小帮口碑设计师奖】2020年度口碑设计师【品质设计机构】2020年品质设计机构【好好住营造家】2019最打动你的住友家奖【全国优秀设计奖】第七届国际空间设计中国建筑装饰优秀奖【中国设计创意奖】第四届“锋尚杯”新中式设计大赛最佳设计奖
2021亚太空间设计年度评选最具原创设计师
在这些地方也可以找到我们哟!
客服
消息
收藏
下载
最近

























