查看完整案例


收藏

下载
QI YAN DESIGN
柒颜设计
residential
爱的港湾
November 13th, 2021
Copyright©QI YANDESIGN
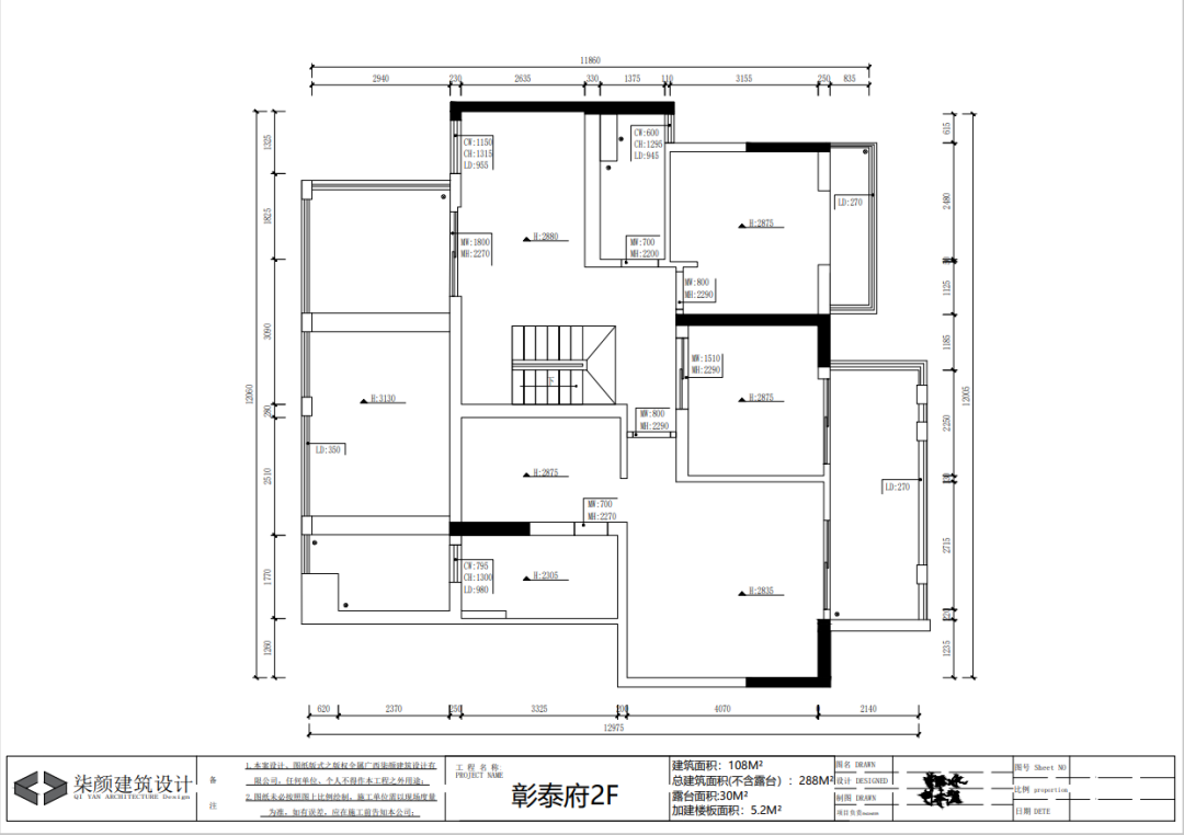
户型:洋房 面积:288
地址:彰泰府(南宁三中五象校区北门对面)| 住 宅 心 感|生活的模样,自然、柔和、清丽,且又蓄满了蓬勃的生机。而节奏,音韵婉转,不落言筌,让家庭的气息天然意在。舒适的空间,提供一片自在天地。播散美学的种子,催动生活的希望。| 平 面 结 构呈现|
|平面布局呈现|
| 空间效果呈现 |
/ 01 客厅 /
入户之处,巧妙地划分区域,打造更自由自在的使用空间,不同于传统的使用习惯,设计师平面大胆设想把客厅、茶室、餐厅三者联通,使得整个空间变得更宽广、整体、视觉动线上更符合自身追求的品质调性。整体色调上运用现代主义的风格延展,借助木饰面、地砖、石皮原始,柔和线性灯光,展现空间的明亮通透,实现设计最初的设想,至少,回到家的那一刻,心情就非常愉悦,居家生活的氛围在此,也会更具生活气息。
/ 02餐厅 /
餐厅设计思考延续一体化的动线思路,以开放式的中西厨生活习惯为整个空间使用性上带来便捷。材料质感与颜色的搭配也随和主题,设计在意的其实也是整体把控,能不能把形、色、质、光呈现出功能美学的同时,也意在为生活增添更多的情调。吧台设计的处理方式大大解决着传统操作台面局促的使用问题,整个餐厨空间干净利落,旧看不厌,生活由此,体味不一样的烟火。
/ 03卧室+次卧+儿童房 /
不同睡眠空间选用不同的色彩主题与搭配属性,整体空间上营造倾向木饰面为修饰、呼应空间调性上的一致性,次卧与儿童房的设计中,没有过多花俏的造型处理,就是延续设计元素,满足生活功能。
/ 04多功能区 /生活本身应该是一场惬意自在的旅行,每个空间如是沁心所爱的自在,花心思去规划,营造自己的内心世界,这便是最能打动人心的港湾,而港湾承载着一家人的爱。冰雁
15777108318
公司地址
扫码关注我们
往期作品
说说你的真心话,喜欢就点赞。
客服
消息
收藏
下载
最近


































