查看完整案例


收藏

下载
时代可以改变人们的生活状况,但是人们对于“家”的向往,却是始终如一的。作为传统式居所的新时代设计者来说,想要打造出优雅的私宅居住环境,就要遵从以人为本的原则。下面我们从中式设计风格出发,一起欣赏这间居所设计。△戳蓝色字添加关注哦!
Design company:阮秀仓设计事务所
Style positioning:隐逸东方
Client:赵总
Project area:740㎡Project site:
合肥政务区 柏悦府
风格设计特点
Style design features
在中国文化风靡全球的现今时代,中式元素与现代材质的巧妙兼柔,唐宋家具、明清窗棂、布艺床品相互辉映,再现了移步变景的精妙小品。继承明清时期家居理念的精华,将其中的经典元素提炼并加以丰富,同时改变原有空间布局中等级、尊卑等封建思想,给传统家居文化注入了新的气息。
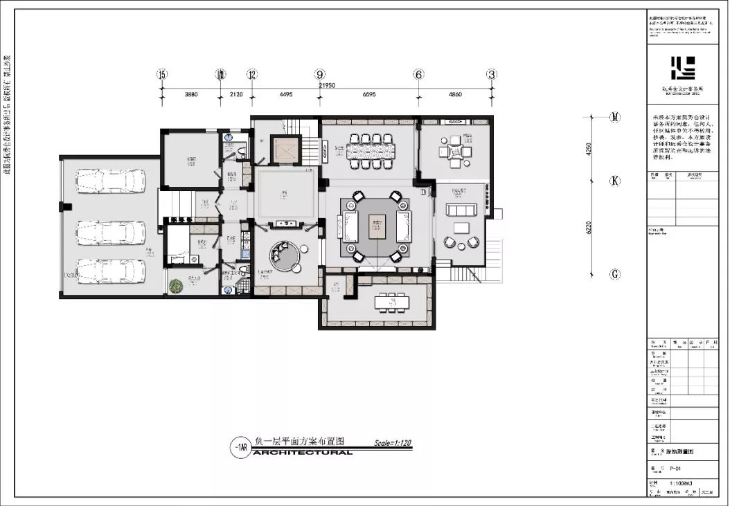
项目负一层平面布局
项目一层平面布局
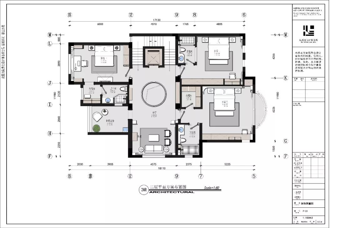
项目二层平面布局
项目三层平面布局
▲门厅
从负一楼进入屋内,首先映入眼帘的就是入户门厅。整齐分明的线条与暖色系瞬间让人眼前一亮,国画与盆栽的点缀让传统的古韵风扑面而来;二楼的门厅与其如出一辙,但更为明亮的视野让精致典雅的艺术气息扑面而来。
负一楼过道&过厅
负一楼过道大面积使用波打线铺设设计,凸显了大气恢弘的感觉。而过道的单色铺设,与端景台和两旁线条相辅相成,让不大的过道空间尽显魅力。
▲负一楼会客厅&客厅
负一楼会客厅、客厅的休闲中式装修风格,通过明快的色调、温婉的设计语言,第一时间给来拜访的客人传达了悠闲放松的生活气息与充满自由的心灵体验。盆栽的摆放与装饰线条的设计渗透着丝许中式传统韵味,使整个会客厅端庄大气而又不失传统的情调韵味,舒适感与亲和感油然而生。
负一楼茶话区
生活,要么酒要么茶,一个让人迷醉,一个让人清醒。而与中国儒释道文化有着至深渊源的当属更为清高闲雅,更有艺术品位的茶文化。新中式的茶话区以橱窗形式作为背景,摆放着瓷器古玩,而业主的女儿又独爱茶艺,在此谈笑间莫不像是“茶”变成了“酒”,让人在这古韵的茶香中痴醉。
▲餐厅
餐厅的灯光拥抱着每一寸座位空间,给人一种“奢侈的浪漫”。浪漫温馨的氛围让人不禁想要去触摸、去体验、去留恋。在这里,每一个细节,都蕴藏着惊喜,全心全意打造出一个温馨的用餐环境。
▲客厅
用现代材质打造的中式布局时尚而典雅,有现代风格中的精致与时尚,也蕴意着中国元素中的古典风韵,打造出一种亦古亦今,中西融合的设计风格。
▲二楼休闲区
休闲区没有过多的色彩修饰或是过于鲜明的情感元素,而是简洁雅致的舒适大方——它是简单的、质朴的、睿智的。在这里,还原空间一种宁静幽雅、最为自然舒适的生活体验。一花一世界,在这里,简单、自然、悠然。
▲中厅&挑空
挑空型的中厅设计在局部做一些隔断,不但增加了客厅的层次感,也不至于让整个空间显得太冷淡。垂帘式的艺术吊灯,让客厅的顶面层次分明,有效弥补了空间的空旷感,加上独具古韵的的装饰,阑珊幽雅的暖足感深入人心。
新中式是中国人生活形态的体现,从传统中汲取精髓,简化脱胎,成为既凝萃了东方文化的风骨,又能与各种文化、风格完美融合的新风尚。它是潜藏在血脉中的归属感,是冰冷都市里一方恬淡的净土,更是金戈铁马征战中最后的温柔乡。而本案的设计,相信能带给留学归来的业主女儿满满的温馨感与归属感。
· END
客服
消息
收藏
下载
最近





















