查看完整案例


收藏

下载
少即是多,趋于本质美,给予更多心灵上的守护。风格没有定位,设计呈现品质,在宽处现力量,在细微处见温和。
FOREWORD 前言
人在空间内的状态、情绪、行为、感受与感知才是核心。设计过程中梳理空间的布局,以块面的方式来围合,注重动线的规划,以洄游的方式来体现,采用两种不同的方法联动空间的分区及趣味关系。设计的概念是不断迭代的,设计的本质没有变,依然是优化改造居住者的生活方式及状态。
LIVING ROOM 客厅
整个公共空间包含客厅、茶室、厨房、餐厅、洗衣房。
门厅实木中轴旋转门作为动向引导,有事茶室于客厅的可分可离关系的界点。
茶室“浣溪沙”:春色不远,观澜又见。
再而用地面抬高、材质划分的方式增强走道的仪式感,将空间划分前、后场。
前场客厅、茶室,后场餐厨。
餐厅灵感来自“四水归堂”中式之美,中式院落的美是古代建筑中不能缺少的部分。
正正方方的顶面实木雕刻板,四个实木雕刻柱子,代表着四季轮换的景色。
MASTEBEDROOM 主卧
三层是主人房。洄游动线贯穿卧室、衣帽间、书房,三个点位依然是可分可离关系。公开与私密着意于入口,卧室运用同色系的不同材质,营造有层次的视觉统一。BOYS’ ROOM 男孩房。
男孩房由卧室、书写、衣帽化妆间组成生活区域。通过双扇隐形门把衣帽间、卧室化妆间相连。书桌前自成一方成长的小天地,思考、成长。元宇宙是探索世界奥秘的开始。GIRL’S ROOM 女孩房。
卧室与衣帽间的过渡----走道,用奶白色的墙面与木质天花围合,兼顾休憩及水吧功能,在细枝末节处强调空间的联动感使用感,用尽量简单的手法去处理空间,边角处用灯光代替语言,通过平静的空间来窥见精致生活。
GIRL’S ROOM
女孩房
每个卧室空间都是通过兼顾使用功能的茶水吧门厅区域进入卧室,形成了简明利落的空间格局,强化了人与空间的情感界限。门厅与卧室的连廊是细节中的细节。
GUEST ROOM 客房
ARCHAIC ROOM 老人房
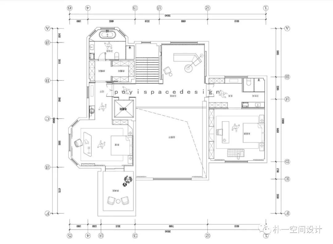
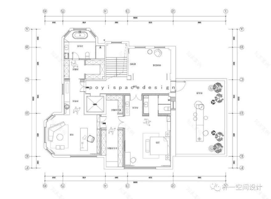
PLANE FIGURE
平面图
项目名称/江山赋
Prejectname/Jiangshanfu
项目面积/960
Preject area/960
设计师/刘静静
Designer/jingjingLiu
参与设计/李子玉
Designer/ ziyuLi
●推荐阅读●
关于朴一空间设计
About poyides giner
真正好的设计师一方面应该具有建筑的修养,对空间的领悟和掌握能力,另一方面应该有软装陈设所呈现的品味与美学感知力,同时还要有对产品的把控力。
为了真正的设计,我们需对业主生活方式深入体察,感受他的生活个性,理解他的审美意识,忠于他的情怀。
我们所希望追求的不是高歌猛进,而是希望一点点的积累和沉淀,润物细无声的改变和优化新时代年轻人的生活方式及状态,更深层次的对“家”的理解。保守本真,怀抱纯朴,不萦于物欲,在身心安静的情况下,把设计放到第一位。
我们塑造的不仅仅是 HOUSE,更应该是 HOME,它承载着家人共同的记忆美好的时光。
所获荣誉奖项:2020 红棉中国设计奖,2019-2020 40UNDER40 中国(安徽)设计杰出青年,2019-2020 40UNDER40 中国(阜阳)设计杰出青年,2020-2021 40UNDER40 中国(安徽)设计杰出青年,2021 金住奖十大空间设计师,2021 金堂奖入围设计师,2021 中国住宅设计效果图大户型奖。
END。
项目咨询/平台约稿:add/安徽亳州雍景和府别墅区 B7-101。
客服
消息
收藏
下载
最近













































