查看完整案例

收藏

下载
RUGER WEICHEN
锐格惟辰新作
骊山下的院子
项目信息
- Project information -
项目地点 /骊山下的院子
项目风格 / 现代中式
项目面积 / 380㎡
主案设计 / 黄明洲
深化设计 / 王晓娟
商务团队 / 锐格惟辰营销一部
施工团队 /锐格惟辰工程事业一部
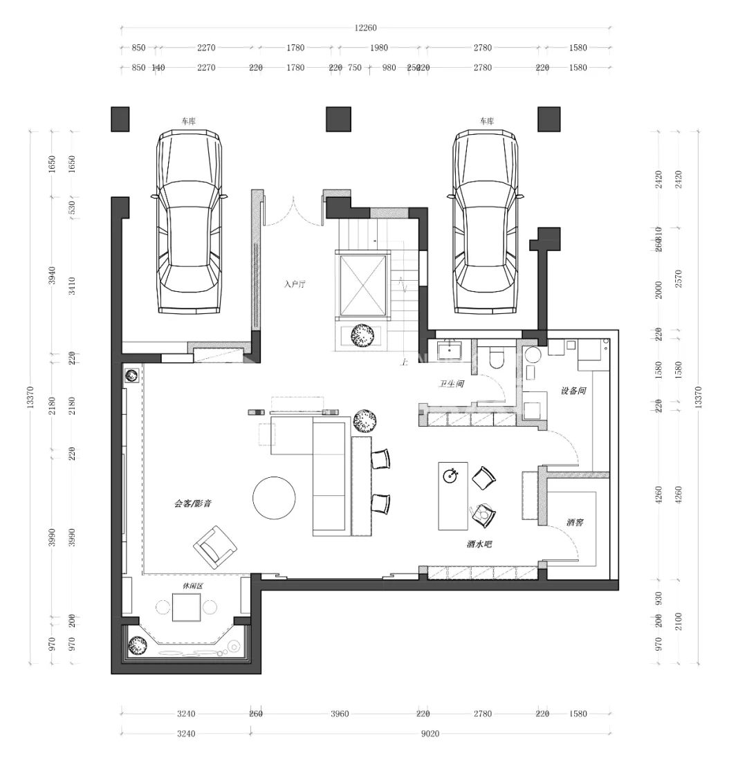
-2L
▼原始户型图
▼平面布置图
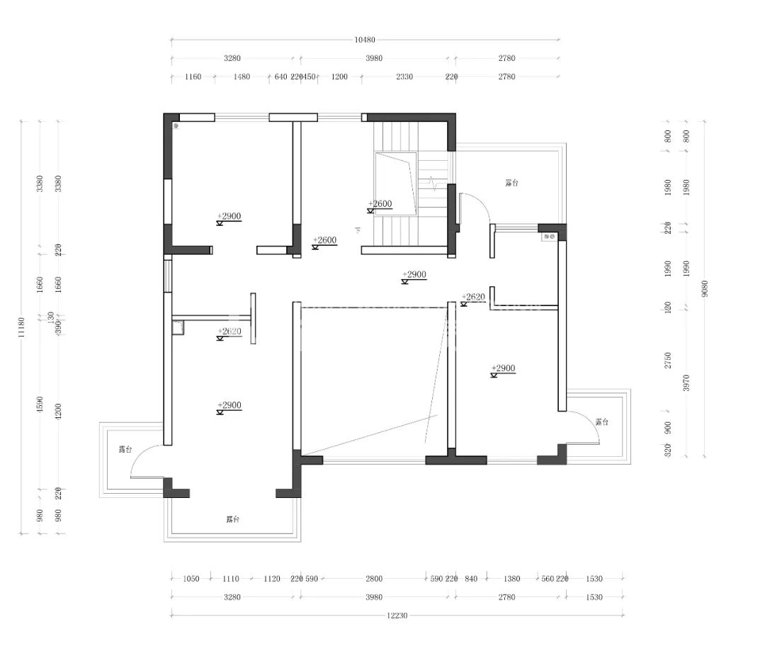
-1L
▼平面布置图
方案理念
Scheme concept
仰望星空,凝视明月
人们所定义的诗意栖居在时间的长河里轮回沉淀,最终演变为融合现代时尚元素的中式面貌。
弥漫于空间里的纯朴灵气是东方意境之美的文化传承,亦是人与空间的情感共鸣。
舒缓的意境是东方美学的情怀,也蕴藏着脱俗的境界。流畅的动线引导视觉迎向古色古香的玄关栅栏,将室外与室内空间完美分隔。透过斑驳的光影,呈现若隐若现的朦胧之美。
不拘泥于传统的中式元素,浸透着儒道的清雅与禅意,为务实而内敛的现代人士,自然呈现出采菊东篱下,悠然见南山的闲适生活。对称分布于细节的软饰与绿植,放大空间居室的静谧、古典气质,仿若将人们引往一处桃源之居,表达本质精神境界的追求。
挑空设计的负一层空间
布局规划分割明确
动静之间
皆有着不显山不露水的涵养
为寻求自然悠闲生活的人们
开辟出一方静谧雅致的休闲天地
柔和的中性白色
混合大理石的高级质感
氤氲一室禅意清风
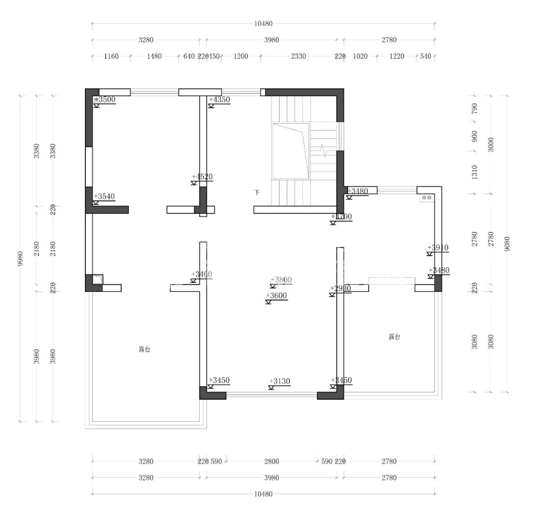
1L
▼原始户型图
▼平面布置图
过眼云烟的繁华使人内心浮躁,回到温馨质朴的家中,人们才真正属于自己。一层的玄关走廊,意境简约,留白的东方美学观念,匀称的流线、古典木色与大理石,是现代文明与传统文化的微妙融合,视感古朴雅致,体现居住者的独特生活品味。
空间高耸、开阔的挑空客厅有着绝佳的采光和视野透过朦胧飘荡的落地窗纱将生活的希冀与活力引入其中营造超解压的轻松氛围客厅后侧的墙壁设计圆形窗饰体现中华“天圆地方”的传统历史文明中央点缀灰调写意的山水画意境舒缓而富有浓情诗意
视觉爽朗的客餐厅融合东西方的文化元素以古典的木质与留白空间营造自然温馨的高品位场域迎合会客和家人的互动生活
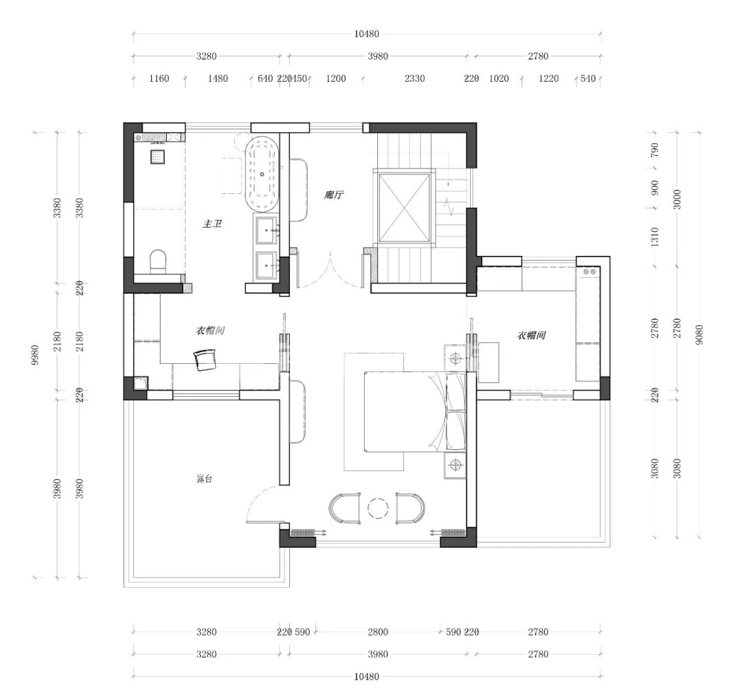
2L
▼原始户型图
▼平面布置图
基调明朗的客卧居室为偶尔来访的亲朋好友准备,一面落地大窗引入明媚阳光,使人心情时刻轻松温暖。床头墙壁的山水圆盘富有东方传统文化的儒雅意境,在晨曦与夜幕的交互中,为居住者营造惬意情境。
色彩明朗活泼的儿童房
在空间陈列的细节中洋溢着孩子的童真梦想
墙壁上的不对称几何装饰有着西方元素的跳脱个性
迎合孩子天马行空的思维在这方寸之间柔软心房,打造趣味童真天地
3L
▼原始户型图
▼平面布置图
主卧室格调定位为“静谧居”整体色调更为古朴、稳重空间动线设计流畅没有拘束感空间的规划分布和软饰陈列渗透着东方的古朴致美人字纹铺陈的木色地板凸显现代中式的精致细节落地窗外投入的自然光影更易使人们卸下心房归于这一方温情世界中
干湿分离的卫浴间以简洁细腻的陈列设计在私密氛围中体现精致感。纯净简白的大理石材质挥洒自然流畅的天然纹理,仿若艺术家的写意画作在室内空间肆意铺开。自然采光的柔和打入,视觉效果则更富有立体美感。本案设计师。
黄明洲
中国室内设计师协会认证设计师
中国室内装饰协会会员
西安设计师俱乐部会员
2012年西安市家庭装饰行业优秀设计师
2012年上海大金全国室内设计大赛-优秀奖
2013年度十大软装设计师奖
2014年清华大学室内设计高研班-学员
2013年春季“圣象”设计大赛优秀奖获得者
2014年西安市家装行业优秀设计师
2015年“定制超蓝天“室内设计大赛优秀奖
2016年亚洲室内设计竞赛优秀新锐奖
2017“和记万佳杯”陕西省首届家装设计大赛优秀奖
2018荣登“华语设计领袖榜”100位卓越设计人物
设计作品被《新居室》《装潢世界》《家饰》《装饰设计师》以及《华商报》《陕西日报》《三秦都市报》等杂志收录发表。参加天津卫视《幸福到家》栏目作品选。
主要作品:金地芙蓉世家、曲江中海铂宫、逸翠园、金地尚林苑、曲江华府、枫叶新都市、绿地城、绿地生态城别墅、中海华庭、成都华侨城东岸别墅、枫林华府、风景御园、融侨城、天鹅堡、莱安逸珲、南湖九号院、西安鸿基紫韵、群贤道九号、丹轩梓园、汉中中交国际、桃源漫步售楼部、咸阳世城滨江售楼中心、北京达美中心办公室。
往期作品推荐
WECHEN|富力国际别墅
WECHEN|莱安逸辉
WECHEN|莱安逸辉
西安锐格惟辰装饰工程有限公司创建于2014年,是西安市装饰协会、中国室内装饰协会会员单位。以原创设计为核心,汇聚顶尖设计力量,致力于为全国高端客户群体提供高品质生活场景。精准管控集设计、施工、产品供应为一体的全方位服务体系,业务范围涵盖住宅、样板间、办公、会所以及其他商业空间,打造精品工程!
锐格(REGEL),代表聚焦为客户创造价值、代表着客户的尊贵身份。
惟辰(WECHEN),代表惟心惟力、不负星辰,代表着专注、高效的服务理念。
以文化引领生活、以创新致力生活、以艺术探索生活;贴合人性,邂逅时尚、引领潮流、精诚品质、勇于创新,与客户共同缔结生活之美。
长按识别关注
别/墅/大/宅/原/创/设/计
t e l.029-81135672
add. 西安高新区锦业路锦业时代B3座503
add. 西安高新区锦业路锦业时代B3座903
add. 西安高新区锦业路锦业时代B3座904
客服
消息
收藏
下载
最近































