查看完整案例


收藏

下载
用可以度量的手段去实现不可量度的意境。
——路易斯·康(Louis Isadore Kahn)城市的建筑化
建筑的城市化
城市综合体在城市中的作用,类似于化学中的触媒。它是由城市塑造的,反过来它又能够对城市发展和建设产生影响。
城市与建筑之间存在着渗透、延续和符合的一体化关系。
△ 区位图项目位于成都市青羊区内,处于城西光华大道东侧西部新城核心区,是成都市政府规划的6大百亿商圈之一,同时也是成都市中心城商业网点总体布局的19个片区商业中心之一。综合体空间结构系统是一个相对独立的完整功能系统,其内部各功能之间具有互补促进效应。功能空间在水平和垂直方向紧密联系和多样化布局,商务、休闲、服务、酒店功能混合布置,犹如一座城市缩影,成为一站式高度复合动态空间。
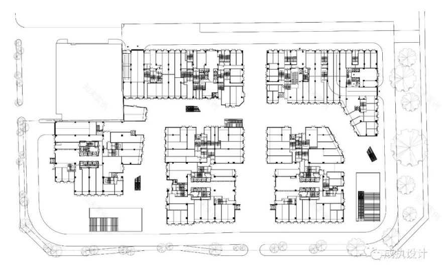
△总平面图
开放式形态
整体化设计
城市化的建筑,模糊了城市与建筑之间的界限,在建筑内部打造室外空间,形成一个开放式的TOD商务生态圈。沿着主要街道,蔓延出众多支路,形成网状结构。与周边无缝对接的地铁站、街角、医院形成规划序列,体现建筑所具有的开放性与整体性,进而影响带动区域的发展,保证区域价值及形象的全面提升。
△ 体块生成
分析图
空间交错并置复杂形态聚合本项目的公共空间边界模糊化主要来源与两个方面的原因:一是空间室内外渗透化,二是功能延续性的加强。多种不同空间体系的垂直叠加促使城市空间与建筑空间相互交织,渗透。通过中庭、内街、外廊、广场等将不同的建筑空间联系到一起,最终形成了更加复杂的形态聚合。在复合型商业街区内部,公众有许多行为之间存在着关联性,他们互相促进、激发,甚至互相依存。
△剖面图联系建筑体量的人形步道桥廊,将营造交往空间的独特与生动,并提高可达性。路径不再是线性的,而是在空间中交错并置,运动的方向选择是随机的,不存在必然的某条流线。非线性的交通空间串联起空间节点与立体式的公共空间,形成了公共空间网络,造就了整体上的流动性。
通过项目用地东西向的流线贯通,以更加主动的姿态刺激街区人流联动,落客区(建筑入口)与周边环境实现本案“开放式商务中心”的初衷。
城市空间与建筑内部空间的过渡上,充当了两种空间体系的缓冲空间,优秀的外部空间设计更可以实现人流的引导以及空间的暗示,使得内、外空间发生互动,增加了空间的趣味性。
人行步道
△ 落客区(建筑入口)形塑建筑体块
勾勒建筑肌理
为了消除建筑体块规模对人的压迫感,用加减的设计手法,塑造高低错落,疏密有致的空间。多样化的建筑语言减少了建筑的整体尺度,使人和环境之间有了更亲密的感官互动。立面与空间形态体现出了建筑单体所具有的连续性与整体性,表现出了建筑单体具有的特性。
立面采用玻璃和铝板作为主要材料,手法上通过体量的穿插与切割,形成了小体量的有机形态,进一步拉近了建筑与人的距离。在错落的体量中,跳跃出不同肌理不同的体块。每层大露台的设计,打破传统的单一造型,同时又不失于整体视觉效果上的统一形式。
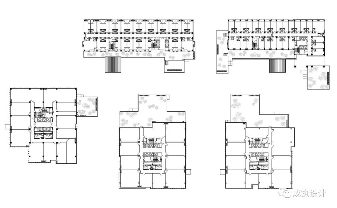
△一层平面图
△ 四层平面图
在快速城市化的内在需求下,城市综合体是建设高效节约型城市的途径之一。合理引导城市综合体的触媒作用,更加能动地指导城市开发建设。流动的空间体系在一定程度上影响了当今的城市建设,开放型商务中心是相当重要的空间,是构成城市的基本细胞。
工程档案
项目名称| 成都昌鑫青羊万和中心
地理位置|成都市青羊区
用地面积|25549.85平方米
建筑面积| 127749.25平方米
项目业主 | 成都昌鑫置业有限公司
建筑设计 | 上海成执建筑设计有限公司
总建筑师 | 李杰
设计总监 |曾庆华 刘巍
设计团队| 王小臣 于颂 夏淼
施工图设计 |中国建筑西南设计研究院有限公司
室内设计 | 四川省自由空间设计管理有限责任公司
景观设计 | 重庆市华筑建筑设计有限公司
施工单位 | 成都建工第一建筑工程有限公司
设计时间| 2016
竣工时间| 2018
摄影团队 | 三棱镜建筑空间摄影
感谢前期概念方案团队:严芳 姜超池文俊 宋森
项目精选
成执设计
一起分享设计的点滴
上海成执建筑设计有限公司
公司網址:業務咨詢:86 21 54101738-102
客服
消息
收藏
下载
最近








































