查看完整案例


收藏

下载
ORIGINAL THINKING OF LIFE
初心设计 回归本源
喜欢一个人
始于颜值
陷于才华
忠于人品
那么喜欢一家餐厅呢?
2019
木屋烧烤
“恋上”零
INTRODUCTION
“木屋烧烤”于二零零三年在深圳创立,伴随着大家的热爱,逐渐从懵懂走向成熟,犹如一个十六岁的花季少年,或情窦初开,或亭亭玉立。
那个叫“木屋”的男孩十六岁了,他质朴、纯真、谦逊、害羞,他总能给身边的朋友带去欢乐。
生活中的“木屋”充满着对未来的幻想,他开始渴望爱情,渴望遇到自己的“小幸运”。
十六岁,那就尝试一次偶遇与告白吧!
壹
ORIGINAL SPACE ANALYSIS
客户群体
空间需求
设计要素
25-35岁城市白领
(67%)
用餐区 2人位(15%),4 人位(75%),6人位(10 %)项目运营(经营者)18-24岁大学生
(15%)
精酿啤酒设备(12㎡)空间利用(经营者)4-12岁儿童(2%)啤酒超市空间体验(消费者)40-50岁家庭
(15%)
水吧台
使用人员行为活动
60以上老人
(1%)明档出餐区
空间优势(绿)1. 整体空间为框架结构,室内仅有两根立柱,空间可塑性高。
2. 室内层高为4800mm,梁下为4350mm,存在建立夹层的可能性,增加使用面积。
空间劣势(红)1. 仅有南侧一面临街,展示面少。
2. 东侧立柱与墙体间距仅有3600mm。
1.厨房占比约整个空间的30%,其形状以长方形最佳,方便操作流程且留出空间内较为舒适的临窗位故选择①区放置。
2.卫生间及仓储库房等服务用房可降低空间层高,留出加建夹层的空间故选择②区放置。
3.鲜酿啤酒吧台造型感强烈,餐食区更加灵活,可起到带动全场氛围的功能,故选择③区放置。
4.啤酒超市品牌展示可放置在入口④,增加入口的设计感与吸引力体验区,考虑到体验感受,单独设置故考虑在夹层⑤设置单独体验区,增加独特体验氛围。
Layout Plan1贰AREA ANALYSIS
Layout Plan2
围绕“恋上”这个主题,根据客户喜好比例大小,及不同客户的行进动线,体验空间划分七个区域。
这七个区域代表着恋情发展的不同的阶段,我们希望顾客在不同的区域体验不同情境内容,从而产生思想上的共鸣。
1. 外摆区
2. 入口
3. 临窗区
4. 聚会区
5. 情侣区
6. 啤酒超市体验区
7. 包厢One
外摆区 (偶遇)犹如茫茫人海,两个素不相识的人,在木屋有了交集,也许只是不经意间的抬头,我们看见了似曾相识的面容。
外摆区是轻松随意的组合,不同的陌生人再此聚集,在空间中随意走动,创造沟通与交际的可能。
Two
入口 (初识)我们同样被这花花世界所吸引,不同的是,我的眼里只有你,想认识你,于是我鼓起勇气:“请问你也是一个人吗?”
入口是一个空间的代表,多品牌啤酒展示区域,对客户起到吸睛的作用,同时也是木屋新元素的表现。
Three
临窗区 (相知)每次来到木屋,我们都有聊不完的话题,学校、公园、图书馆,你去到哪里都有我的陪伴。
把主力消费客户设置在临窗区,方便入座,同时增加店铺人气,临窗区的通道犹如一条长走廊,让体验者回忆起一同走过经历,每条不同道路,都有相同的陪伴。
Four聚会区 (相聚)我们在此欢呼庆祝,多希望在这时间的年轮上,留下我们难忘的时刻。
空间的西侧设置为抬高区域,用于公司及小团体聚会区域,西侧一整面相片墙展示,结合欢聚时光的主题,加以“年轮”及“时刻”的结合,唤起食客记忆中的美好时光。
Five情侣区 (陪伴)精心策划了我们的每次约会烟花、电影、世界杯,在这个钢筋混凝土的都市丛林,我们拥有了为自己燃烧的篝火,因为紧张我喝的太多,只记得最后你说了“Yes”。
空间的中心给了热恋与活泼的人群,树的概念消除了空间中唯一的立柱,在激情中告白成为空间中的亮点。
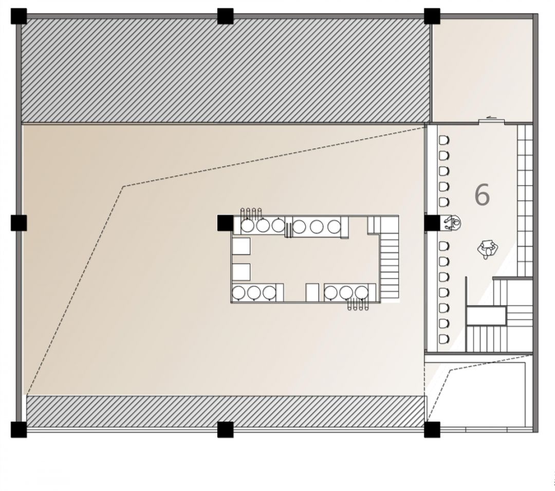
Six啤酒超市体验区 (热爱)之后的我们面临着形形色色的诱惑,我们也期待给彼此更多的新鲜感,如初恋一般甜蜜诱人。
啤酒体验区设置在夹层,一个充满情调的体验区。也许有很多决定,只能微醉后才有说出口的勇气。
Seven
包厢区 (回归)最后的我们回归平静,可生活依旧充满激情,只因我们找到了心中的那座木屋。
包厢区在空间的一侧,留给那些需要安静空间的食客。同时,它象征着家庭回归初心,是恋爱圆满的ending。
叁DESIGN PROPOSAL
木屋的本质是淳朴的、轻松的、充满激情的。设计中选取了许多自然元素,如灯火、大树、烟花、星河、海浪、年轮、窗外、诗句在不同的场景中,用这些发生在生活中的“小确幸”来传递浪漫,质朴而又释然。
门头
门头只在入口处使用了木格栅的元素,其余部分或利用黑色镜面、落地橱窗及啤酒展陈设映射繁华都市的不同场景,突出“都市中的小木屋”这一主题。
大厅
大厅的顶部采用纤维灯管,制造出星空的场景,将室内空间搬至室外,从视觉上有更加开放的感受。
主题墙
入口东侧的墙面采用了欢聚时光的主题,装饰上使用代表时间的木纹年轮。相片墙的功能增加了与木屋家人们的互动,温馨浪漫的场面将让它自然成为网红打卡主题圣地。
楼梯间
通往啤酒体验区的楼梯间是个神秘而又隐蔽的空间,犹如从一个人朴实无华的外表进入其隐秘的内心世界,红色代表着激情,而蓝色蕴含着思维的理性。
啤酒超市体验区1
啤酒超市体验区的设计富有情调而又充满变化,象征的人们的内心世界。酒柜及墙上的灯光可随空间及场地需求而变化,营造出不同的氛围。
啤酒超市体验区2
整体弧形的啤酒展示柜呈现出浪花的造型,而通往酒库的隐形门结合墙面的金属条装饰呈现出旋涡状,整个画面仿佛让人进入大海,用爱情的力量掀起浪花,打开通往海洋深处的神秘之门。
整体墙面用黑色的肌理涂料,配上霓虹灯形态的“干杯”及“生活真美好”的造型,犹如夜空中绚烂的烟花。
部分手稿ing....
项目地址/Address: 深圳木屋烧烤
主持设计/ChiefDesigner:黄洋安
主案设计师/Designer:姚理泽
设计团队/
Design team
黄瑶、申静、熊嘉玲
项目主案设计师简介
DESIGNER INFORMATION
姚理泽 Leo
北美游学归来, 在上海长沙两地从事建筑及室内设计工作。积累了8年的项目设计管理经验,以新颖的理念,敏锐的嗅觉超越客户的期许,为多家国内外知名企业客户提供商业设计服务。
绿地吴江超高层办公样板
绿地吴江服务岛别墅样板
上海博可斯幼儿园
秦九和陕西小吃
长沙华文酒店
发条网咖城堡
浙江友邦产业园
了解猿厂猿作:猿厂猿作设计丨服务流程及施工营造
猿厂猿作·实景案例丨演绎一场古典中式与现代轻奢的邂逅
猿厂猿作·产品线丨它们代表不同的生活方式
猿厂猿作丨垃圾分类很重要,合理的厨房设计更重要
THE END
猿厂猿作丨猿厂空间·猿作软装
如果您想更深入了解我们
Tel: 19974855731add
长沙市岳麓区潇湘中路367号58众创509
客服
消息
收藏
下载
最近













































