查看完整案例


收藏

下载
WU KONG
满院东风,海棠铺绣,梨花飘雪。
The courtyard is full of east wind, begonia is covered with embroidery, and pear blossoms are snowing.
室内面积 / 580㎡
合作模式 / 全案设计
空间性质/别墅联排-下叠
设计主案 / 徐广金、乐静
设计机构 /吾空建筑空间设计
项目地址 / 南京市江宁区五矿澜悦栖原
01.
Leisure activity area
From Wukong Design
休闲活动区
“物质贫乏,精神富足,摒弃分别心,看清无常,注重本心。”朴实、纯粹的材质与简约、自然,不带一丝造作的中性配色,赋予宁静的侘寂。
氛围,在这座繁闹的城市觅得一处安逸。
"The material is poor, the spirit is rich, abandon the distinction, see the impermanence, pay attention to the original heart." Atmosphere, find a place of comfort in this bustling city.
02. Restaurant
From Wukong Design
1F餐厅区域
"Wabi-sabi是一种食物不完美,非永存和未完成之美。那是一种审慎和谦逊之美。亦是一种不依循常规的随性之美。"
"Wabi-sabi is the beauty of imperfect, non-permanent and unfinished food. It is the beauty of prudence and humility. It is also a casual beauty that does not follow the rules."
03. Sleeping area
From Wukong Design
2F睡眠区
04. Bathroom space
From Wukong Design
卫浴空间
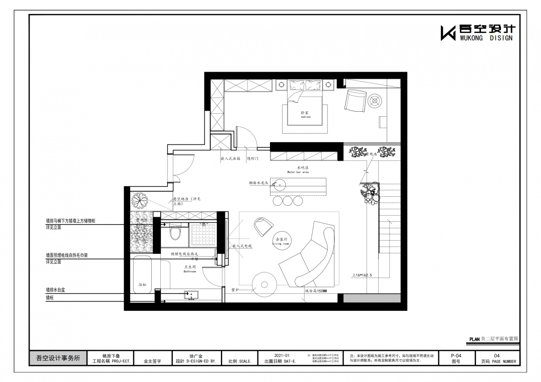
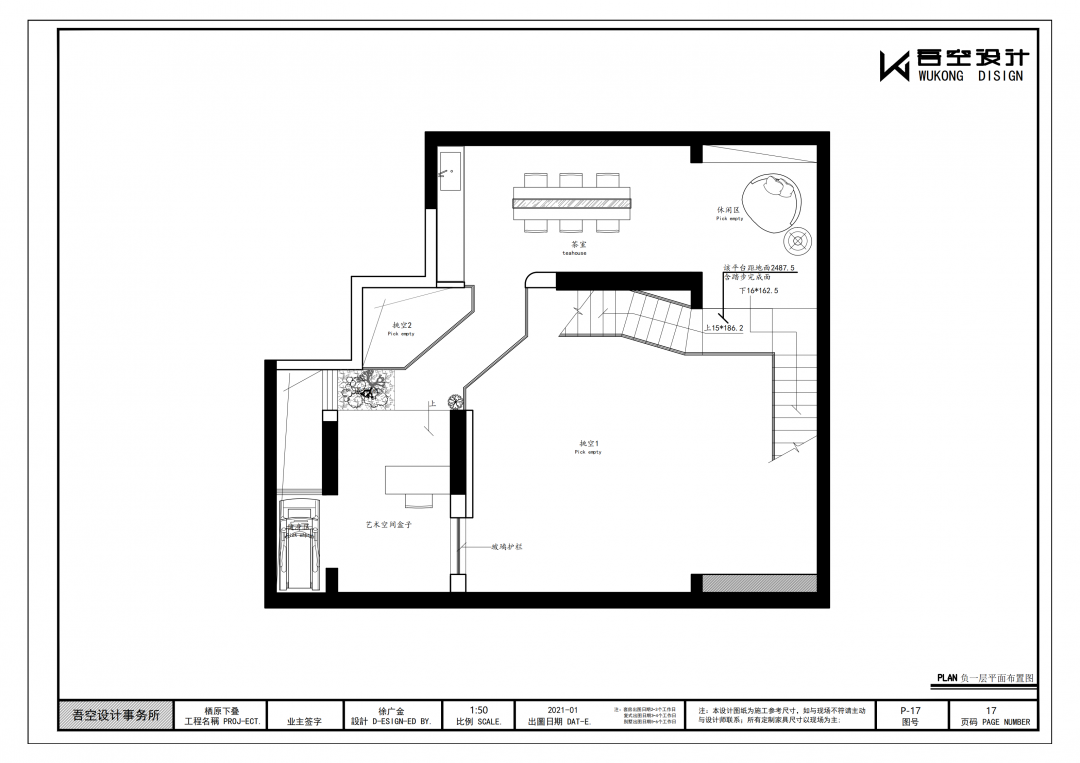
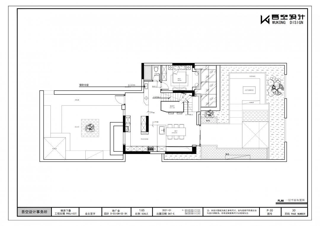
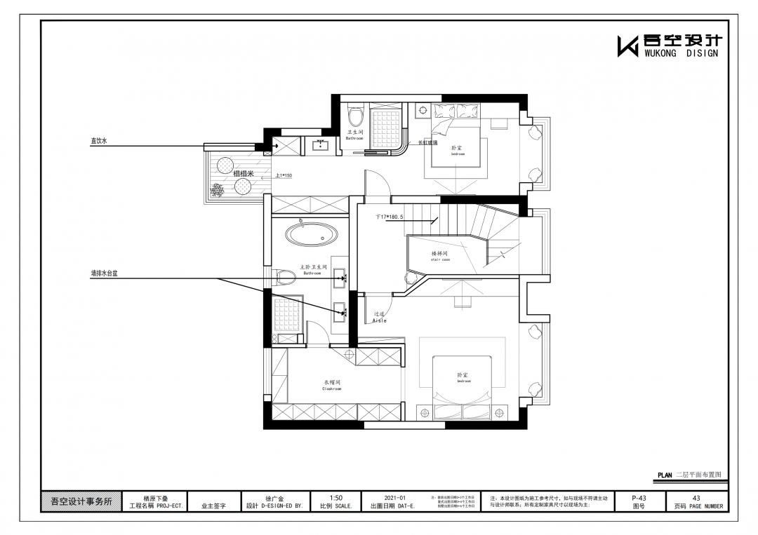
06. Floor Plan
From Wukong Design
平面图
左右滑动查看更多
往期案例赏析/Case appreciation
南京 • 保利云禧 ▪ 鏡
南京 • 新亭西路 ▪ 山中夜雨
南京 • 明发城市广场 ▪ 南楓
溧阳 • 白金汉宫 ▪ 燕語如春
南京 • 艺树家工场 ▪ 星空
南京 • 高淳 ▪ 春沐
We create emotional space to make life more meaningful.
客服
消息
收藏
下载
最近


























