查看完整案例


收藏

下载
专注年轻群体设计
The Best Design Works For 80s & 90s
一直致力于婴幼儿相关专业的Kitty,一直以来都有一个愿望:做一个婴幼儿托育中心。这样既能学以致用,也能更好的解决社会双薪家庭0-3岁的婴幼儿照护和教育问题,同时也能够为新手父母提供最专业的育儿交流、学习平台。提出想法之后得到了爱人和周边朋友的全力支持,于是她开始精心准备,用心筹划,终于,1年后、内江首家专业级认证托育中心--贝壳托国际婴幼儿托育中心正式亮相。
贝壳托托育中心选址于东兴区邦泰天誉小区北门入口,贴合0-3岁宝宝成长发展指标,运用“Daycare”模式,通过细致护理,科学养育、多元化课程,为宝宝提供专业托育照护体系。
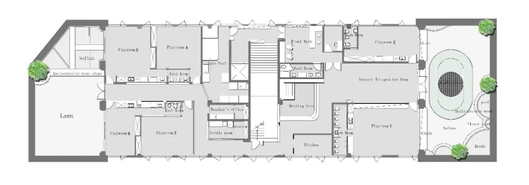
【项目地址】: 内江邦泰天誉小区北门旁【项目名称】: 贝壳托国际婴幼儿托育中心【室内面积】: 730㎡【硬装设计】: 十亩设计【软装设计】: 十亩设计【服务方式】: 全案设计【项目摄影】: 筑像摄影
房型图Apartment layout
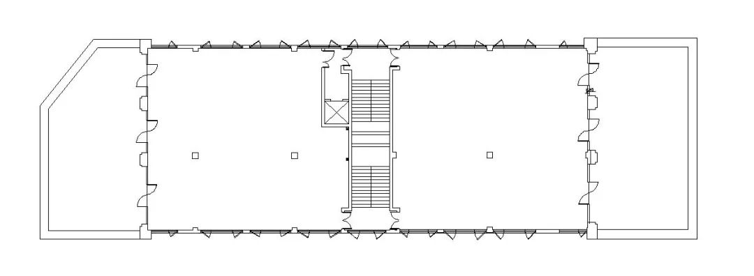
▲原始结构图
▲平面布局图
门头 Doorway
接待区 Front Desk
感通区 SensoryIntegration Area
户外活动区Outdoor Activity Area
活动室 Playroom
活动室1 Playroom1
阅读区ReadingArea
走道 Walkway
婴儿泳池 Baby Pool
活动室3
Playr
活动室6
Playroom6
十分,是一种精益求精的态度。
半亩,是一方自在逍遥的天地。
以十分之态度,耕耘半亩之天地。
开成花,结成果,酿成酒,便是你想要的绚烂生活。
• END •
Awards荣誉
2017年第五届日立中央空调Hi-Design室内设计大赛“优秀奖”2018年中国(四川)首届鲲鹏奖大赛公寓类组“优秀公寓设计奖”2018年十间坊2018中国实战设计大赛“全国入围奖”2018年十间坊实战赛事2018年创意空间手作西南赛区“第一名”2018年中国人文设计大赛入围奖2019年鲲鹏奖第二届中国室内装饰设计大赛公寓类组“银鲲鹏奖”2019年鲲鹏奖第二届中国室内装饰设计大赛“中国百强设计师
2019-2020年度40 UNDER 40中国(四川内江)设计杰出青年
2019华鼎奖金奖
2019十间坊实战赛中国城市优胜奖
2019金住奖-2019中国(内江)十大居住空间设计师
客服
消息
收藏
下载
最近


























