查看完整案例


收藏

下载
2016年底设计,2020年初入住吗,恐怕是我设计生涯中历时最长的一个住宅项目。
「2020
DESIGN·红杉新作
- Location ·地址 -西安,雁塔区
Square Meters ·面积
400
- Design · 设计负责 -红杉创意设计- Mode · 服务模式 -全案设计+施工服务
▷绿地生态城
接到任务的时候,是我开始尝试用建筑师的思维去完成室内设计的初阶,当然,这本来就不应当割裂。
项目是非常传统的四层联排别墅,地上三层,地下一层,前后小花园。
花了些时间 分析推敲了下这个家庭的生活状态,下决心,把他们一开始内心建立的空间秩序,全部拆散重组,也下决心,把一直以来在方盒子内部的思考拓展出来。
中国人有个特质,很容易陷入一个固定的思维模式而不以为这其实是可以打破的。
几乎所有这一类型的别墅,包括样板间,在2016年前,从屋主到设计师,都习惯性认定,一层是客厅,餐厅等公共区,二层老人孩子的生活空间,作为户主,住在顶层,地下室安置一些食之无味弃之可惜的休闲娱乐甚至是杂物间,直至今日纷沓而至前来屋主家参观的已经入住的邻居们依然是这样的生活模式。
当然在百花齐放,设计思考碰撞激烈的今天,先破后立的苗头不断生长,已经慢慢在优秀的设计师中形成思维的常态。可是在2016年,我就是不要这样,是冒进的,很幸运,他们全盘接受了我的方案。
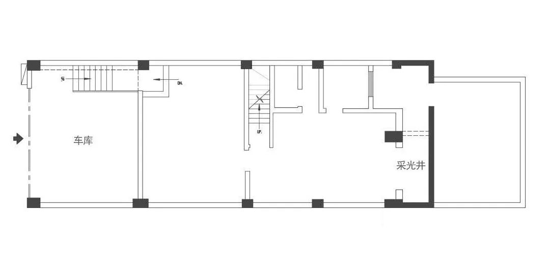
负一层
左右滑动查看
负一层 第一次看现场的时候,已经让我有点沮丧,层高4.3米,进深13.62米,这样的富裕空间,只有在北向有一个非常小的采光井,南向连接地下车库,只有一个门洞,毫无采光可言。
本案所有的设计逻辑都是从让负一层空间活化起来开始推理的,因为小区很大,进入几乎都是车行从地库进入,如果负一层成为对外会客,家庭全员共享的休闲空间...楼上三层就就可以完全私密,也缓解一层客厅,餐厨区过于拥挤,访客打扰家庭其他成员的问题。所以,把风雨间,外衣消毒,洗衣烘衣,会客区,观影区,茶室,客房,客卫,阅读区都放到了负一层。
传统的联排别墅,都是进深长开间窄,楼梯基本位于中间采光最差的部位,四层空间,用U型楼梯直通上下,没有转换,日常的垂直动线,一趟下来头都晕,更别说长时间生活的麻烦。通过以上户型调整,一层至负一层的楼梯我更改了位置,移到最南边外墙高窗边,通过楼梯洞口的打开,既解决转换的问题,更重要的是为负一层整个南向部分创造了巨大的采光条件。
因为负一层的层高,高达4.3米,客卫和客卧,分成了上下两层,加载在中部原来的楼梯间旁,卫生间不需要太高的层高,而客卧也是逢年过节,偶尔亲戚来访使用,所以不受层高的影响。
在夹层的客卧南向和东向两面,打开了两扇横向的长窗,保证内部特别的视野和采光。
一层
左右滑动查看
原户型一层客厅和餐厅之间有近60公分的层差,在同一层最常互动和使用的空间中,居然有三级台阶,对于家庭成员来说,这是一个非常大的bug。
因此,我做了一个大胆的决定,就是拆除楼板,把客厅部分整体上提。并且因为客厅迁移到负一层,这样把原来厨房的位置改变成为老人房,原来厨房餐厅整体向南移动形成超大的DK区,保证家庭成员在一层更舒适的就餐和起居。而老人卧室从二楼迁移到一层,可以让老人的日常生活变得更轻松舒适,可以在一层进行园艺,烹饪等活动。
二层
二层原来为两间没有卫生间的卧室,带一个公卫和原客厅上方的挑空,北向的房间非常鸡肋,非常小。
经过沟通,我建议屋主夫妇两从原计划的三层下移到二层,孩子和住家保姆的空间上移到三层,一方面孩子当时已经决定出国读书,家中暂时也没有住家保姆,夫妻二人未来是主要的常住家庭成员。
住在三层,每天从负一到三层是个挑战体力的过程。
改造后,整个二层成为一个拥有卧室,书房,独立衣帽间,盥洗区,马桶间,淋浴间,浴缸,运动区,桑拿室的综合套房。
三层
三楼北向房间跟二楼问题一样,小,难用。
经过调整,原有的卫生间外扩成为三层起居室,南向的卧室变成了超大的涵盖卫浴,衣帽间,书房的阳光套房,北向预留了配备独立卫生间的保姆间。
▷玄关・Vestibule
负一层的光的创造,恐怕是这个作品,我最得意的处理,之前做设计总是在“术”的层面不断钻研,可是恰恰忘了设计的本质就是要“以人为本”来解决各种问题。不光只有“医者仁心”,设计师也必须从“心”出发,才可以真真切切的把自己代入这个家庭和这个场地去感受,光的闪烁,风的拂动,时间的流逝。
对于一个别墅空间来说,最大的难度是功能分散造成的奔走辛劳,表面上享受了开阔的环境,实质上日常中要付出更多,什么交给保姆家政,这绝对不是最优的解决办法,自己创造的家,自己的居心地,却把生活完全交给别人不去参与,那么和住酒店有什么区别。所以,精准的研究屋主的日常生活习惯的细节,来设置家用电器等功能区,实现最高效的使用度。洗衣机,烘干机,包括LG的干衣柜,都隐藏在负一层的楼梯下,整个家庭的主要出入口,是符合两位屋主的使用习惯。
▷客厅・Livingroom
路边随意里剪了一枝琼花,摇曳在光影之中。
从一层下负一层的楼梯上看整个空间
女主人是位优秀的企业家,日常也精进修行,常会约几位同修和老友来家中品茗欢聚。
在空间中创造出独立的新的建筑体,提升整个负一层的趣味性和包容度,已经成为屋主回家最爱停留驻足的区域。
同样路边的枫树叶,灯光设计让简单的花器也呈现出高雅宁静的气质。
墙面采用本工作室自行研发的肌理处理,温润的光带来意外的侘寂感。
施工中,男主人给我发来很多次现场投下的光,字里行间都透着难以言喻的惊喜。
悬挑的踏步,阵列出完美的光影效果。
负一采光改善效果。偷来的光”。
▷餐厅・Dinningroom
原来的客厅成为现在的多功能餐厅,现在家庭生活的中心,大部分都从客厅沙发转移到了餐桌上,因为超大的桌面除了就餐,也成为家庭成员最喜欢坐在一起交流的地方。
一整面的鞋柜
一楼花园进入的衣帽柜,干净空灵的场地也不能少了收纳功能。作为一层的主要出入口,换鞋换衣服也是不能少的。
柜体采用了浅驼色的烤漆面板。一层入口连接南向花园的部分为瓷砖,其他空间地面主要为LVT地板。
一层大面积的留白,带来了无暇洁净的治愈感。
厨房・Kitchen
开放式厨房和中心岛台。
原来的餐厅成为现在一层空间中最核心最美的部分。
厨房选配了嵌入式的冰箱,蒸箱烤箱和洗碗机。
一开始打好了空间结构和层次的基础,接下来,我重点思考了如何可以让空间做减法,一方面好打理,重要的是全面的降低通过空间构建的存在感。所以楼梯并没有选择栏杆,玻璃等,而是用了“面”,钢板作为扶手,让复杂重复的楼梯踏步隐藏起来。
三层楼梯护栏以花槽来收口,天堂鸟的一抹绿,作为顶层爬升最好的吸引力。
▷主卧・Master bedroom
▷卫生间
・Bathroom
百叶窗简直是营造光影氛围的高手。
地砖上墙使空间融为一体,白色浴室柜对比鲜明,使空间富有层次感。
主卫的另一侧精心设置了桑拿房,周末可以好好的犒劳一下疲惫的身体。
三层走廊。
▷次卧・bedroom
▷关于不信任
作品虽完成,从无到有,设计这个维度,“新”居然因为时间条件的加载不经意的“旧”了,一方面感慨,时间过得真快,一晃三年多过去了,一方面复盘反省,为什么用了三年多的时间。
现代成年人,是被各种外因浸入而不断改变单纯的积累,因此在今天的设计环境中谈论“单纯”都是讽刺的。
2016年已经是我做工作室的第四年,团队早就摸索出一整套“全案执行”的模式,在当时甚是领先,从效率到出品都自我感觉良好。对这个案子,我报以非常大的期待,空间结构改造大,设计型,工艺,材料都选用了当时在我的视野中比较新鲜的线索,同时也带来了更多的难度,不论怎么牺牲利润,晓之以理动之以情,我都说服不了屋主接受,他们最终还是选择了纯设计,由自己来实施。
两种不信任重叠着。我不信任业主可以做到,屋主不信任我能真正站在他们的角度,当然另外的原因是男主人确实个人对参与实施这个过程非常的感兴趣。
这三年,尽管一直悉心指导,还是陆续发生,换项目经理,建筑相关质量问题修缮,屋主定的主材时间拖拉,返工等等一系列问题,我也因为漫长的等待一度失去了信心,用消极和虚饰的抵抗来面对作品可能失败的结果,这种高开低走的过程确实很磨人,漫长的日子里,内心也从来没放弃坚持,服务的工作群里,只要屋主有一点问题提出,我都会欣喜,就像生命还在成长着,或许艰难,但长着就行,去年工作室的年终客户答谢会还给屋主颁发《最坚韧不拔业主奖》。
人活着,到底应不应该有梦想?
不知什么时候,屋主已经默默搬进了新居,没有热闹的参与,我甚至没有察觉到这个变化,偶尔翻到沉底的群,怅然若失。
询问得知入住后,还是不死心,想去拍拍照片,为这段故事写个结尾。屋主大哥拍来了现场的照片,看过之后,心情复杂,喜忧参半。
喜的是,虽然不是100分,但这个空间,他们用了他们的全力,已然完成得很好了,屋主大哥还说,他们对户型的改造特别满意,朋友邻居们也夸赞,生活也很舒适,但是我可能真的太作,忧的是,现场有点冷漠,嘈杂...看不到最初跟他们相遇时,彼此看对方眼睛里的光,到底哪里出了问题?设计师如果只能帮助屋主打造一个优秀的物理环境,是否有能力,让他们在这个环境中找到真正的喜悦,我在想,容我想想......
找了个风和日丽的天,带着团队小伙伴,准备了一后备箱的资材,我们一起做了一场润物无声的改造,造一场哪怕只有一天的“梦”,哪怕只有一点点启发也好,隐藏杂物,移动家具摆位,插花,院子里找花材,整理床品,调整灯光,因为女主人不在,就差音乐和香氛了。
“察觉到,自己平日的生活方式,住在新房子里,如果没有好的心境去和环境相处,即使再好的房子也无法达到内心的幸福感,珍惜所拥有的才能体会拥有的快乐,对美好事物的向往,但不让这种向往成为自己的压力而变成自责和负担才是真正的接纳自己和他人。”看到照片视频中他们的笑容,那光又在了。
过程大概就是这样,现在想想,结果真的那么重要吗?我在努力学习因上努力,果上随缘,保有天真,心存梦想,记得,我们常常追逐远方,忽略的其实就是身边最珍贵的!
主案设计:欧阳子泫
主材配合:橱柜-motin /衣柜-GF/冰箱、酒柜-LIEBHERR/洗+干衣机、洗碗机、电磁感应灶-ASKO/蒸箱、烤箱-BERTAZZONI/衣物护理机-LG/抽油烟机-FABER/灯具-FULA/家具班兰。
视频制作:彭彭
Case Review
Honorary Award
部分获奖内容展示
【好好住营造家】西南赛区中户型top20【好好住营造家】2019年最打动你的住友家2019世界包豪斯设计大赛“金奖”第九届中国照明应用设计大赛西安区“佳作奖”搜狐·第十届中国室内设计明星大赛全国“银奖”第四届中国国际空间艺术设计大赛“筑巢奖”室内2014年度国际空间设计大奖艾特奖
艾特奖最佳别墅豪宅设计入围
上下滑动查看更多
客服
消息
收藏
下载
最近



















































