查看完整案例


收藏

下载
项目名称:《简韵》项目地点:湖南—长沙
项目楼盘:御景苑
项目面积:140m²
项目风格:现代简约
2016年中,我接到一个陌生来电:“恋念不舍你好,我五年前看到楼上邻居李总家你们做的整体设计,打造我非常喜欢,到现在我还记忆犹新,这次儿子的新房我只想找到你们帮我整体打造可以吗?
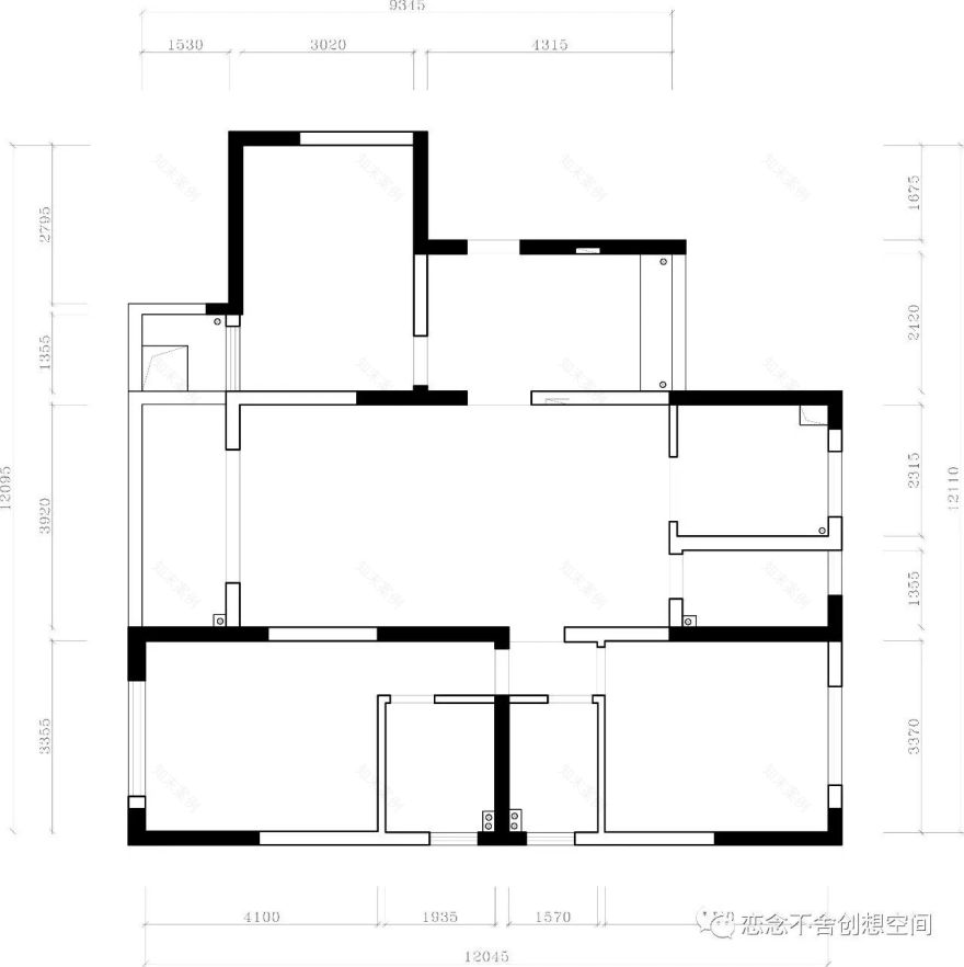
吴姐是一个精致有爱又拥有认真生活态度的妈妈,由于心爱的儿子事业处于发展关键期完全没有时间来管装修事宜,她想竭尽所能帮儿子拥有温馨的家。当了解到这一切时,我们再次被无私母爱所感动,恋念不舍团队秉承功能至上为原则,让成本最小化效果最大化的服务宗旨,为大家带来恋念不舍系列作品——《简韵》原始结构图
平面布置图
入户休闲区
返璞归真,用色简洁、素雅,营造一种温馨、亲切的环境气氛。
客厅接待区
在硬装上采用了白灰的关系承托整个空间的立体感,设计师在考虑空间的同时也没有忽视吴姐对家的舒适温馨的要求,在后期的软装家具及配饰上做了功夫,整个空间草绿色与橙色的运用使整个空间有了大自然的活跃性,舒适与放松。
餐厅区
客餐厅是一个大通间,设计师通过用顶面吊顶造型和区域的配色的手法,使功能区分明显,也是客厅与餐厅的空间感,即分又和。
厨房
白色简欧风整体橱柜,搭配暖灰色墙砖,便于清洁,也很美观。
生活阳台
干净、明亮、舒适
主卧室
蓝色布艺床靠背与背景墙纸搭起来很合拍,空间简洁,温馨舒适。主卧角落增加了五斗柜,不仅美观,也增大了储物功能。
次卧室
硬装部分极简,用色明快舒适。小卡通的装饰挂画,增加了空间的活跃性,不再单一。
书房
书房藏在进门玄关的角落里,原木色家具,舒适返朴归真在这里静静的看书,学习。累了在沙发上休息一下,感觉可以在这里待一整天。
来一张和我们亲爱的吴姐的合影
再次感谢,谢谢这么多信任与支持我们的新老客户的厚爱,恋念不舍将不忘初心,坚持用心用爱打造完美创意空间,我们一直在路上!
本案设计师及简介
杨洪波
湖南恋念不舍创想空间 创意总监
湖南省室内设计师协会会员
中国建筑学会室内设计分会会员
CIID湖南专业委员会会员
湖南省风水家协会会员
设计理念:功能至上,设计应“以人为本”来表达最自然合谐的空间创意!
获奖经历:2008年湖南省第八届室内设计大赛(家居实例类)银奖
2009年湖南长沙十大新锐设计师
2009年中国室内设计大赛(实例类)金奖
2009湖南省第9届室内设计大赛(方案类)金奖
2009湖南省第9届室内设计大赛(实例类)银奖
2010年中国亚太室内设计大赛(公装实例类)铜奖
2010年中国室内设计大赛(方案类)金奖
2010年湖南省第10届室内设计大赛(公装实例类)金奖
2011年湖南省第11届室内设计大赛(家居方案类)金奖
2012年湖南省第12届室内设计大赛(家居方案类)银奖
2012年湖南省第12届室内设计大赛(家居方案类)铜奖
2013年湖南省第13届室内设计大赛(公共空间方案类)金奖
2014年湖南省第13届室内设计大赛(方案类)银奖
2015年中国室内设计大赛(公共空间方案类)铜奖
2015年湖南省每15届室内设计大赛(公共空间方案类)银奖
客服
消息
收藏
下载
最近

























