查看完整案例


收藏

下载
点击蓝字境心一品,关注前沿设计微刊空间设计是对内心的探知也是情绪创意的抒发场所也许一千个人眼里有一千个家的样子但回归本质终究是不期而遇的温暖和自然惬意的恬淡用设计的符号去构建生活最本质的情感让生活回归生活九月洋房感受下最自然的设计,减法的呈现,它就会包容萬物。极简,也是一种极奢,它将设计元素色彩照明原材料,简化到最少程度,但对材料质感工艺的要求却很高,让空间发挥出极致的作用。线条的张力空间的质感境心一品高端设计
本案源境心一品极简原木极简是时尚界永垂不朽的神话极致经典神秘霸气成熟稳重而又不失惊艳韵味客厅整体挑高的空间,木质楼梯加上墙面内凹式造型,客厅餐厅中间隔着一个窗套造型,让空间看起来更加独立有型,电视墙顶部和窗套顶部也加入了筒灯和中央空调,整体简洁大气的造型,放在大宅里也是显得高档气质。家具的搭配上呼应空间的色彩调性,讲究流畅的线条,崇尚简约而不失时尚的设计理念。
电视背景电视墙采用天然纹理材质及石材拉槽,为空间增添穿越轻盈感,搭配深色的木饰面板营造了整体感。壁炉里跳跃的火苗点亮了整个空间氛围,为居者带来优雅惬意的感受,唤醒内心深处的依恋与回归。
客厅/入户玄关开放式厨房与餐厅完美衔接,黑白灰纹理的大理石与白色橱柜相呼应,整体色调和谐,散发着舒适而雅致的生活气息。透明的亚克力挡板配上橙色艺术装饰画,既营造了入户的玄关感,又不会有压抑沉闷的感觉。原木色的吧台和大长桌,清新自然。
主卧主卧吊顶做了个简单的弧形走边,搭配一圈磁吸轨道灯,床背景用了艺术涂料和木饰面板,整体色调比较温和。
小孩房也是无主灯设计,筒灯搭配灯带,用柔和均匀的光线让房间更加舒适明亮。整体色调偏中性,简洁大气的格局,同样适用于长大后的孩子。
地下室
主卧衣帽间户型改造
地下平面布置
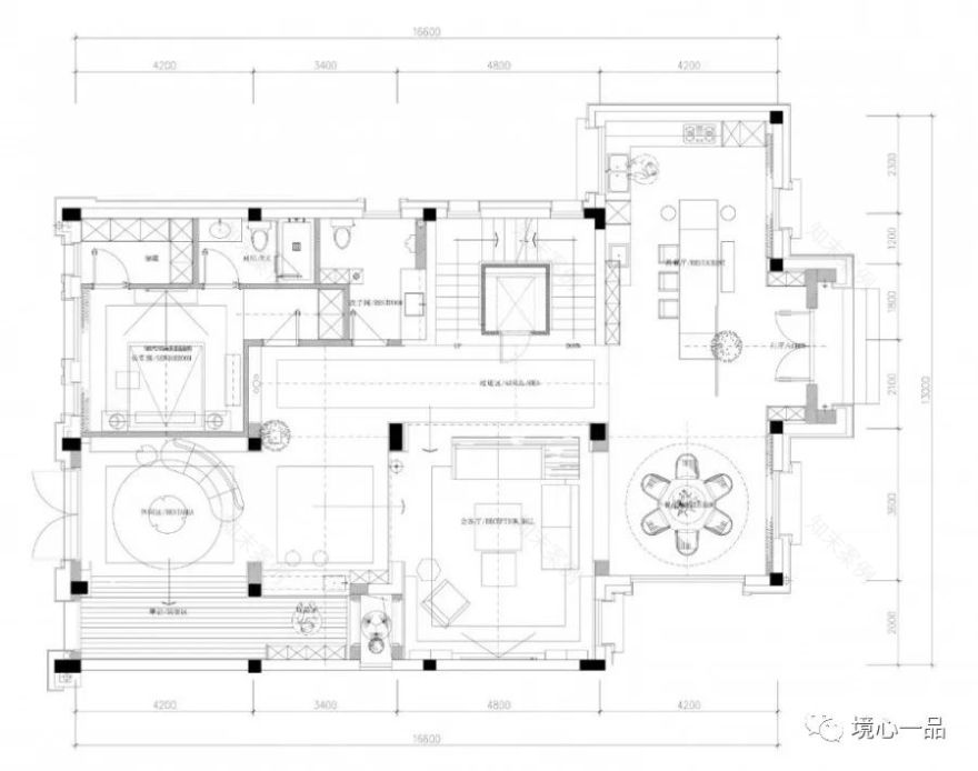
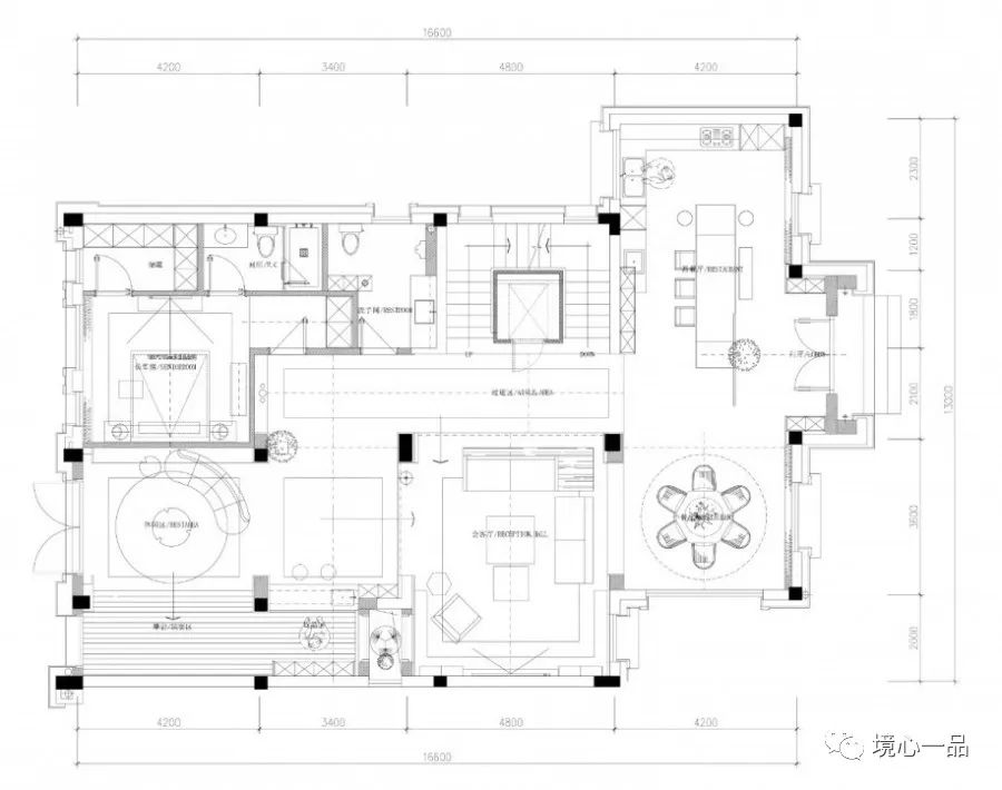
一层平面布置
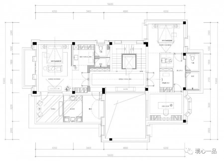
二层平面布置
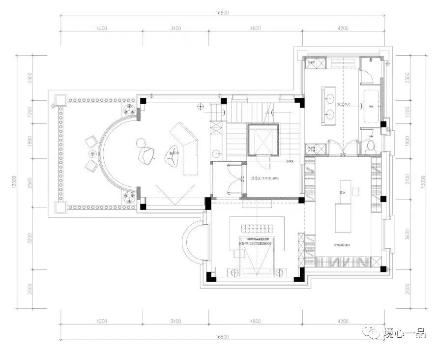
三层平面布置项目名称/Project Name:湖州九月洋房
设计单位/Design Unit:境心一品高端设计
设计原创/Original Design:吴斌斌
设计配套/Design complement:丁佳晨
设计顾问/Desigh consultant:郑成
项目面积/Area:600
境心一品更懂年轻人的设计品牌
我们原创/境心人居环境END
客服
消息
收藏
下载
最近
















