查看完整案例


收藏

下载
空间色彩带给人的感受,比任何单个的物体都要真实,浓烈艳丽的色彩直白而强势,它的意义一目了然,让人无法忽视,但越是简单的、平凡无奇的颜色,越能诠释复杂深邃的生活意义。
雅致的纯白空间,是生活不动声色的柔软~
本案位于东阳市,是一套复式公寓楼,接手这个项目的时候现场水电已快基本完成。由于东阳盛产木雕,所以原本当地设计的是新中式,后来经过跟业主沟通,改为了现在的极简风格。因为常住人口的关系,格局上面仍保留了原本的六房七卫,只做了局部调整,将主卫与老人卫面积变大,将原有卧室的储藏功能扩大了一些。公共区域上面,取消了传统的玄关,对称的常规造型。将大部分墙面改为了平面大白墙。将原有厨房800宽开门的形式改成了出入更为方便的1000宽吊轨移门。将设备间与消防房门全部做成隐藏式置于柜体内。客厅挑空空间,显得整洁有序大气,加上黑白灰的理性美学,墙面并未做过多的装饰,白色为底面,黑灰的线条做装饰,在视觉上给人干净利落的印象。地面的浅灰让居室有厚重感,不至于轻浮,沙发的材质与色调与地面墙壁相得益彰。素白的墙面以最原始的姿态矗立其中,地面与空间在此相遇,是堡垒亦是精神,更像是一种媒介,引导我们去感受大自然的变化。餐厅光线充足,透过落地窗户可以看到外面的景色,整体偏浅色装饰也使用餐环境非常干净。顶部的灯光很简单,灯光柔和,用一组白色与咖色的柜子做背景,旁边置于一组棕色的酒柜,简单、优雅,又充分利用了空间。晚上在圆形的餐桌用餐,浪漫、温馨。书房整面的落地玻璃墙面,保证了空间的通透性,休闲时可以站在二楼眺望客厅的动向,也成为整个空间过渡的衔接。从客厅到书房的过渡,从放松到安静的过渡,从安心到静谧的过渡。
案例地址:东阳市
项目面积:420㎡
主创设计:吴旭东
软装设计:陈鑫怡、朱俊泽、朱恒
软装设计:如是美设
项目设影:瀚默视觉
主要用材:岩板、进口墙地砖、进口涂料、玻璃等
主材品牌:
Casaltaliana、Tikkurila、Duravit、B&B、cattelan、arketipo、bonaldo、amura、flos、livingdivani等
黑与白,本是自然的昼与夜,光影交织所传递出的自然之美,同样适用于建筑空间本身。能在住宅上更好的体现独特黑白质感,表达我们希望与自然和谐的声音。
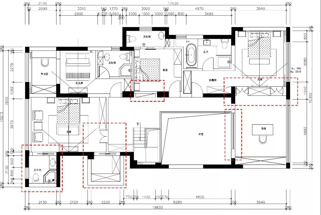
平面深化图
一层原始结构图
一层原平面布置方案
一层最终平面布置方案
二层原始结构图
二层原平面布置方案
二层最终平面布置方案
实景 图 片
客 厅
休闲区
门厅
餐厅
楼梯
书房
过道
卫生间
主卧
次卧
本案总结:1、全屋没有用到任何大理石,取而代之的是岩板与瓷砖,将公共区域的房门全部换成2mm宽无边框隐形门,后期与墙面刷成一个颜色的涂料,真正做到了不需要做墙面基础的隐形门。
2、全屋无主灯,用了硬灯条与磁吸轨道灯替代。将公共区域的踢脚线全部做成内嵌于墙面,将墙面做成离地效果。
3、色彩方面用了最能突出极简概念的白色,配以黑色金属线条勾勒。软装搭配上也没有过多的作用跳色,不想抢了风头。
RECOMMEND
往期推荐阅读
260㎡大港.御景新城复式实景
吴旭东室内设计工作室
430㎡绿城.御园现代别墅
天鸿·天际 180㎡ | 润 |
ABOUTUS
关注&分享
客服
消息
收藏
下载
最近





















































