查看完整案例


收藏

下载
项目地址 | Address:城投广场
项目面积 | Area:142㎡
设计时间 | Time:2021.06
设计主创 | Designer:许鑫
主要材料 |Main materials:瓷抛砖 成品软装 整木定制 无主灯规划 进口涂料
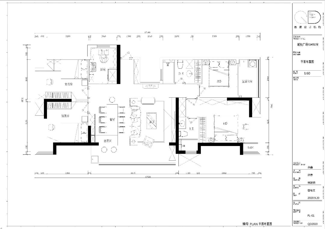
平面图布置
客厅/ LIVING ROOM
时间和阅历带来变化,从繁至简,华丽到自然,尊重居住者的转变,唯有设计是永恒,满足每一个不同的灵魂。
整个空间以营造纯净、自然、惬意的生活空间,法式线条的保留是一段纪念也是一段重生。
"Only design is eternal, satisfying every different soul."
运用大自然的色彩,不同材质同色系之间的渐变过渡,呈现出一个生机勃勃又变化多端的居住空间。
The use of natural colors, different materials with the gradual transition between the color system, showing a vibrant and varied living space.
在繁华喧闹的市中心,期待跨过简单的容身之所,跃进理想生活的具象表达,而空间的具象表达,应是绝对的自由与克制的感性。
把美学和生活的仪式感放大却细微的植入,于一茶一书之间。
It enlarges the sense of aesthetics and rituals of life, but embeds them in a book.
功能与实用并驱。扭转了原本的空间感,这是一种极为巧妙的思考,让空间以一种柔和的状态展示在我们面前。
宽敞明亮的空间感,以自然的质感、自然的光给空间最真实的反馈。
多个功能空间的互交在设计中被特别的重视,从改变现有建筑的空间和动线关系入手,在最大程度上做到相融、相合。
设计主创
许鑫
器渡空间设计创始人
2020 “金尺杯”住宅空间设计类·优秀奖
2020年中国国际设计周三明设计十佳品牌人物
2020年三明红星美凯龙设计之星
2020年中国新地产设计大会年度优秀别墅设计师
-END -
- 往期作品 -
器渡设计 | 平凡住宅
器渡设计 | 静月初心
器渡设计 | 节奏变律
器渡设计 | 喧闹中独享宁静
器渡设计 | 轻奢有度,浪漫刚好
器渡设计 | 清风慢屿
器渡设计 | 声音奇境的寻宝之旅
器渡设计 | 隅悦
器渡设计 | 无也乐之
器渡设计 | 年轮
器渡设计 | 清岚鹿梦
QIDU DESIGNING STUDIO
全案设计|软装设计|品牌商业空间设计|
客服
消息
收藏
下载
最近
























