查看完整案例


收藏

下载
华远云和墅
Case Info
项目简介
一山一水,城之命脉,“千年羊城,万年云山”华远·云和墅占据南粤名山——白云山,凭借稀缺的城市核心资源及华远地产优质的筑造资源,载誉“广州第一别墅豪宅标杆”,以奢雅大宅的境界,代表了一种用大宅品相领御人生的气度,将居住、功能、创新、美学四方面结合,实现着美学主义与功能主义的完美契合,引领着繁华都市的“墅质”生活体验。
广州艺家设计装饰,始终力求简约且颇具品质的概念,在寻觅有诗学倾向的美。
力求简约,用细腻的设计向美学致敬,打造兼具时尚设计、生活与艺术的品味府邸,用设计充分彰显内心世界,传达对于美的独特理念。
ProjectName|华远云和墅
HouseArea | 450m²单栋别墅
DesignStyle| 侘寂 •极简
DesignStudio丨广州艺家设计装饰
Designer丨邹德旭
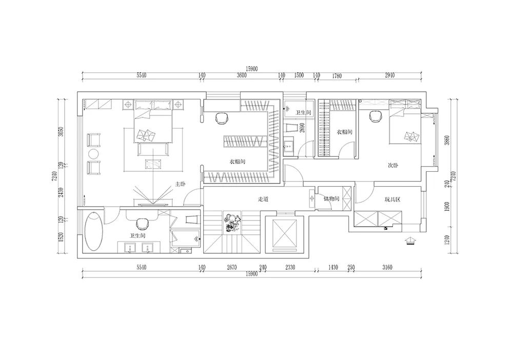
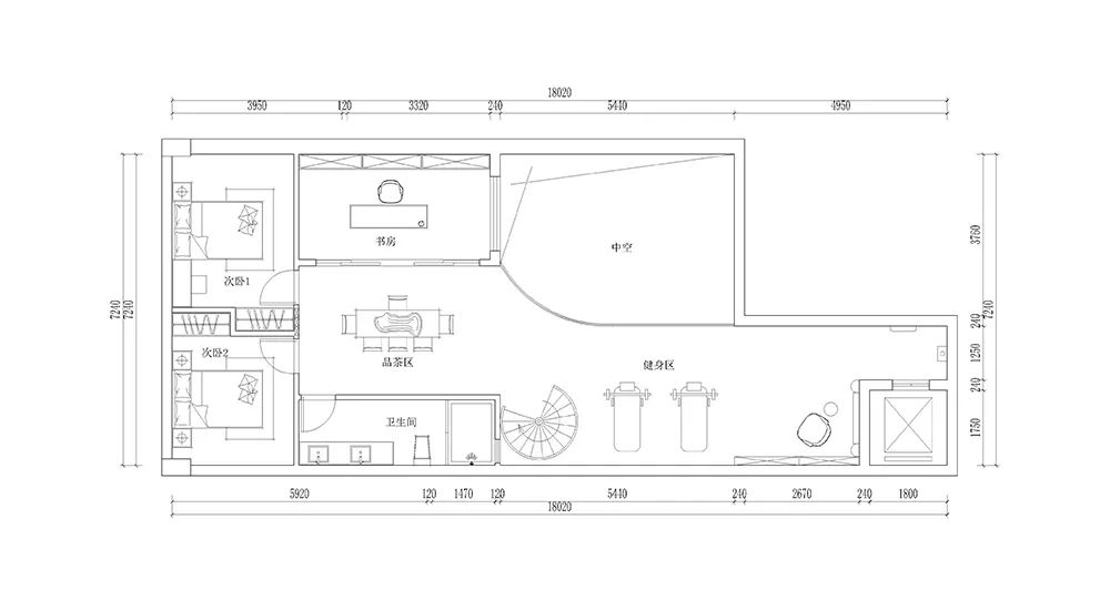
▲项目平面图
Case Showing
效果展示
户外花园
Outdoor Garden
借用大量原木色家具的点缀,墅院与周边的青松翠柏产生了天道自然的联结,仿佛把盎然生机招呼进院内,叫人心生愉悦,畅快淋漓,增添出几份闲暇之意。
米白的外墙替主人家隔绝了外界的烦冗,好似茂密林海里吐出了一颗耀眼的珍珠,阳光照进院子里,光影移动,让生活回归到柔软的初衷,简朴而温暖。
会客区
Living Space
白灰色的水泥墙面为会客区覆上了原始而质朴的视觉体验,侘寂而富有诗意的气韵油然而生,有一股经过了漫长岁月后,沉淀于年华的理性之美。
大量的灰色基调下选用了黄褐色作为点缀,举手投足间亦有生命力的照顾,在这里,没有匆忙忙碌的生活,没有浮于表面繁华,只余存最纯粹质朴的自然美学。
休闲区
Leisure Space
酒柜和吧台保留了水泥搭原木的配置,粗犷豪放的视觉实际上赋予着空间充分的自由感;浑然一体的陈列柜内放置的不仅是佳酿,更是对生活的美好承载,觥筹交错间,美酒配知己,酒不醉人人自醉的迷离境界,妙不可言。
用最返璞的烧煮方式呈现茶室的温度,铸铁质感的器皿还原了地道的烹茶韵味,表达了对自然的敬畏之意,不经意间弥漫出诗学倾向的美。
阁楼处并排而设着健身器材,当代生活的热爱离不开对自我健康的科学管理;一旁简易的书架与软乎的沙发能供以小憩,有条有序地映射着轻快的生活节奏。
客餐区
Dining Space
以米黄与淡灰为基色,饱和度相近的色彩微妙地划分开功能区,通过材质的差异相互呼应,整个空间内敛而含蓄,没有多余的装饰,却能完美地服务于生活。
阳光透过玻璃窗投入,与桌椅的倒影在地板上纠缠,光影斑驳之下,生活被注入了自然的活力,叫人置身其中,感到心境平和,自在安然。
私属空间
Private Space
主卧的设计围绕以感受和体验展开,墙面略显凹凸不平的粗糙肌理与野性的艺术挂件,流露着回归本真的审美格局。整体配色采用水泥质感的灰白基调,雅致之中不乏古怪,侘寂与精致完美并存。
睡眠区的布局予人一种回归宁静的空灵。抛弃了鲜活繁杂的色彩转而倾向聆听真情实感,在沉寂里追寻内心的向往。关于美,大可不必太过紧绷,何妨慢下来,驻足静思,感悟栩栩如生的侘寂之美。
浴室拒绝过度奢华的装饰,用大面积的镜面与淡黄的灯影直截了当地述说美的质感,与利落稀疏的线条一起,带来了轻盈极简的生活感;门框隐匿在淡灰色,让最纯粹的浪漫盈余在空间里,看似不完美,实则已圆融,留下一抹耐人寻味的情调。
素简低沉地述说着别样奢华
Designer
主案设计
DANIEL 邹德旭主案设计师邹德旭,广州艺家设计装饰工程有限公司创始人及设计总监、亚太设计室内高级设计师、国际设计交流中心认证会员、中国室内装饰会员中国建筑学会(CHD)室内高级设计师。毕业于东北大学,后赴广美、德国包豪斯学院进修及意大利米兰理工大学进修。
邹德旭专注于住宅设计、别墅居住文化,至今积累十余年别墅案例。其创新的设计语言,将人文、自然、艺术融会贯通,向客户传递理想人居文化及高品质墅院生活方式,深受客户欢迎。其作品多次刊登知名杂志,并荣获多项国内外权威奖项,荣膺“中国建筑装饰协会-中国设计别墅/大宅设计专业十强设计师”。代表作品包括剑桥汇、颐和高尔夫、华远云和墅、御湖名邸、岭南公馆、天誉半岛、天玺湾、岭南林语、绿地新里缇香公馆等知名高端住宅。
客服
消息
收藏
下载
最近




















