查看完整案例


收藏

下载
家,似船只停泊的港湾,似树木踏着的土地,似鸟儿停歇的巢儿,那是无论何时都会依靠的肩膀
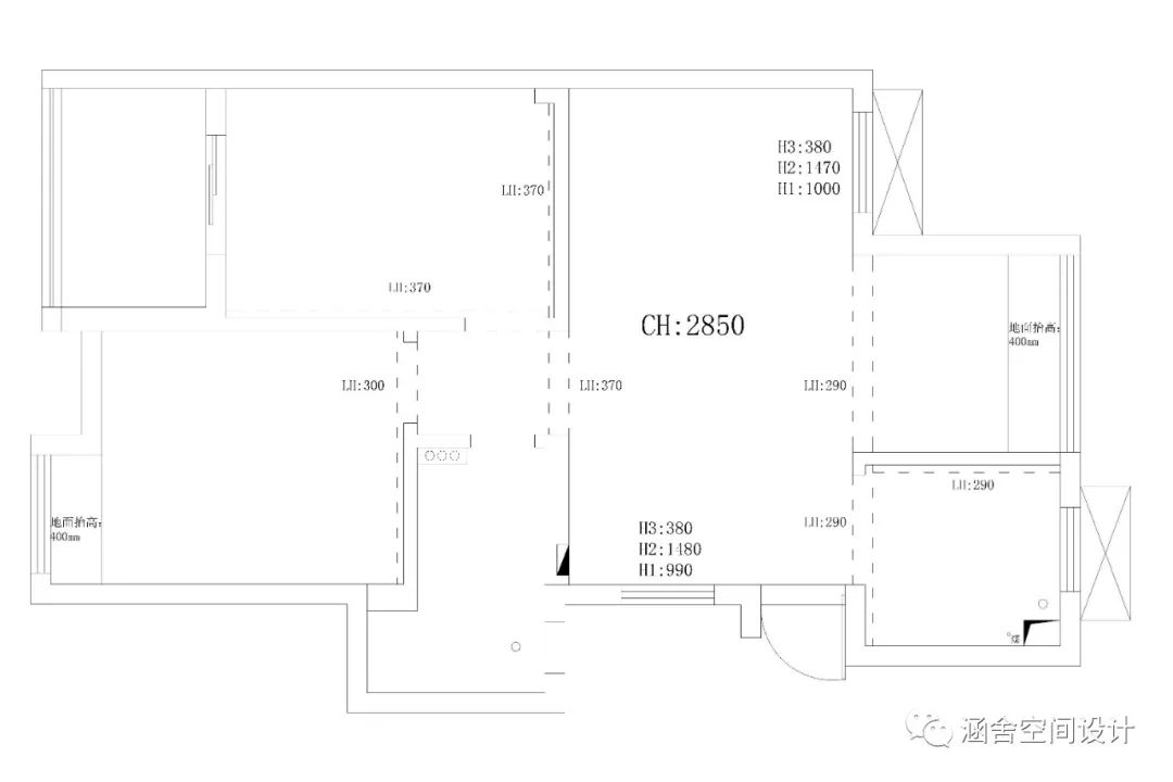
户型图
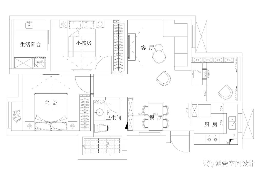
平面改动:原结构是三房户型,因为父母在城中自有一套房子,基本不会过来住,所以就考虑了两房。考虑到客厅空间不大,窗户也不是很大,所以将北向的房间作为开放式书房,这样视觉和空间上都对客餐厅区域做了一个很好的补充,不会让空间觉得压抑,对客厅的采光也是一个很好的加强。小孩房的改动就是门口的移位,一来避免和卫生间门的直接相对,二来更好的增加了储物空间。效果图
客厅
最初设计的时候,对于这堵墙,想了好几个方案,因为空间小,虽然门口直接对着沙发,却也不想为了玄关而做玄关,那么对于这堵墙的设计,就显得尤为重要,因为这是进门的第一背景。
想到现在社会生活的快节奏以及高强度的精神压力,家赋予我们的就不光是肉体上的休憩,更是精神上的放松,所以和客户沟通之后,最终这堵背景墙的设计就是现在这样,乳胶漆刷出的灯光图形,温暖的黄色,就像黑暗夜晚里的指路明灯,让主人疲惫了一天的身心得到放松。
之所以选择这三幅画,行进中——即将靠岸——停靠,也是想喻示着忙碌了一天的主人可以回到温馨的港湾。
装修后期,正式确定软装之时,客户突然对这张千鸟格的休闲单椅以及绿色的仿电视机小边几种草不已,所以这部分有别于效果图,做了修改,通过对靠包和墙面小挂钟的颜色选择,起到了很好的呼应效果实际效果比效果图更好,颜色的呈现更为丰富。
可爱的小边几,主人对它种草不已分量还不轻呢
因为毗邻主背景墙,所以不同于一般的电视背景墙,这里对于墙面的处理很是清爽,不想过多的造型或者颜色让空间显得很乱,所以仅仅是通过成品家具,层板以及小挂钟的组合,使电视背景墙简约清爽中带有层次感,绿色的小挂钟也是与小边几以及靠包做呼应,让空间充满一些活力。
餐厅
餐边柜选择了拼色的处理手法,也是现在很常用的手法之一,通过外露部分和柜门的不同颜色对比,让餐边柜更生动,有层次感,另外预留电源线,在柜体内暗藏灯源,也是对餐厅光源的补充,外露部分也能放一些随手可拿的物件。
顶上的风扇灯,也是非常实用,不冷不热的时候,将其打开,喝着小酒,就着花生米,吹着小风,生活就是这么惬意,重点是还不占空间,不用烦恼换季收纳。
吊趟移门,地面更清爽,没有轨道,没有门槛石,客餐厅的地砖也能跟进厨房,视觉上有更好的空间延伸的作用鞋柜底部留空,这样换了鞋就能踢进去,能偷懒中间留空可以放放钥匙,小快递盒,包等等
厨房
厨房柜门颜色上采用了下深上浅的做法,更有层次感其次在拉手上的选择,采用了黑色免拉手的做法,更时尚的同时,对小孩也是一个更好的保护,避免了好动阶段的频繁碰头
厨房设计成了U字形,不过考虑到空间尺寸因素,所以在靠冰箱一侧,只做了40cm的操作台面,这样可以不影响操作空间的同时,增强了收纳,以及小电器的放置另外考虑到这边做吊柜可能会显压抑,所以就做了两个小层板,虽然收纳减少,也相对容易落灰,但是胜在空间感更强
卧室
因为没有入住,所以没有上床品,所以效果略有遗憾主卧整体是白色,胡桃色搭配局部蓝色
书房
最初设计的时候,客户是考虑用成品书桌的,因为相对来说,成品家具一定程度上会比木作定制更好看,不过沟通过后,考虑到书桌书柜的整体性以及对于电源线数据线等的隐藏问题,最后选择了一体定制
在书桌靠墙的那部分,做了留空,预留了电脑主机的位置,然后在桌面预留线孔,这样就不会出现以往电源线一大把的情况存在,清爽美观
当然了,如果预算更充足的情况下,也可以考虑实木做油漆,效果会比免漆板更好 另外设计了小吊灯,这样可以保证桌面的清爽,不需使用台灯
窗帘采用了拼色,不会显得太单调
客户对于实木,尤其是以前的物件,有难以割舍的喜爱,所以特意找了手艺好的老木工,做了几个小板凳,很有回忆感
懒人沙发以及小坐墩,可以在上网之余,放松的时候悠闲地坐着,看看窗外的室外泳池,或是细品手中书籍
卫生间
卫生间用了清爽的白色亚光工字砖,地面用灰色六角砖,这样更有层次感,而且地面不显脏。由于户型小,没有充足的设备区放空气能,所以使用了即热式热水器。浴室柜是定制的,这样更贴合现场尺寸,性价比也更高,针对储物不足,也做了镜柜。
淋浴房内采用了回形走水,中间踏板做防滑拉槽处理
预留了电源,在镜柜上方安装了两个筒灯,这样照镜子的效果会更好一些
项目名称:橙色港湾
房屋情况:毛坯
项目面积:90
合作模式:设计+半包
设计师:童昌健
室内设计:涵舍设计
施工单位:涵舍施工
完工时间:
2019.5
装修造价20万
欢迎转发分享本文
You are welcome to share and repost this article
客服
消息
收藏
下载
最近





























