查看完整案例


收藏

下载
Mirror x 镜子摄影
项目名称 | MOTIN摩町设计
设计单位 | 姚思萌
全案设计 | 重庆市江北区海岸国际C区
项目地址 |
1400
项目面积|130W
项目投资|2021年
竣工时间|麻圆
项目摄影|
MOTIN x MIRROR
这是摩町设计陪伴镜子装艺摄影的第五年,从百平空间,到千平场地,相互见证彼此成长。
本案是融合接待、办公、摄影、展示等多功能为一体的摄影基地,甲方要求该空间可承载未来十年的发展变化。因此,我们就未来的各项可能进行探讨,在动线及结构部分下了大量功夫。
▲大厅
在动线上,以“U字形”动线联动整个空间,让大厅、办公、化妆、服饰、展示、摄影等各区域串联,方便以最短的距离前往各处。
▲化妆区
| 减法&沉浸
刻意设计的两条长廊,是每个人行动的必经之路,点缀画像,便成了展示的一部分。设计师利用其景深感搭配天花、墙面的统一材质营造沉浸效果,用弧形造型及交错的结构打破直线条的单调。
▲办公区过道
同时,为了让空间有更多的可能性,我们在硬装部分做减法,结构简约,为空间留白,因而具有更强的包容性,适合未来软装及风格更替。
▲服饰区过道
▲婚纱区
| 质朴&自然
轻纱、棉麻、柔絮…
纵道、肌理、老木…
柔和自然的设计,让舒适感沁入体验。
▲原始平面图
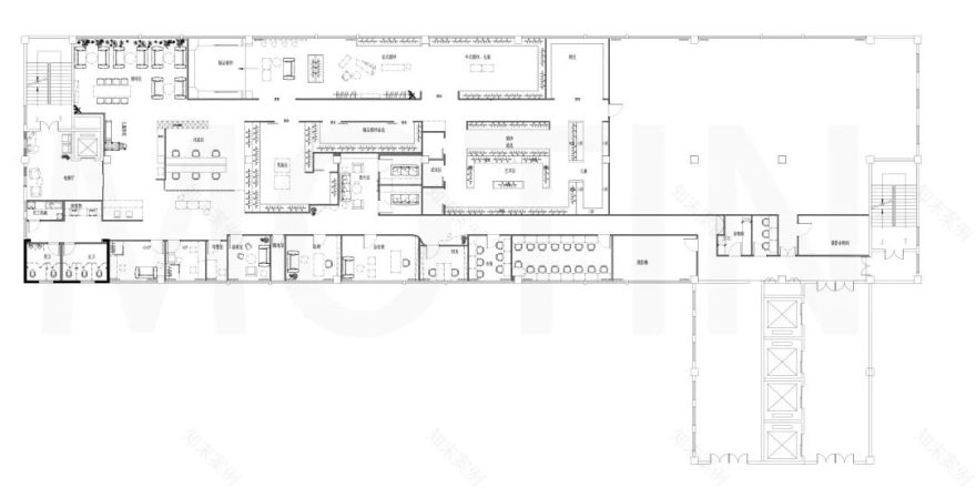
▲平面布置图
姚思萌
重庆建筑大学
重庆Motin摩町设计 创始人&设计总监
重庆市建筑室内设计联合会 理事
2020 意大利A’ Design Award 铜奖
2020 意大利A’ Design Award 铁奖
2020 40UNDER40中国(重庆)设计杰出青年
2020 APDC亚太设计精英邀请赛·商业佳作奖
2020 她设计·年度优秀空间设计奖
2020 红棉中国设计·室内设计奖
2020 酷+创造营 2020年度先锋设计TOP300
2020 重庆居住样板间TOP50
2019 木兰奖设计实战赛商业组·十佳作品奖
2018 APDC亚太设计精英邀请赛·商业佳作奖
2018 金瓦奖年度商业空间·优秀作品奖
MOTIN摩町招聘
景观设计师 | 室内设计助理 | 实习生
欢迎志同道合的朋友们加入我们
客服
消息
收藏
下载
最近






















