查看完整案例


收藏

下载
墨色 | 作品名称 姚思萌 | 全案设计 MOTIN摩町设计 | 设计单位 510㎡(花园200㎡) | 项目面积 120W | 项目投资 重庆市北碚区蔡家中庚阅玺 | 项目地址 边界人 | 项目摄影 2019年 | 竣工时间
本案建筑共四层,其中室内总面积310㎡。室内每层空间并不开阔,如何扩大空间体验感,并同时兼顾功能性与实用性,是本案设计师着力突破的问题。
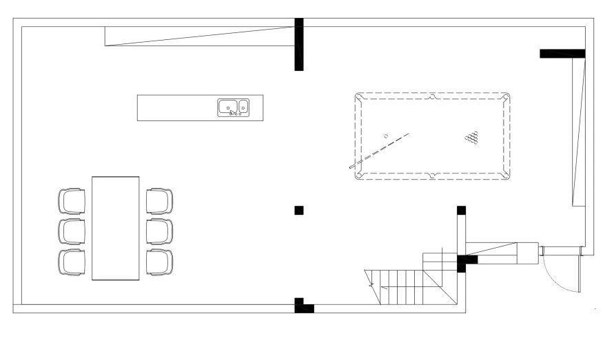
一楼:厨房&客厅
本案业主是下厨狂热爱好者,要求厨房功能全,空间大。因此,设计师将一楼原有的狭长空间设计为“餐厅+过道”二合一开场区域,冰箱、烤箱嵌入柜体,满足使用需求,避免空间浪费。
艺术玻璃隔断中厨与客厅,打造开敞式餐饮区,通过玻璃让空间在视觉上扩大。西厨移至电视墙后,整个空间形成以电视墙为中心的动线,每个区域间的路程均为最短距离,走动流畅,提高生活效率。
楼梯
通透的钢化玻璃,使空间在视觉上进一步扩大。同时,黑色扶手向上延伸,加强空间立体感与纵深感。
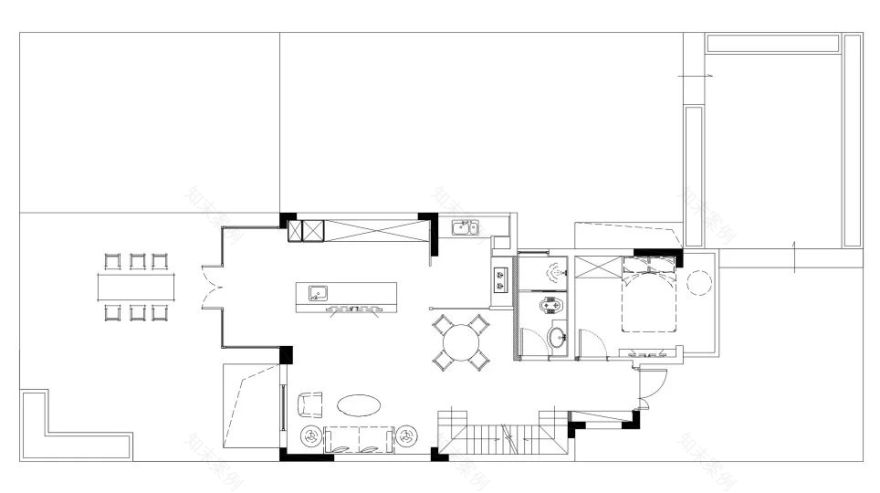
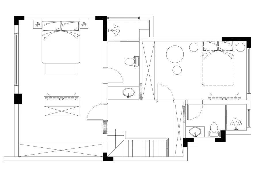
二楼:居住区
简约设计,套房设置。
过道处深色立柜与黑色楼梯扶手相呼应。
负一楼:茶室
实木长桌搭配轻体量感靠椅,轻重结合、刚柔并济。
大画幅水墨画点缀空间。
| 户外花园
长桌、藤椅、竹篱、原木...
亦家,亦自然。
户型图
姚思萌
重庆建筑大学
重庆Motin摩町设计 创始人&设计总监
重庆市建筑室内设计联合会 理事
2020 40UNDER40中国(重庆)设计杰出青年
2020 APDC亚太设计精英邀请赛·商业佳作奖
2020 重庆居住样板间TOP50
2020 她设计·年度优秀空间设计奖
2020 红棉中国设计·室内设计奖
2020 酷+创造营 2020年度先锋设计TOP300
2019 木兰奖设计实战赛商业组·十佳作品奖
2018 APDC亚太设计精英邀请赛·商业佳作奖
2018 金瓦奖年度商业空间·优秀作品奖
客服
消息
收藏
下载
最近



























