查看完整案例


收藏

下载
Project description
项目介绍
项目名称 | Name
:卓越青竹湖叠墅项目地址 | Address:湖南长沙建筑面积 | Area:252 ㎡ 屋顶花园43㎡房型 | Type:别墅上叠设计风格 | Design Style:简约
室内设计 | Interior Design:谢江波
参与设计| Participatory design:钟颖晖 洪佳琪 刘阳
Interior design
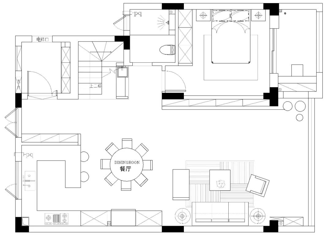
平面设计图
▲一层
二层
▲三层Project background
项目背景本案位于长沙市开福区卓越青竹湖。户型卫两层室内加一层屋顶花园,总面积约300㎡。设计风格定位于现代风格。
Layout plan
户型分析
户型特点:原户型客厅为挑高设计,一层客餐厨加一间卧室,二层为两间卧室,三层为一间半室内的房间,加上一整层的屋顶花园。
Design description
设计说明
布局上我们把挑高部分搭建楼板,客厅上空为二楼的主卧室。风格定位为简约暖色,温馨舒适自然。
LIVINGROOM / 一层客厅
DININGROON / 餐厅
BEDROOM/ 主卧
BEDROOM/ 儿童房
BEDROOM/ 父母房
MAIN TOILET/ 主卫
-THE END-Designer
设计师简介
设计主创:谢江波,湖南行舍空间设计研究室主持设计师
获 奖 荣 誉
2021年 二十四届 CIIC中国室内设计大赛 住宅实景类 铜奖
2019年 IAI DESIGN AWARD 全球设计大赛 铜奖
2019年 湖南建筑室内设计大奖赛 银奖
2018年 湖南省建筑室内设计大奖赛-建筑室内一体化-商业空间-住宅空间三项大奖
2017年 居然设计家杯家居空间大奖赛 全国银奖
2016年
IAI DESIGN AWARD
第九届全球创意设计奥斯卡最佳设计大奖(IAI BEST DESIGN AWARD)2016年十六届CIID湖南省室内设计大赛办公场所类唯一金奖
2016年中国室内设计年度评选金堂奖年度优秀样板间/售楼处设计
2016年十九届CIID中国室内设计大赛生态环保类铜奖
2015年十八届CIID中国室内设计大赛文化传承类银奖
2015年十八届CIID中国室内设计大赛文化传承类铜奖
2015年十五届CIID湖南省室内设计大赛家居空间类金奖
2015年十五届CIID湖南省室内设计大赛酒店会所类铜奖
2014年IAI AWARDS全球空间设计大赛家居空间类银奖(居住空间方案类最高奖)2014年十四届CIID湖南省室内设计大赛家居空间类金奖
2013年十三届CIID湖南省室内设计大赛住宅空间类银奖
客服
消息
收藏
下载
最近













