查看完整案例


收藏

下载
境 · 暖condition · warm
放松全部的身心煮茶、饮酒、养花、种草、下棋、会友偷得浮生半日闲大量的原木元素配合干净素雅的砂岩板砖无主灯设计更富有情调干净、安宁、雅致用自然的材质、温暖的色调塑造一个心灵的桃花源家是心灵的庇护所是身心的港湾愿我们的设计赋予空间温暖去温暖那颗归家的心灵——陈静2020.6.27
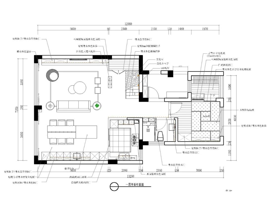
延伸家居想象,营造无拘束的自由与业主夫妇是相识多年的好友,虽然平时各自繁忙,偶尔相遇亦是相谈甚欢,喜爱一切自然的、美好的事物,旅行、摄影、手作、花艺等等,我们决定为他们全新诠释现代自然生活美学,真正走进日常生活里的烟火闲趣。在这个两层复式约150平的空间中,设计师巧妙借景借势,将所有的分隔墙拆除,门窗更换成宽大的落地窗,从而营造出一个无拘无束的自由空间。▼屋顶露台
“江南好,风景旧曾谙;日出江花红胜火,春来江水绿如蓝。”当静谧的风拂过空中花园,爬上竹篱笆的山茶悄然盛开,小院里的花在低调含蓄中,默默绽放自己的风采,抬眼是赏不尽的花容月色,低眉是与家人共话夜烛。每当蓦然回首时,深爱的家人就在灯火阑珊处。
▼客厅
在这里远离城市的喧嚣
家是什么?
是身体与心灵的寄托,是空间中物与人的关系,是空间光影的变化,也是繁华世界中仍保留的温柔所在。我们打穿客厅与餐厅的束缚,将自由、放松的理念融入到空间之中,客厅、餐厅、中岛台、中西厨、楼梯间,均设计为自由流动的空间,“静”有条理,“动”而有序,惬意通过设计展现在空间中。
▼餐厅
自然、优雅的配色,温馨、迷人的灯光,视觉与触觉的多元碰撞,木质与大理石形成冷与暖的对比,一枝翠绿恰到好处的调和了空间的气氛,在这个悠闲的世外桃源里,享受真实的人间烟火生活。
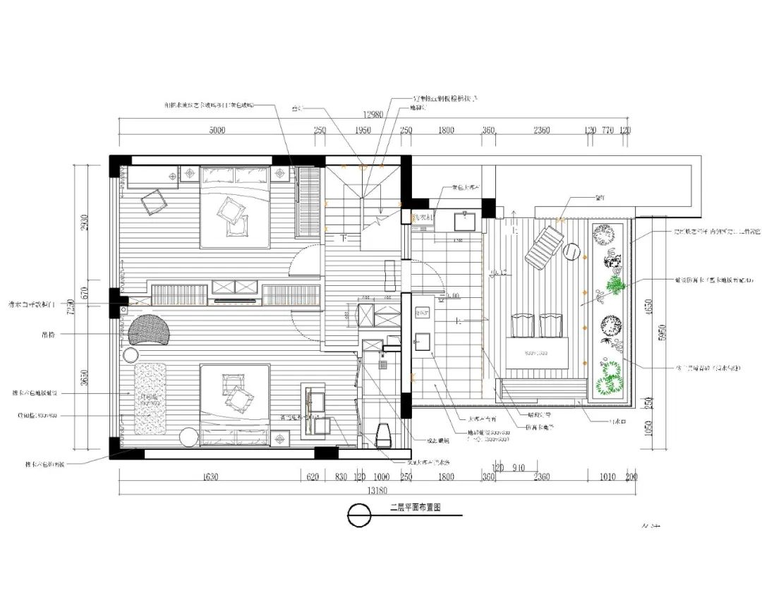
▼多功能房
久居繁华之后,人们便格外向往宁静的生活,草木竹禾的空间,无疑是最亲近自然气息的所在,在这个纯粹的空间中,静坐养气,冥思凝神,让身心得到彻底的放松。▼楼梯
楼梯木地板暖意融融,就算光脚踩上去也非常的舒服,感应灯令夜间行走也变得安全放心,米白色钢板挡板增加了纯净空灵的氛围,楼梯下方的微景观,隐藏不露,笼之于内。灵动与透气的布局,为楼梯空间带来优美、安详的视觉体验。
▼主卧室+主卫
大面积的橡木板和暖白色相配,呈现出更立体的原木质感,阳光透过窗帘映入一层春色,坐在吊椅上轻轻的摇晃、发呆,像是回到最原始的姿态。既有独处时的闲适,也可有与家人嬉戏的享乐。主卧卫生间采用当下流行的,三分离设计,方便舒适,同时让空间充满流动性,自然融于空间。▼次卧
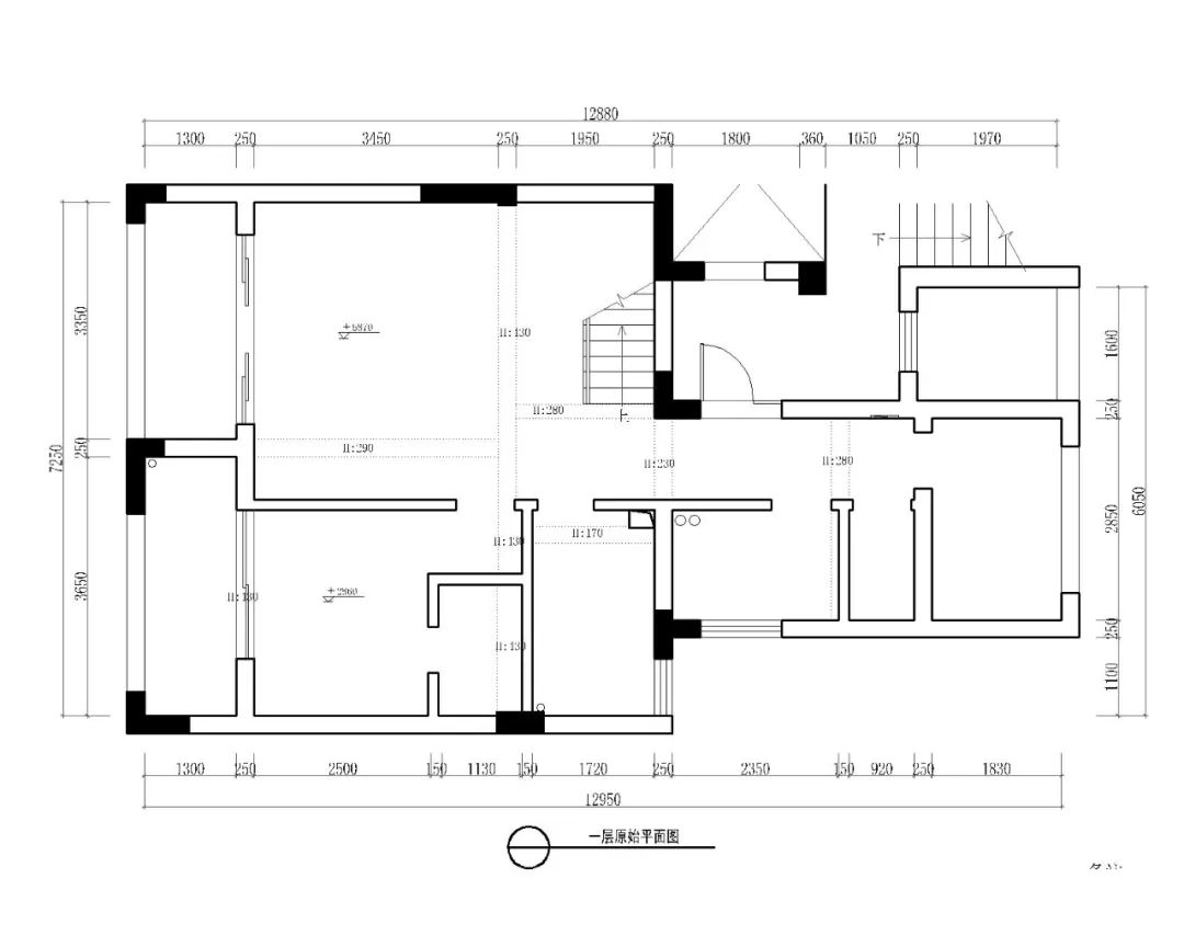
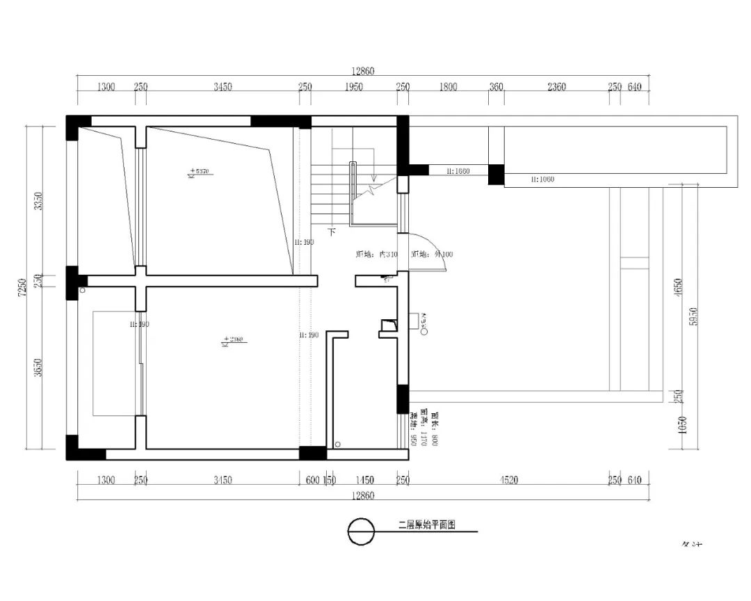
次卧按照生活场景进行重塑,让居者在平静与自由的氛围得以休憩,木作的圆弧造型,呈现出放松的肢体语言,低饱和度的色彩,为空间增加柔软与温度。▼原始结构图
▼平面布置图
项目名称/境·暖
项目地址/苏州·弘阳上园
项目面积
/ 145
项目风格/现代风
设计主创/陈静
方案深化/周瑜、张娜娜
空间摄影/TS建筑摄影
- 往期推荐阅读 -
陈静禾景装饰工程有限公司创始人总经理大陈设计事务所创始人创意总监常熟装饰设计行业协会副会长苏州装饰设计行业协会理事2020亚太“桃鼎奖”年度最佳设计奖2019“创意双城·创意生活设计奖”商务空间作品类金蝴蝶奖2019金梁中国设计奖江苏榜2019CIID第二十二届中国室内设计大奖赛休闲娱乐工程类铜奖2019苏州好设计大赛“商业空间设计”、“住宅空间设计”类十佳作品奖2019第二届中日国际设计文化交流展IDPA中日国际先锋设计大奖2018艾鼎国际大赛“商业空间类”优秀奖2018金堂奖首届中国青年设计师先锋榜全国榜TOP1002018获得M+高端室内设计大赛“2018最具潜力设计师”2018第四届金瓦奖“年度商业空间入围优秀作品”、“年度居住空间优秀作品”2018中国(苏州)装饰设计行业协会“协会杯”最佳空间十佳作品奖2018“永隆星空间杯”江苏省室内设计、陈设设计大奖赛商业空间银奖2018第八届中国国际空间设计大赛铜奖2018入围国际设计大赛艾鼎奖2017获得第八届筑巢奖别墅空间优秀奖2017“永隆星空间杯”江苏省室内设计、陈设设计大奖赛住宅空间银奖2017“永隆星空间杯”江苏省室内设计、陈设设计大奖赛住宅空间铜奖2017上海设计周创意生活设计金蝴蝶奖别墅类金奖2016获得第七届筑巢奖公寓普通户型优秀奖2016“永隆星空间杯”江苏省室内设计、陈设设计大奖赛住宅空间银奖2016“永隆星空间杯”江苏省室内设计、陈设设计大奖赛住宅空间铜奖2016“永隆星空间杯”江苏省室内设计、陈设设计大奖赛商业空间优秀奖2016“永隆星空间杯”江苏省室内设计、陈设设计大奖赛住宅空间优秀奖2015获得第六届筑巢奖样板房空间银奖2015中国(苏州)室内设计总评榜住宅十佳作品奖2015“永隆星空间杯”江苏省室内设计、陈设设计大奖赛住宅空间银奖2015“永隆星空间杯”江苏省室内设计、陈设设计大奖赛住宅空间铜奖丨座机丨
0512-5284817618934551334
丨地址丨常熟市信一广场25幢1205室
客服
消息
收藏
下载
最近












































