查看完整案例


收藏

下载
点击上方蓝字“叁间设计”,关注最前沿设计微刊
01/设计定位
本次的案例设计师将光线引入室内,使空间更加通透。整个空间以单纯的设计手法来表现,强调空间的尺度关系、材质的运用和灯光的处理。从使用者的角度出发,让每个区域的功能最大化,让每个设施用起来更方便,让每一处的小角落更有情趣,使整个空间更生活化、更精彩、更具品味性。
从材料上来看,家具以原木为主、布艺为辅,在有限的布局内用上深浅不一的蓝,配上纱帘,整体风格有点北欧小调的感觉,材料的简单化也使整个空间的风格更明显。
通透的空间搭配柔和的色彩,仿佛置身海上木屋。看夕阳,我们似是一尾游鱼,看蓝天,我们仿佛是一群被白云拥抱的沙鸥。在这个空间中我们能更加放松、自在的享受生活的美好。
02/项目信息
项目坐标 / 江苏·东台
Project Address / Dongtai, Jiangsu
项目类型 / 私宅
Project type /Private homes
项目面积 / 126㎡
Project area / 126
主案设计/陆风睿
Main case design/LuFengrui
设计机构/叁间设计
Design Company/THREEROOMS Design
摄影机构/观堂映像
Photography agency/GUANTANGPhotography
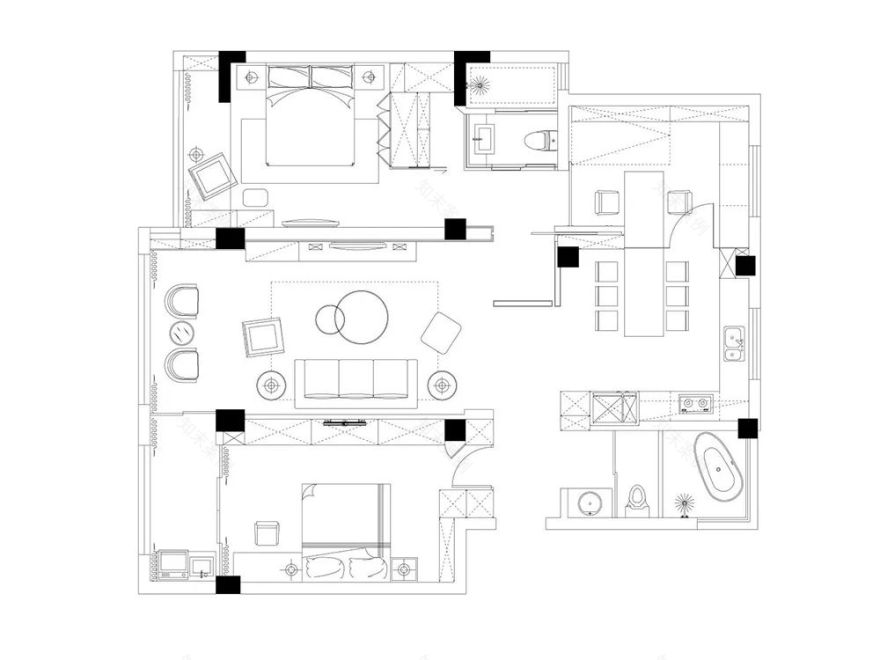
03/平面结构
04/实景拍摄
客厅&阳台 LIVING ROOM&BALCONY
任何一个空间,总有一个视觉中心。
本案的中心主导者就是色彩。
依靠家具和墙体的鲜明对比,达到装饰搭配与色彩比例之间的平衡,将空间渲染成一幅自然纯净的艺术作品。
充足的采光带来一室透亮,宁静的光影在木色中倾泄温柔。整体的格局以舒适自然为主,阳光穿过纱帘洒落柔和的光,坐在阳台边,随手拿出爱看的书读一读,沐浴温暖阳光,感受清风徐徐。
水绿色的沙发无疑是整个空间中的亮点,复古又优雅,打破了空间的视觉膨胀感,在视觉上取得了平衡,又加入了一定的层次和韵律。
木艺茶几,布艺沙发都传递出家的温情,随处可见的精心小装饰是空间的一抹亮色。
餐厅 DINING ROOM
餐厅空间不大,就将其设计成了开放式,将就餐、休闲、收纳融合在一起。整体以白色打底,干净清爽。木色的餐桌、柜门和地板给空间增添一份温暖;靠墙设了一排餐边柜,有开放有封闭,兼顾了展示与收纳的作用;就连窗下的角落也不放过,设了一组榻榻米,铺上垫子和抱枕,就又是一个简单的休闲区。
走廊 THE CORRIDOR
从走廊就可以看出整体的色彩风格,以白色作为基色,在其上层空间点缀视觉感较强的蓝色。上浅下深,整个空间即素雅又灵动。空白的墙面我们把它留给未来,愿你把它装点成你喜欢的样子。
主卧 THE MASTER BEDROOM
主卧开辟出一个阳台,大大的落地窗把阳光带进了室内,让房间通透明亮。光是人与空间的对话媒介,整个房间都用上磨砂的圆球灯,添补了整体的照明,也增加了空间的俏皮感。
在阳台边放置一套木制茶几,空闲之时靠在窗边看书,发呆都是很好的享受。床品和房间色调一致,选择了淡淡的粉色,棉麻柔软的床品像棉花一样,为安然入睡做好了准备。
次卧
THE SECOND BEDROOM
地板、柜子、床、书桌都协调成原木色,如新生树枝一般温润动人。整体带上一抹亮黄色,温柔而又充满个性,氛围温馨和谐。
05/结语屋舍无须大,容身即可;器物不求精,悦己就行。宛若到了一片净土,「一几一椅一榻,酣睡写读」。
END
推荐阅读点击图片查看案例详情
用心设计·更懂你
///手机:13390683299
地址:金海东路滨河新天地29-1
客服
消息
收藏
下载
最近




















