查看完整案例


收藏

下载
溪午不闻钟
ABOUT PROJECT
项目名称 | 不闻
项目类型 | 培训机构
项目面积 | 245㎡
项目地址 | 武汉.江岸区.融侨公馆
空间设计 |胡毓敏
完工时间 | 2020年7月
设计说明
弦凝指咽声停处,别有深情一万重。古筝弹奏的是演奏者的心境,设计师需要构筑的是一个可以与演奏者的心灵进行沟通的空间,这个空间的一切都是为演奏者能够纯粹的弹奏而准备的。于是整个设计就是围绕两个关键字进行的——净,静。
在材质选择上,选择石材,木材,黑钛钢,乳胶漆这类比较安静的材质
在颜色的选择上,以白色为主,灰色和黑色为辅,用木纹来增加温度
因为房屋结构是单朝向,为了空间更加透气我们选择在墙体上做了一些构成的处理,让不同的空间能够互动起来,增加采光及视觉延伸感。
在木头的纹理和颜色的选择上也是花了很多的心思。太粗狂不能体现筝乐之柔美,太细腻又缺乏自然的厚重气息。颜色过深则暮气太重,颜色太浅又缺静谧之感。
家具采用流畅简洁的线条保留中式的气质,却也透漏出干净利落的英姿
一把筝,一杯茶
不闻窗外繁杂
留白是最充实的告白
空间与演奏者的沟通,在于给予演奏者更多的留白去思考和创作
一束枯枝,便是时间,是静止,是沉淀是禅,是对一个生命周期的思考
大音声稀,大巧不工
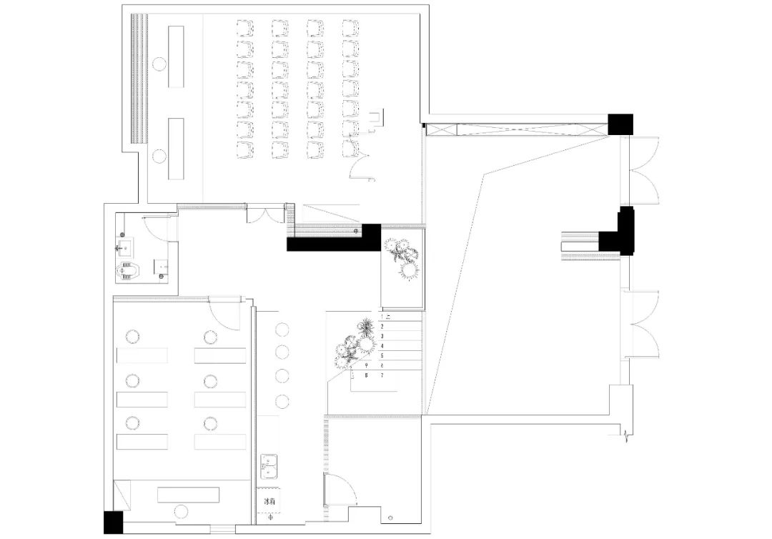
中庭的小景,它连接了整个空间,一楼大厅和二楼的公区因为它而产生了交互,增加了整个空间的互动性及视觉延伸性。绿植的点缀,更为整个安静的空间增加了生命力。
横看成岭侧成峰,远近高低各不同。二楼的景观处看一楼,又别有一番景致。
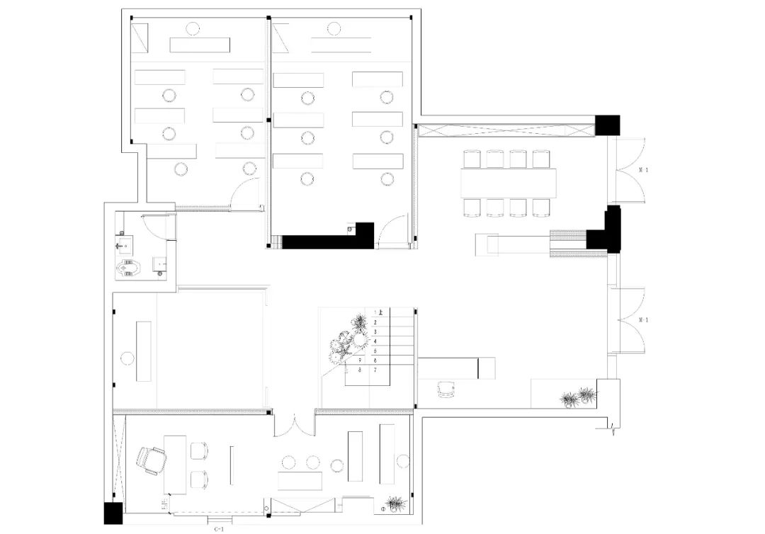
最后来一张美照转轴拨弦三两声,未成曲调先有情平面布局
听一种声音,品一盏香茶愿光阴凝聚于此不闻室外之繁杂享静谧之美听天籁之音
藝術 / 人文 / 設計 / 生活
如果你也喜欢这么美好的家
客服
消息
收藏
下载
最近

















