查看完整案例


收藏

下载
清江一曲抱村流
长夏江村事事幽
项目信息
About project
关于设计
项目地址/Project address:苏州中海国际社区
设计公司/Design company:沈院室内设计事务所
设计/Design:沈院
项目类别/Item category:公寓
项目面积/Project area:146
软装/Soft loading:沈院室内设计事务所
摄影/Photography:王浩
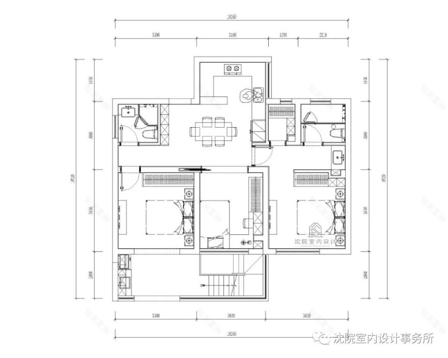
1F
-1F
原始结构图
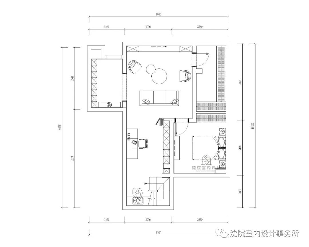
1F
-1F
平面布置图
圆弧形的收纳柜满足收纳的需要也提供视觉的享受搭配莫兰迪蓝色,增强温暖氛围光影在木质地板上漫射加深沙发的翠绿也增强茶几的光泽
家是一个整体
连配色都是
厨房采用蓝色的主色调
半开口的烹饪区域
给予主人充分的发挥空间
一举一动,都是主角光环
厨房与餐厅并没有隔断,一体的设计更具有整体感。双开门冰箱满足储物的需要,不远处黑色的时钟的存在提升空间的现代感。
红色的墙壁带来火热的温度与氛围
双层吊灯的光晕染在木桌上
喝一杯温度刚刚好的白开水
看一本恰恰喜欢的杂志
一切都是那么安静
一切又是那么自然与温馨
用心做的设计总是兼顾功能性与艺术性
在保护墙体的基础上选取了与墙体同色的洞洞挂钩剪刀和笔等小物件挂上去不会凌乱,反而极富生活气息
白色的办公桌面搭配黑色的椅子彰显简洁利落的风格想要生活简单不枯燥那就再放几盆绿植吧
拾级而上
感受脚下滑过的风
偶尔的一抬头
还能看见阳光的形状
兴之所至,心之为安
卧室以低调的深绿色为背景,安置姜黄色的大床,形成冷暖的调节。
圆柱形的床头柜富有创新感
温暖的粉色与花边床头灯的结合
一眼便能让人嘴角上扬,爱不释手
过道做了一个洗手台
绿色的背景和主卧色调遥相呼应
椭圆形的镜子犹如森林深处的天空之镜
垂直的两盏圆形吊灯满足光照的同时也给人美的视觉享受
一片玻璃将浴室进行干湿分离
最特别的是玻璃与墙壁的结合金属
金属的光泽使得整体空间更加亮眼
考虑到孩子对自然的探索心,儿童房将窗帘改为了百叶窗。粉色的小木马,粉色的小椅子,学习与玩耍兼顾,给予孩子最可爱的童年时光。
衣柜与床头柜一体式的设计,增强空间的收纳功能。床头柜上可以放置小物品,断层处的插孔也满足日常需要。闲暇时,坐在椅子上往外望去,尽收一片好风景。夜幕降临,婵儿又唱起了小调。归家的人相视一笑,在月光中缓缓入睡。END。更多内容请关注沈院室内设计事务所。地址:苏州市工业园区星海街星海五号创意园2017室。
客服
消息
收藏
下载
最近

























