查看完整案例


收藏

下载
写意
YS Design service@2022
写意生活,没有什么比自由更令我向往。
Freehand life, nothing makes me yearn for more than freedom.
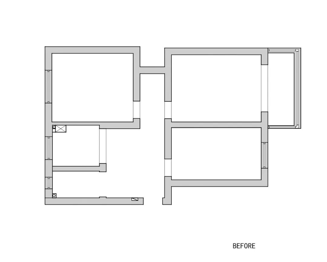
男主说:“我的朋友同事们都说我们家装的太好看了。”本案是老房改造,简而不减,解决老房的采光、通风等问题,并将空间收纳最大化,我们希望更多站在业主的角度,把想要的生活方式呈现出来,坚持做有温度的设计。
简约的生活方式让我们抛弃繁杂,认清自己、接纳自己。黑白灰的简约空间里,呈现更多的理性情感。取名写意,寓意不受束缚,忠于本心,这也是我们对主人公的祝福。
每个空间都有着独特性,个性亮点,但也保持着和其他空间的连贯性。
顶天立体的鞋柜,隐于室,也讲究其功能,增加隐蔽收纳,眼见皆为净。
洗漱区移出卫生间做干区,和鞋柜相邻衔接,充分利用空间,又增了视觉统一,兼顾美观和实用。
老房原来没有客厅,经过设计打开原有空间,优化采光。
为了美化顶部梁体,书房沿着梁体做了平吊顶,与外口落差,做了一个斜吊顶,线性灯带收口,增加层次美感,又把墙体隐藏其中。
客厅放置了款式简约细节精致的沙发,配上气质茶几营造空间氛围感,坐在上面喝茶看书,都很放松和享受。
开放式厨餐厅,它是享受烹饪和美食,让心情舒缓的空间。
写意空间,更在意人与家的互动感,每一个空间的切换都很流畅。
家里有四只猫咪,其中有两只小奶猫,拍照的时候,猫麻麻特别配合着做小模特。
主卧室床头背景墙做了隐藏灯光设计,并运用材质之间的碰撞,围绕着简而不减的设计理念,丰富空间层次。
次卧Secondary recumbent
阳台balcony
卫生间
TOILET
原始户型
平面方案
作品名称 / 写意
设计施工 / 壹石设计工作室 One stone design studio
建筑面积 / 73m²
工程地址 / 南京
壹石设计
一间口碑相传的设计工作室
我们的核心价值理念
设计:创新、实用、唯美、细致、环保、极简
服务:诚实,责任、口碑
壹石创建于2016年
我们的目标是帮业主实现对家的期盼和梦想,让居住者“住的优雅”在设计上一直坚持实用、唯美,创新为主。
服务坚持口碑铸造品牌,用心服务好每位选择壹石的客户。
公司自创建以来,营造的氛围就是勤奋踏实。做好当下的每一个案子,不断的让更多的作品落地,影响越来越多的业主对家有重新的认知,设计是可以影响和改变生活的。
不断影响身边同行坚守在设计的路上,为提升家居审美与家居美学修养做出一己之力。
Tel Add.:河西万达广场G座1610
客服
消息
收藏
下载
最近























