查看完整案例

收藏

下载
新作一
【案例地址】:栢悦公馆【户型面积】:180m²【全案设计】:1890设计团队
原始结构图
平面布置图
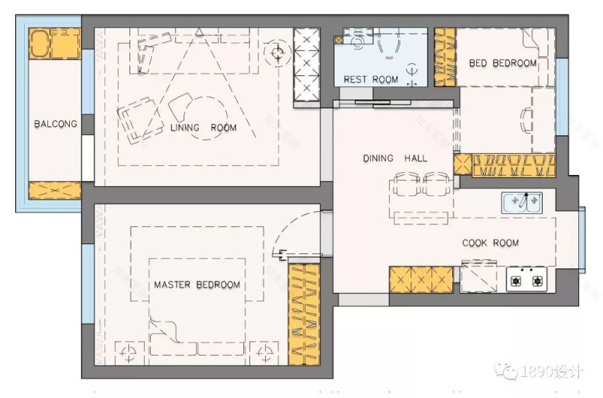
原始结构客餐厅开间比较大进深较小,客餐厅偏方。房间的进深比较深,偏长方形。
基于此,在客餐厅的墙面做展示与收纳柜体,在软装摆设上充分利用户型结构,使之达到合理比例。在房间的布置上,我们切割纵深,让区域变的更加方正实用。
效果图
整个沙发后方的空间都布置成了书架,业主的书籍比较多,电视背景也做了灵活的收纳与展示组合,木质与白墙融合在一起,在灰色水磨石地坪的映衬下更显干净利落。因为餐厅的空间足够,所以不仅做了正常的就餐台,还做了中岛配餐及西厨操作区,满足了不同形式的需求,可谓一举多得。
新作二
【案例地址】:凯旋门三期【户型面积】:130m²【全案设计】:1890设计团队【执行设计】:汤永青
原始结构图
平面布置图
本案常驻人口比较少,喜欢自由自在的生活,希望更有内容与品质的空间,希望离真实的自己更近点,家,适合自己的才是最好的。
效果图
▲北欧,新古典,轻奢,后现代....再多的注解已多余,因为只要美出自己的个性,活出精致的自己已足够。简洁明亮的氛围搭配高级的灰粉软装,镶嵌与点缀有质感的香槟金线条,完全脱离沉重繁复的巴洛克和矫揉造作的洛可可。整个空间在明快,柔美,质感的基调里透露着别样的高贵,精致与优雅。
新作三
【案例地址】:池州 凯旋门【户型面积】:140m²【全案设计】:1890设计团队【执行设计】:姚康
原始结构图
平面布置图
设计师说:“在俄罗斯方块的户型中,通过解决痛点,放大优势,整合犄角,模块组合”最终完美通关。
效果图
用建筑的手法表达室内空间结构,干净利落的线条,黑白的对比,大面积的采光面,希望让空间整合的更加得体,居住更加舒适。
新作四
【案例地址】:利港银河新城【户型面积】:130m²【全案设计】:1890设计团队【执行设计】:徐亚男
原始结构图
平面布置图
本案原始户型餐厅很小,设备平台不足作为生活阳台实用,客卧到主卧的过道很狭长,缺少公共活动区域。经过改造后,开阔了视野,增加了公共活动区域,使得客餐厅的动线衔接更紧密,卧室的布局变的更加合理。
效果图
餐厅利用中间的承重柱做了双动线的设计,增加空间趣味性,同时利用柱体做了水吧台和装饰酒柜。客厅移至北侧做了开敞活动空间,满足家人的交流互动。卧室延续了客餐厅的风格和颜色,使之整体空间达到完整统一。
新作五
【案例地址】:省委大院【户型面积】:75m²【全案设计】:1890设计团队【执行设计】:付林
原始结构图
平面布置图
本案为老房砖混结构,很多墙体不能动,限制比较大,为了满足业主的开放厨房和开阔餐厅要求,我们拆除部分薄墙同时利用钢架重新加固支撑,使得方案得以满足。
效果图
(厨房餐厅现场照片)
(厨房餐厅改造设计图)
通过前期的沟通,业主提供的示意图都是我们的设计案例,通过团队研发分析,一致觉得这种浅色,原木,有爱,优生活的格调应该会很符合他们,果然,原来我们对于家的审美和定义都是吻合的。
end
关于1890设计
一:谓专精也,用心一也,专于一境也。至精、至专、至纯,大道成矣。
八九零:特指年轻一代。
一八九零(1890)设计,专注于为年轻一代解决家装设计,施工,软装等高端订制化服务,直2014年底创办至今,秉承着“为年轻筑梦”的使命,服务着合肥及全国各个城市的年轻群体;2017年为更好的落地设计效果,更有效的把控整个设计流程,我们将成立1890设计旗下施工品牌“筑梦施工”。秉着“精于设计,强于施工”的理念,用更好的工艺体系、管控标准、售后保障,为年轻用户构筑安心品质的高端住宅空间。
回顾
▼点击下方图片即可跳转链接)实景 | 世茂翡翠首府《漫.都市》全案发布
实景 | 合肥 昊天园《悠然》全案发布
听说每一个有品位,热爱生活的人都关注了
客服
消息
收藏
下载
最近




















































