查看完整案例


收藏

下载
设计案例/Designcase
项目地址|Projectaddress
广州市番禺区莲峰圣境小区
项目面积
Projecta320
设计团队|Designteam
六品空间设计
设计时间
Designtime2019年6月
材质运用|
Material application
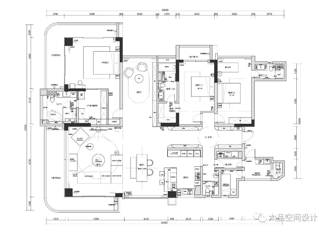
岩板(厨房台面)、木地板(客餐厅+房间)、木饰面(电视背景墙)、乳胶漆(墙面天花)、烤漆门板(柜子)平面布置|
Layout plan
原始结构图
设计效果|
Design effect
玄关(进门望向客厅,两边做了四组弧形的柜子,其中鞋柜在进门左侧,内有强弱电箱,右侧有设计换鞋凳及镜子,使用便捷,柜门采用哑光烤漆材质,)
玄关处望向公卫,洗手盆区域采用开放式的设计,搭配艺术吊灯,提升颜值。
公卫(洗手盆与马桶分开,日常生活使用更合理)
公卫(落地式柱盆,柱盆后贴了整面镜子,扩大空间视野,同时采用推拉门设计,巧妙地隐藏了垃圾桶及储物格)
客厅(客厅望向玄关及厨房区,木地板与深色木饰面墙体及白色墙体的搭配,更时尚简洁)
客厅的电视背景墙及休闲区的柜子均采用深色木饰面设计
客厅沙发区(B&B的家具非常时尚,再配上经典的钓鱼灯,在客厅跑步也是一件非常享受的事情)
偏厅 / 休闲区 (整面墙的柜子,满足客户多多的书籍存放需求,一人一张懒人沙发,翱翔在书海的时光总是快乐的)
餐厅+客厅(黑白调+木色,时尚而简约)
餐厅(餐桌是实木贴皮的台面+亚克力材质的桌脚,艺术吊灯是特殊玻璃材质)
厨房及吧台(台面采用岩板,硬度和抗污都非常好,柜门是哑光烤漆,耐看易清洁)
厨房(开放式的厨房,更助于家人之间的情感交流)
洗衣房(洗衣机+干衣机+儿童洗衣机)
生活阳台+保姆卫生间
保姆房
套房三(后期留个父母过来临时居住用的,房间没有过多的墙面设计,设置了两盏壁灯,保持简洁干净的感觉)
套房三(另一个角度)
套房三的卫生间(白:大理石纹的白色墙砖、地砖+白色垃圾桶+白色台面)
套房二(男业主的备用睡房,房间也是保持简洁干净的感觉)
套房二(另一个角度)
套房二的衣帽间(此衣帽间是男业主使用的,柜子用了白色板材,配合白色金属挂杆及灯光布置)
套房二的卫生间(白:大理石纹的白色墙砖、地砖+白色垃圾桶+白色台面)
套房一(男女主人的睡房,力求简洁)
套房一(衣帽间是用透明玻璃做的隔断,设置了纱帘,虚实结合,非常梦幻;梳妆台的区域贴了整面镜子,非常实用)
套房一的衣帽间(望向卫生间的角度)
套房一的衣帽间(整个衣帽间都是给女业主使用的,还是采用白色调为主,搭配全身镜及灯光处理)
套房一的衣帽间(柜子后面是隔断玻璃+白色纱帘)
套房一的卫生间(大大的洗手台及发光镜子,这才是符合女业主的理想卫生间,热毛巾架是内置式的,非常时尚的款式)
套房一的卫生间(淋浴间+独立浴缸,颜值担保;内置的壁龛非常实用;淋浴间还设置了坐凳,考虑得比较人性化;柔和的灯光设计,在此泡澡是多么惬意的一件事啊)
客服
消息
收藏
下载
最近

































