查看完整案例


收藏

下载
创想空间·私宅定制机构
ADING DESIGN
亚町设计一个人的生活方式穿什么样的衣服住什么样的房子爱好什么关注什么反映了他的世界观及价值观——居如其人
项目地址 | Address:长沙市星沙碧桂园水蓝天
建筑面积 | Area:800㎡
房型 | Type:别墅3F
室内设计 | Interior Design:亚町设计机构、石墨工作室
软装 | Soft Decor:亚町设计机构
工程管理 | Construction:质点营造
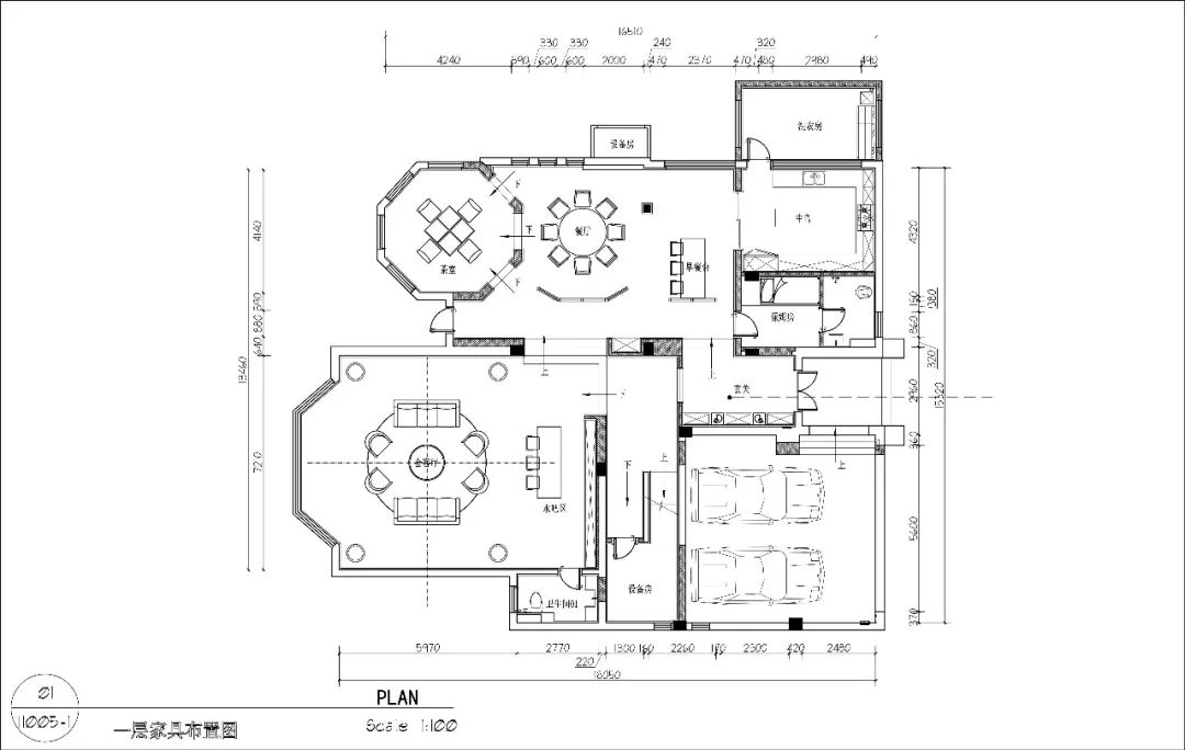
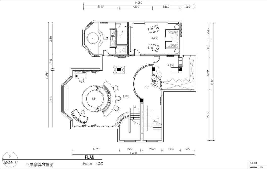
平面布置图
本案设计灵感来自《了不起的盖茨比》它讲述了一个美国梦
只要你努力
你就可以过得更好
自诩为上帝之子的盖茨比
坚信自己命里有非凡的安排
当他第一次吻上黄金女郎戴西的唇
生命中所有与美好相关的想象都凝结成了最具体的象征
只要明天跑得更快一点
把胳膊伸得更远一点
总有一天可以触碰得到彼岸那盏荧荧绿光
盖茨比是愚者中的愚者
也是勇士中的勇士
实景图
而这里讲述的是一个80后商业精英的梦想高瞻远瞩与脚踏实地那掩饰不住的都市欲望与内敛的冲突信仰与迷茫期待与笃定……这一切凝结成这样一所当代且质感的生活空间
设计上颠覆旧摩登
采取现代与西方结合的新摩登时代设计理念
去诠释新贵的低调与品位
各种审美价值观的讨论
奇思妙想的创意
统筹权衡的布局
大刀阔斧的改造
品牌趣味的研究
每个局部每个细节每一款拼花每一个收口每一款灯的瓦数、照度、色温都代表匠人们的精细与执拗
优雅是一种气质,更是一种心态。坐在这里弹奏一首优美的乐章,必是一件极其享受的事。关于我们,我想你会感兴趣的!
亚町设计出品(私宅定制)。
亚町设计丨再遇北辰·品味秋日欣喜。
荣悦台 · 独享一米阳光。
张家界新外滩 纵情山水的一方惬意。
诠释经典“角 · 度”。
光线表现构造,创造氛围,创造空间感受。
2018新年的第一道光!
大庞设计出品(专注商业品牌与商业空间)。
摩登时代的自由之美。
苍山洱海与青庐白驹。
纯白×金属,左手温文尔雅右手高贵性感。
来微乐多,做正经事。
好久不见,被遗忘的灵魂。
质点营造出品(专业品质施工)。
——亚町设计机构旗下专业施工品牌。
质点营造丨橘郡礼顿山水电工艺展示。
质点营造丨博林金谷泥瓦工艺展示。
I WANT YOU !!!
WE NEED YOU !!!
如果你热爱设计
在这里你可以把兴趣当成事业
我们现在需要:●深化设计师
●实习设计师
●VIP客户经理
THE END
当您读到这里就是对我们最大的认可
缘分永远来得不期而遇
假如恰巧您也有兴趣
町町小町
假如您有任何商业设计需求
咨询
客服
消息
收藏
下载
最近





















