查看完整案例

收藏

下载
手绘图©Anna Andronova
设计前言
在疫情得到控制的 2020 年 5 月,DA!Architects 大!建筑事务所受 banzh architect 本築的邀请,共同为 TAKUMIKOU 匠恒的委托人进行新展厅的联合设计和创作。
如何在一个并不大的室内空间(约 300 平米)内创造出丰盈层次的空间体验,从而符合品牌的调性和商业需求,成为了我们工作的核心出发点。在项目初始阶段,委托人要求先设计产品展区之后再美术馆,banzh 提出向委托人建议先进行美术馆功能的创作,并且由美术馆的调性来引领空间整体氛围,而后根据美术馆的调性对产品展示空间的氛围再做延申,精准拿捏平衡艺术和商业。
最终我们可以看到由 DA!和 banzh 分别创作的美术馆和产品展区这两个独立的空间形态,基本“咬合”跟融为了一体,整个空间调性由美术馆而引领并延申至另一半区,整体作了白色处理,将色彩的表达留给了企业的产品,无论是大看空间还是小看产品,都让客人流连忘返,回味隽永。
“家具是生活起舞的舞台。”
©DA! Architects
最初概念草图
推敲模型群组
©DA! Architects
1 分钟短视频讲解
©DA! Architects
01City · Home · Furniture
城市 · 家 · 家具
从城市到建筑到室内再到家具,站在不同尺度去思考这个丰富多彩的世界。一座城由许多不同的家构成,一个家有许多个家具。家为人们在城市带来了归属感,家具为家带来了温度,这样来看,城市就是大家最大的家。设计从家与家具的关系思考出发,以“即兴剧场”为核心概念,意图模糊家具与空间的界限,将建筑与家具融为一体,形成一个家具剧场,即“家具场”,从而表达将 furniture 与 architecture 的结合,正是该品牌的设计理念:furnitecture。对这个项目,我们叫它“Furnitecture”或“家具建筑”。
爆炸图©DA! Architects
体块生成图
首先我们分析了展厅建筑所在周边区域环境,发现此类单栋商业建筑非常同质化,因此需要在入口处营造出一个独特的门头形象,以提供差异性和记忆点。展厅所在的独栋建筑犹如一个“魔方块”,充满长方形面块的体块变化。我们的门头设计借鉴延续了此种形态语言,并以一条水平长向白色门头面和地面平台基面抬升手法共同框定出一个门头“取景框”,拓展了原有低矮狭窄的入口,以获得更大入口空间和形象吸引度。门头空间作为室内展厅空间“即兴剧场”的延伸,起到了剧场前奏的效果。
©DA! Architects
© DA! Architects
©DA! Architects
©DA! Architects
©DA! Architects
© DA! Architects
©DA! Architects
02Furniture+Theater=Furnitheater
家具+剧场=家剧场
设计意图从多个角度探讨家具的不同展示方式与空间可能性,用一种多维叠加嵌套手法模糊家具与室内空间的界限,从不同尺度和角度给人以不同的感受,以此来挑战人们对空间形态的感知。去思考建筑与室内设计中富有思辨性的话题,感受内与外、大与小,界限与模糊、抽象与具象之间的空间变化与联系。
试图以家具中的家具剧场概念去建构一个展厅空间时,家具本身则逐渐隐去自身的符号性,更具有类似剧场中上演的角色一般的象征性。这既是一个展示家具的空间,同时也是一件营造空间的家具,家具即角色,家具场即剧场。
©DA! Architects
©DA! Architects
© DA! Architects
©DA! Architects
“天地大舞台,舞台小天地。”不同尺度的空间中即兴放置家具,大格子可以摆放大家具,小格子摆放小家具,可以自由灵活的布展家具,方式因在一个更大空间设计系统中而不至于失去秩序。中部剧场空间的连续折板框元素连接屋顶墙面与地面成为一种连续的视觉关注点,折板的 15°转角操作打破空间的规矩性使空间变得动感,这种空间的动感构成了一种不对称的均衡,这种均衡产生了空间本身的趣味性。
©DA! Architects
©DA! Architects
©DA! Architects
©DA! Architects
03 Improvise Space 即兴空间设计
©DA! Architects
©DA! Architects
©DA! Architects
“人与家具的即兴互动”
空间以剧场空间布局为原型合理布置,人们沿着“家剧场”故事线即兴参观,仿佛置身于一个大尺度的家具空间探索发现。同时,不同尺度的家具在连接人与空间方面扮演了一个相当重要的角色,如果视整个空间为一个关系性有机体,家具即是空间的一部分,消除家具与空间设计的界限也就消除了人与空间的“距离感”。
© DA! Architects
©DA! Architects
©DA! Architects
04TRSfurniture showroom
Takumikou 匠恒展厅
© DA! Architects 05 Design Drawing 设计图纸
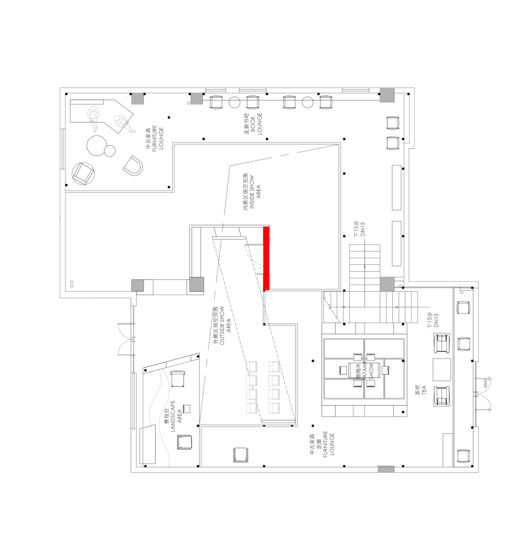
1F 平面图(动 DA! 静 banzh)
2F 平面图
项目信息:
建筑设计:DA! 建筑事务所
设计主创:Anna Andronova、孙立东
团队成员:张子皓、陈韦微、郭绍佰、任晨嘉、孔吉宁、陆春华、顾旻悦
建筑设计:Banzh Architect
设计主创:倪振华
团队成员:高雪
设计类型:家具展厅
项目地点:上海市闵行区联航路 1818 弄红星国际广场 40 栋别墅·TRS
建筑面积:约 270㎡
项目摄影:DA!Architects
项目总监:Jany、zolo
施工单位:TAKU MIKOU 匠恒
客服
消息
收藏
下载
最近













































