查看完整案例


收藏

下载
简单,是终极的复杂——莱昂纳多·达·芬奇
H·O·M·E
项目名称:香林水筑——光影·流年
空间性质:别墅/420 平米
设计风格:现代简约
设计机构:DoLong 董龍设计
施工单位:大品大工程
摄影:磁力影像
业主说:用简约呈现丰富的温暖。
业主一家三口,温馨有爱。此次新家设计,他们对现代简约风格偏爱有加,同时也想要在整体和细节设计上感受到家的温暖。他们在生活中充满活力,兴趣广泛,在功能设计上,想要尽可能地满足家中的每个人。
空间说:只有紧密联系,才能感受温暖。
此次项目为联排别墅。设计者把木质元素巧妙地融合进现代简约的风格设计,使得以黑白灰为主体配色的空间陡增抚摸心灵的暖意。在不同空间里,充分考量每一个细节,因地制宜地改造和布局内部空间,将空间功效发挥到最大化。
最后,经过精心设计过渡方式,解决地下室层高偏矮的问题,将不同功能区和上下层紧密顺畅地联系起来,打造了一个功能丰富,自由舒适的居住空间。
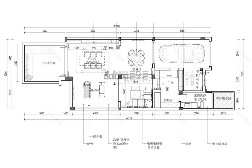
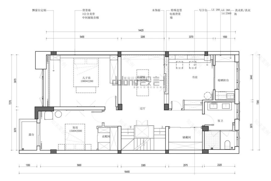
地下 1 层平面图
01 层平面图
02 层平面图
03 层平面图
滑动查看更多
平面方面做了一定的调整:
【1】部分外立面做了改建。
【2】别墅三楼的露台比较多,设计者将部分露台与卧室整合在一起,形成一个卧室大套房。
新家说:仅仅看见,就很温暖。
03Entrance|玄关
从入户门进入,映入眼帘的本是通往上层的楼梯。设计者借助台阶做了别致的玄关,“藏”住一家人快乐幸福的生活。
Living Room | 客厅
客厅采用以黑白灰为主、木色为辅的配色方案,简约大方,温馨明亮。玻璃门和巨大的落地窗为客厅注入鲜明的光线。
L 型纯灰色沙发迎着光线展开怀抱,半开半合,坐落于客厅的中心。方正的木茶几成为视觉中心,为客厅的每个人散播鲜橙的暖意。
沙发背景采用了整面墙的灰色定制柜体,仅在左侧端口设置艺术品展示区,干净整洁,又不喧宾夺主。
电视背景墙与沙发拉开足够的空间,一来减轻电视对眼睛健康的影响,二来为往返后院提供宽敞的动线。
电视背景墙经过精心设计和施工,从灰色格栅到白色纹理大理石,再到黑色哑光电视,层层嵌套。视觉感受逐渐加深,最终落于中央的电视画面。底部设置长条状悬挑柜,丰富元素的同时,可做一定的收纳和展示空间。
Kitchen Space|餐厨空间
顺着客厅拾级而上便是被木元素包裹的西厨餐厅,与客厅的高度差使得用餐的仪式感得以凸显,空间上的开放又使餐厅的氛围极度灵活和自如。
Stairs|楼梯
隐藏在玄关后面的楼梯,呈 90°转折关系。抬眼望去,视线延伸到楼梯的半高处,为上层空间营造了十足的神秘感。
米灰色大理石中间插入白色大理石,突破死板的台阶造型,让人眼前一亮。
电梯是此次设计的一个难点,受限于地下室层高,小区里其他的业主一直没能够把电梯通到地下。设计团队将此问题顺利解决,为邻居提供了可参照的首例。
Bedroom| 卧室
主卧室整合了露台空间,为房主人打造了非常大的套间。空间采用无主灯设计,艺术灯、氛围灯、以及射灯等营造出不同的感觉,方便主人根据实时喜好进行灵活调节。
两面墙纯白,另两面墙纯木,相互对立,却也相互作用,温暖纯净,在岁月温柔之间入梦。除了设计悬挑式梳妆台,省略一切多余的材料,只为营造一个理想的睡眠环境。
Secondary Bedroom
次卧室
儿童房间沿用了客餐厅的整体风格,定制了多个展示柜,以摆放儿子喜爱的卡通人物和玩具收藏品。蓝色背景彩色装饰画同样充满童趣与想象力,为空间增添儿童属性。
Study|书房
书房自然要充满书香和木香,所以设计了木地板、木书桌、木书柜。它们整齐划一,倚墙而落,干净得容不下一丝灰尘,读书和办公成为享受静谧时光的绝佳体验。
Leisure Area|休闲室
二层近楼梯的房间主做儿子的起居室,延续了客厅的整体风格,纯白色梦幻空间搭配灰色沙发,给人极度纯净的感受。不同的是这里采用了木地板,温润的环境更能让人陶醉在影音的世界。
L 型朦胧玻璃透射着变换的光影,在这里感受时间静谧地变化。同时还设计了乐高展示柜,让儿子在自己的理想世界中幸福成长。
Courtyard|庭院
落霞与孤鹜齐飞,秋水共长天一色。庭院里设置了花园,水池,光源,在夕阳的映衬下,梦幻的美景在家中一览无余。
李漫 丨 首席设计师 丨 设计年限 15 年
代表作品:
《墨片和恬》《摩登东方》《一米阳光》《奢度》《东方风韵》《人间四月天》《参差·光影》《清新地中海》《夏海花园》……
近期荣誉:
作品曾上“交换空间”节目
作品刊登过瑞丽家居 / 现代装饰 / 神韵东方 / 装饰情报等专业杂志
《东方风韵》获得 2013 年度金堂奖
《奢度》获得 2012 星空杯铜奖
《清新地中海》获得 2015 年艾特奖
《夏海花园》获得 2019 年艾特奖
OTHER CASES
其他案例
点击图片,了解更多
DoLong 董龍设计
南京 DoLong 董龍设计
成立于 2008 年
设计为本 工程直营
将客户满意度作为唯一标准
专注大宅别墅高端项目
服务过 1000 多位尊贵业主
客户满意度数据:“优秀”92% “满意”100%
80%+客户来自口碑
累计实景作品 300+套
获国内外重要设计奖项 100+座
公司荣誉【部分】(可滑动哦)
40UNDER40 中国(南京)设计杰出青年(2020-2021)
2020VIFA 威法最美产品大赛特等奖
2020 金外滩奖最佳居住空间奖
2019 国际空间设计大奖-艾特奖最佳住宅建筑设计奖
2019 中国设计力青年榜中国杰出青年设计师奖
2019 中国室内装饰协会金腾奖全国 100 强
2019 芒果奖中国别墅优胜奖
2018 蒂森克虏伯别墅设计师大赛新锐设计师奖
2018 金堂奖中国室内设计年度优秀住宅公寓设计
2016 第七届筑巢奖最佳公寓户型设计奖
2015 国际空间设计大奖-艾特奖最佳公寓设计奖
2014 江苏省室内设计学会永隆·星空杯住宅空间工程类金奖
2013 金堂奖中国室内设计年度优秀餐饮空间设计
2012 金堂奖中国室内设计年度优秀别墅设计
2011 金堂奖中国室内设计年度优秀住宅公寓设计
2010 第一届中国国际空间环境艺术设计大赛
筑巢奖住宅空间类金奖
2010 第一届金堂奖中国室内设计年度住宅公寓设计金奖
2009 中国室内空间环境艺术设计大赛住宅空间三等奖
如果您对新家
有更多的期许
欢迎与我们联系
感受不一样的家装体验
咨询 400-799-6869
南京市建邺区泰山路 8 号舜天产业园内主楼 4F
DoLong 设计(溧阳)公司
溧阳市燕城大道 253 号通用大厦 3F-305 室
客服
消息
收藏
下载
最近






































































