查看完整案例


收藏

下载
PROJECT INTRODUCTION:
项目面积 | 268㎡
设计风格| 美式轻奢
项目名称 | 长安龙胤
主案设计 | 武登高
深化设计 | 叶阿强
易
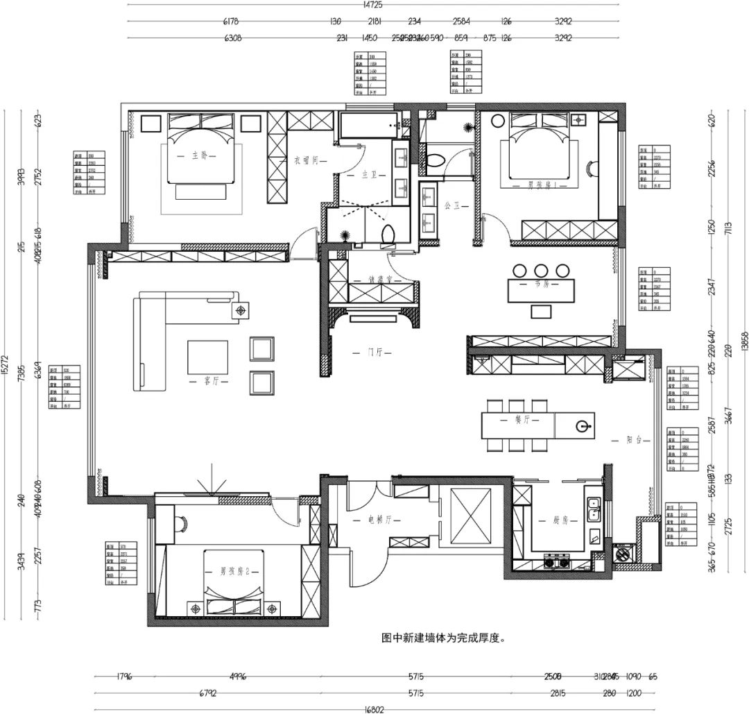
平面图
高
门厅
门厅是生活的开始
黑白对比增强视觉冲击
摆放矮脚凳作为换鞋凳
便捷生活
门厅的设置保护家中隐私
增强业主的安全感
客厅
开放式客厅更好的与家中功能区融合,促进家人之间亲密关系。背景墙设计展架,展示业主私藏,提升空间格调展示业主品味。空间以白色为主调,素雅温馨让人流连忘返,奠定整个家中基调。利用软装部分进行点缀,丰富空间层次,给予业主更好的生活体验。餐厅。
餐厅与客厅位于同一轴线上,在空间上缩短动线,在情感上加深互动。利用餐桌与吧台延长视线,增加空间纵深感。利用储物柜打造操作台,可以制作西餐丰富生活方式。六座餐桌满足一家人生活所需,生活的幸福莫过于此。厨房。
厨房多采用表面纹理作为装饰,既不繁琐又能彰显空间特色。现代的厨房设施让生活变得简单便捷。书房
书房与餐厅一墙之隔这里是家中静区沉淀心神享受独处的世界利用灯光烘托氛围大面积采光窗更是确保空间通透简易的书桌回归生活彰显业主生活态度公卫
男孩房一
男孩房二
男孩房是孩子成长环境,追求时尚潮流是天性。房中简化装饰,让后期变动更加合理,预留充足的活动空间,让孩子不受拘束。成长不容忽视,靠窗位置设计简易书桌,给予孩子良好的学习空间。主卧
主卫
主卧作为业主主要休憩场所,分为休息区、衣帽间、卫生间。延续简约设计风格,房间利用无主灯设计,床头灯管烘托氛围感。衣帽间容纳业主一年四季衣物,注重细节,彰显生活仪式感。▼主案设计。
武登高中国室内注册设计师注册号:ZB20803174毕业院校:西安美术学院设计理念:用艺术的眼光雕琢生活设计风格:中式简约欧式极简从业时间:16年易高国际创始人、设计总监2017年瑞典色彩学院色彩专业结业2004年--2010年北京元洲装饰首席设计师2011年--2013年陕西九朝装饰首席设计师2013年至2016年北京峰上大宅装饰专家设计师2009美化家居设计大赛三等奖2011获陕西省优秀设计称号2012筑巢杯设计大赛优秀设计奖2013住宅装饰行业优秀设计师2014住宅装饰行业优秀设计师2015第三届【锋尚·京瓷杯】新中式设计大赛最佳功能布局奖2016第三届中国建筑装饰设计艺术作品展获铜奖2017居然顶层精英设计师2017年中国(陕西)设计杰出青年2017第四届峰尚杯新中式设计大赛最佳方案奖2017首届禾记万佳杯设计设计大赛优秀奖2017创意生活设计金蝴蝶奖2017商业旅游地产年度优秀住宅公寓设计师2017评选为亚太空间艺术大师2018金楠奖设计大赛优秀奖2018获得第二届西安建筑装饰设计“青年设计师领袖”称号2018设计作品《中海百贤府》获得第二届西安建筑装饰设计别墅类银奖2018设计作品《龙湖香醍》获得第二届西安建筑装饰设计样板间设计优秀奖2019金堂奖全国百强先锋榜百强设计师2019年度腾讯家居搜狐焦点家居杰出设计师2019德国高仪住宅精英榜TOP108匠2019蒂森克虏伯杯别墅设计大赛经典设计奖2019第三届西安建筑装饰设计奖“年度青年设计师领袖”2020中国设计新青年评选“城市举荐官”2020设计作品《石中木》获得陕西地区优秀住宅软装设计2021-2022中国新地产设计大会年度优秀别墅设计师2021金住奖-中国百杰居住空间设计师成功案例:中华世纪城紫薇臻品白桦林居中海华庭中海国际紫薇融侨就掌灯中海东郡曲江公馆曲江尚林苑曲江兰亭曲江华府枫林意树湖城大境中海铂宫中海百贤府紫汀苑紫楹台曲江和园中海曲江大城......||点击以下图片查看易高国际更多作品▼ ||▼易高·案例 |凤凰池421㎡欧式风格/欧式魅力空间
▼易高·案例 |曲江大城240㎡现代简奢/畅享生活小资
▼易高·案例 |曲江大城200㎡现代风格/感受色彩魅力
▼易高·案例 | 丽彩溪岸庄园550㎡欧式风格/高级莫兰迪色搭配
▼易高·案例 | 万科大明宫
305㎡现代简约/感受家的温馨舒适
▼易高·案例 |曲江九里118㎡新中式 /中式端庄大气
▼易高·案例 | 紫汀苑248㎡美式轻奢 / 奢华雀语
易高国际西北首家工程直管100%自有工人、零增项、零增量、诚信一口价中国设计百强品牌/专注别墅大宅设计/施工/软装陈设易高国际秉承【出于易高·必为精品】的施工理念【受人之托·忠人之事】的服务理念竭诚为您提供全案设计服务关注我们,了解最新动态还您一个独一无二的家居生活
客服
消息
收藏
下载
最近


























