查看完整案例


收藏

下载
PROJECT INTRODUCTION:
项目面积 | 118㎡
设计风格| 现代简约
项目名称 | 中海东郡
主案设计 | 武登高
深化设计 | 叶阿强
易
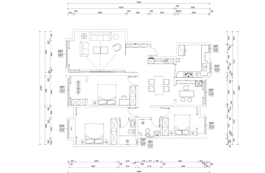
平面图
高
客厅
简约的客厅营造出轻松的生活氛围
客厅拥有独立空间,确保空间功能的独立性,避免了空间之间互扰。
简化墙面装饰,利用木色与灰色拼接,大理石背景板自带纹理,触动心中美感。
质感舒适的沙发承载休闲娱乐,见证业主幸福生活。
餐厅。
设计师将餐厅设在家的中央
墙面墨绿艺术画增添餐厅艺术氛围
深色餐座椅与空间形成反差避免空间视觉单调
空间连贯动线合理与家人围坐一堂享受美食体会幸福真谛
书房
将靠窗区域改造开放式书房值得拥有暗含古韵增加书房文气摆放差距这里兼顾茶室良好的自然光线透过采光窗照射室内展现设计细节与自然互动享受悠闲时光次卧
儿童房
卧室设计延续简约风格侧重舒适体验为居者营造完美的睡眠环境床品色彩选用低调避免视觉干扰儿童房兼顾学习摆放简易书桌让卧室功能更加完善将阳台扩入室内增加卧室自然采光享受阳光带来温暖拥有舒适的成长环境主卧
主卫
温馨舒适的主卧是美好生活的前提。注重卧室的收纳功能,确保室内干净整洁。木饰地板使空间更加柔和,配备专属主卫,方便生活完善功能。依据习惯动线为空间分区,放下疲惫恰一缕清风,让意念徜徉,放飞心灵。▼主案设计。
武登高中国室内注册设计师注册号:ZB20803174毕业院校:西安美术学院设计理念:用艺术的眼光雕琢生活设计风格:中式简约欧式极简从业时间:16年易高国际创始人、设计总监2017年瑞典色彩学院色彩专业结业2004年--2010年北京元洲装饰首席设计师2011年--2013年陕西九朝装饰首席设计师2013年至2016年北京峰上大宅装饰专家设计师2009美化家居设计大赛三等奖2011获陕西省优秀设计称号2012筑巢杯设计大赛优秀设计奖2013住宅装饰行业优秀设计师2014住宅装饰行业优秀设计师2015第三届【锋尚·京瓷杯】新中式设计大赛最佳功能布局奖2016第三届中国建筑装饰设计艺术作品展获铜奖2017居然顶层精英设计师2017年中国(陕西)设计杰出青年2017第四届峰尚杯新中式设计大赛最佳方案奖2017首届禾记万佳杯设计设计大赛优秀奖2017创意生活设计金蝴蝶奖2017商业旅游地产年度优秀住宅公寓设计师2017评选为亚太空间艺术大师2018金楠奖设计大赛优秀奖2018获得第二届西安建筑装饰设计“青年设计师领袖”称号2018设计作品《中海百贤府》获得第二届西安建筑装饰设计别墅类银奖2018设计作品《龙湖香醍》获得第二届西安建筑装饰设计样板间设计优秀奖2019金堂奖全国百强先锋榜百强设计师2019年度腾讯家居搜狐焦点家居杰出设计师2019德国高仪住宅精英榜TOP108匠2019蒂森克虏伯杯别墅设计大赛经典设计奖2019第三届西安建筑装饰设计奖“年度青年设计师领袖”2020中国设计新青年评选“城市举荐官”2020设计作品《石中木》获得陕西地区优秀住宅软装设计2021-2022中国新地产设计大会年度优秀别墅设计师2021金住奖-中国百杰居住空间设计师成功案例:中华世纪城紫薇臻品白桦林居中海华庭中海国际紫薇融侨就掌灯中海东郡曲江公馆曲江尚林苑曲江兰亭曲江华府枫林意树湖城大境中海铂宫中海百贤府紫汀苑紫楹台曲江和园中海曲江大城......||点击以下图片查看易高国际更多作品▼ ||▼易高·案例 |凤凰池421㎡欧式风格/欧式魅力空间
▼易高·案例 |曲江大城240㎡现代简奢/畅享生活小资
▼易高·案例 |曲江大城200㎡现代风格/感受色彩魅力
▼易高·案例 |丽彩溪岸庄园550㎡欧式风格/高级莫兰迪色搭配
▼易高·案例 | 万科大明宫
305㎡现代简约/感受家的温馨舒适
▼易高·案例 |曲江九里118㎡新中式 /中式端庄大气
▼易高·案例 | 紫汀苑248㎡美式轻奢 / 奢华雀语
易高国际西北首家工程直管
100%自有工人、零增项、零增量、诚信一口价
中国设计百强品牌/专注别墅大宅设计/施工/软装陈设
易高国际秉承【出于易高·必为精品】的施工理念
【受人之托·忠人之事】的服务理念
竭诚为您提供全案设计服务
关注我们,了解最新动态
还您一个独一无二的家居生活
客服
消息
收藏
下载
最近






















