查看完整案例


收藏

下载
PROJECT INTRODUCTION:
项目面积 | 118㎡
设计风格 | 新中式
项目名称 | 曲江九里
主案设计师 | 史娜
START
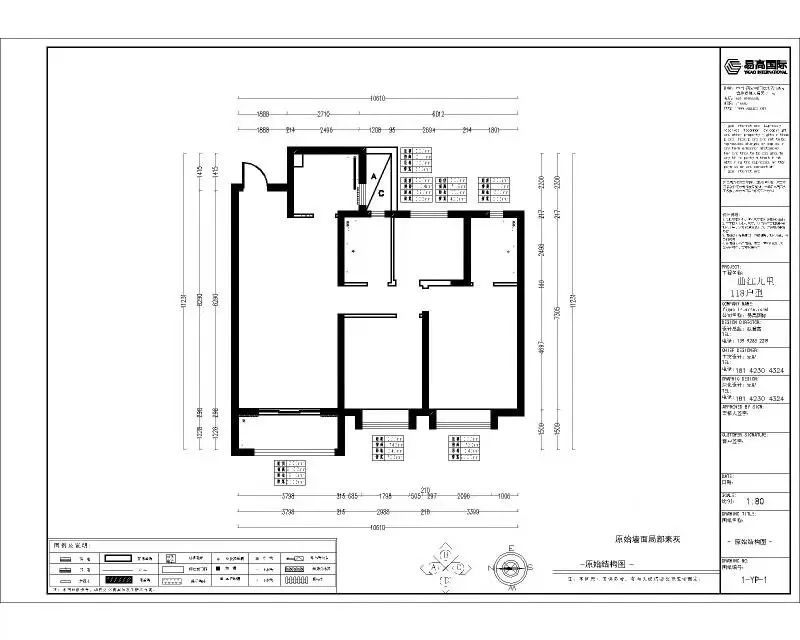
将传统古典元素与现代相结合,形成新中式风格,减少传统中式的厚重感,保留了中式之中的自然淡雅,诗意中又蕴含着简约,体现了人们对传统美学的追求。•原始平面图•
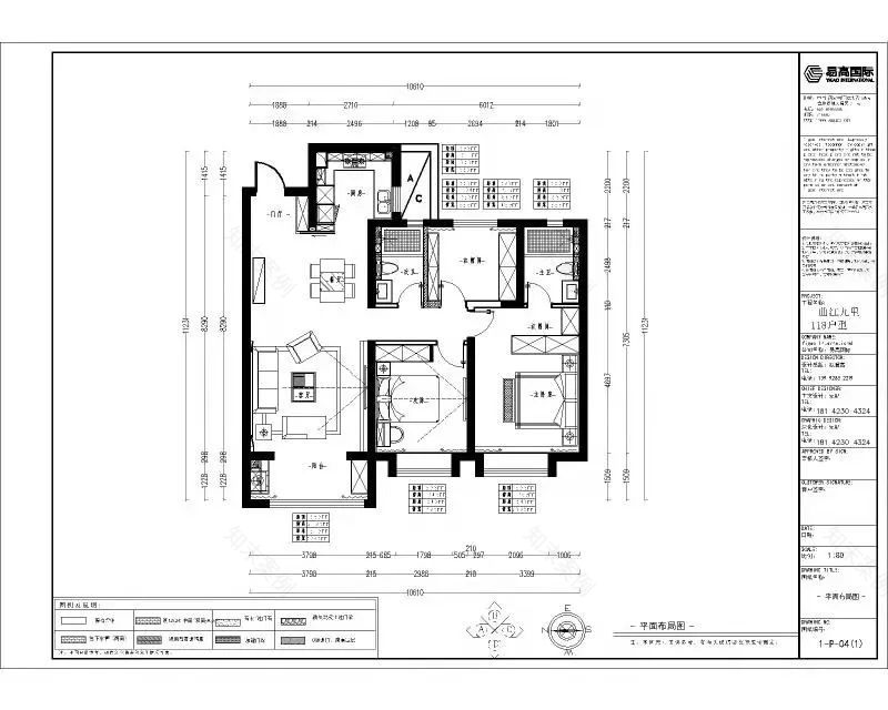
•平面图•
01客厅
将古典元素和现代元素相结合起来,让客厅更加有气质。家居布局遵循传统对称原则,增加美感。定制复古茶几,给客厅添加复古感受。颜色上以白色为主基调,朱橘色作为装饰色点缀空间。电视背景墙采用定制大理石,绘有山水画,给客厅增加诗情画意。
02餐厅
客餐厅采用一体化设计,餐厅风格与客厅大致相同,从而达到空间整体效果。一张定制餐桌子带来质感体验,餐桌旁设立酒柜,与家人一起小酌一杯,忘却城市浮华和喧嚣,享受这一刻的美好。03厨房。
厨房是生活方式的体现中式厨房设计确保客厅不被厨房烟火所打扰以银白色为主基调视觉上扩大空间没有过多的装饰给人想象的空间回字型布局,合理利用空间让厨房不再是一个人的战场而是家庭情感联络点04次卧
次卧设计较为简约
减少装饰,留下想象空间
床采用木色,让人有身处自然的感受
飘窗设计引入户外风景
让房间不再单调
06主卧
主卧是屋主休息场地可以让屋主卸下一身的疲惫彻底放松身心。鴳蓝色背景墙丰富空间色彩,让人心情轻松。内嵌式展架可以摆放收藏品装饰空间,飘窗设计保证卧室采光以及通风。清晨醒来,看着窗外第一缕阳光,感受生活的美好。07衣帽间。
衣帽间是生活品质的象征之一,不仅收纳衣物,更是给屋主生活添加仪式感。定制衣柜分区明确,让每件衣服都有属于自己的归属地。拼色地毯与衣柜颜色相呼应,给人视觉上的冲击,点燃生活的激情。08主卫。
主卫让屋主生活更加方便快捷采用灰色瓷砖提升质感凸显屋主生活格调设立镜子视觉上扩大空间百叶窗设计既保证卫生间采光又保证了卫生间的私密性在这里,洗漱完毕放松心情,迎接生活的美好
▼主案设计师
史娜主案设计师从业7年行业资质:中国室内装饰协会会员注册中级室内设计师荣获奖项:中国室内建筑设计师协会注册中级室内设计师陕西易高空间设计工程有限公司优秀设计师中国室内设计协会会员亚太设计师大赛方案类“样板房空间”金奖;“老板电器杯”陕西省第十届室内装饰设计大赛优秀奖金鹰设计大赛别墅类-银奖2019德国高仪•中国住宅设计精英榜优秀奖设计理念:始于精心纳于代表作品:鸿基紫韵,凤凰池,荣禾曲池东岸、丹轩梓园,逸翠园,融侨城,御宾府,紫汀苑,曲江公馆,莱安逸辉,绿地与湖,华著中城,金辉世界城,一曲江山,紫薇永和坊,中环国际城,曲江风景线,曲江新苑,融侨馨苑,龙湖双珑原著,林隐天下,中海曲江大城等。||点击以下图片查看易高国际更多作品▼ ||▼易高·案例 |中海曲江大城别墅500㎡空间/安逸雅奢
▼易高·案例 | 曲江大城叠拼200㎡空间/温娴雅致 自在随心
▼易高·案例 | 龙湖双珑原著 360㎡ 别墅空间 / 包容并序
易高·案例 | 曲江大城下叠480㎡别墅设计/诠释奢华内涵
▼易高·案例 | 荣禾曲池东岸190㎡现代轻奢/重塑空间气质
▼易高·案例 | 清凉山居345㎡新中式 /中式魅力空间
▼易高·案例 | 湖滨会馆345㎡新中式|邂逅桃花源
易高国际西北首家工程直管
100%自有工人、零增项、零增量、诚信一口价
中国设计百强品牌/专注别墅大宅设计/施工/软装陈设
易高国际秉承【出于易高·必为精品】的施工理念
【受人之托·忠人之事】的服务理念
竭诚为您提供全案设计服务
关注我们,了解最新动态
还您一个独一无二的家居生活
VIP客服专线:029-89833383 / 15353495550
地址:陕西省西安市雁塔区曲江池北路1369号
金地湖城大境天字一号9-1-1101
客服
消息
收藏
下载
最近























