查看完整案例


收藏

下载
出于易高·必为精品
项目面积:460m²
设计风格:新中式
主案设计师:武登高
深化设计师:史娜
软装设计师:杨晓旭
项目名称:阳光城林隐天下
▼负一层
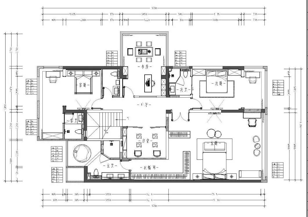
一层
二层
别墅空间,四口之家,业主喜欢红木家具,且希望多一些功能性的区域,可以在家这片属于自己的天地,释放压力,享受生活的恬静舒适。▼门厅
穿“林”而入,步入空间,四周自然风景映入眼帘,与立体的木艺建筑摆件相映成趣,营造中式园林既视感。
▼中厅
古人讲究天圆地方,阴阳相和,这里,设计师将两者相融,合二为一,更显中式古韵,加以纹理清晰的材料呈现,为空间注入中式美学意涵。
▼品茶区
在这里,艺术的诗意与生活的意趣交融协奏,镜面屏风的朦胧山水,与框住劲石苍的圆形墙面装置意蕴相衬,精致的细节奏响空间气质的旋律。
▼酒窖
将中式的典雅与现代生活理念相融合,便有这古香古色的藏酒阁,似古时安静的书房,亦可作为品酒区,享受这幽静又难得的惬意生活。▼健身区
一扫钢筋水泥大理石等平常化的设计,一明一暗的圆景,青翠自然的砖瓦,透过天窗流入的自然光源,为此处健身的人营造自然且活力的氛围。▼客厅
将理想生活的仪式感贯通内外,升级一座城市的生活想象,在探索高品质人居的同时,引领未来生活方式,更引人归心宁静沉谧的生活本身。
▼餐厅
与地面同色系的大理石吧台,成为客厅与餐厅的分界线,不动声色的满足了业主各项生活需求,且开放式设计,在一定程度上增加亲人之间的情感交流,餐厅顶部的雕花装饰,为空间注入更多清逸雅韵。
▼厨房
厨房,最具烟火气的地方,承载着家中的小欢喜,在这里真正能感受到家的温暖,清晨午后,伴着窗外自然之光,洗手羹汤,为家人,为自己,烹饪这人间最美味的爱心佳肴,享受生活美好与甜蜜。
▼书房
一半自然光景,一半中式古朴,为书房凝结了东方美学最自然的气韵,集书墨香气与雅致结构与一体,镂空雕花、玉石摆件、书籍卷帙,风蕴绵长而悠远。
▼宗堂
按照业主的需求,独立出宗堂空间,简雅大方的家具搭配暖色灯光,又以白色进行调和,削弱空间的冷寂感,让室内更加宁静,且干净。
▼卧室
简单而富含活力,设色上明快、灵动,与孩子活泼开朗的性格一致。
在清浅色调的烘托下,设计师提供了一种纯粹的孩童审美视角,以不规则拼接装饰,与带有律动感的纹理装饰,让空间加饱满。
大范围的灰阶与低彩度的色调,让空间充满轻柔而和缓的氛围,物料之间通过不同的肌理与材质的碰撞凸显品质,丰沛的阳光将生活无限延伸。
拼撞的色系,造型简约的装饰,拉大空间的视觉范围,时尚且精致。
▼主卧
会呼吸的原木,简约与温馨的平衡,雅致的装饰,温馨的光源,一切都为主人营造出空间的意境与禅味,呈现一处恬淡静逸的当代人文雅居。
▼卫生间
选用不同色系的大理石对卫生间进行装饰,让每个空间都成为独立的个体,透过材质的纹理与自然光的融合,搭配小方砖进行点缀,整个空间都充满纯净的质感。
▼主案设计师
武登高
从业14年
易高国际创始人、设计总监
中国室内注册设计师
毕业于西安美术学院
设计理念:用艺术的眼光雕琢生活
中式、简约、欧式极简
从业经历:2017年 瑞典色彩学院色彩专业结业
2004年-2010年北京元洲装饰首席设计师
2011年-2013年陕西九朝装饰首席设计师
2013年-2016年北京峰上大宅装饰专家设计师
获得荣誉:2009年获美化家居设计大赛三等奖
2011年获陕西省优秀设计称号
2012年获筑巢杯设计大赛优秀设计奖
2013年获住宅装饰行业优秀设计师
2014年获住宅装饰行业优秀设计师
2015年获第三届【锋尚·京瓷杯】新中式设计大赛最佳功能布局奖
2016年获第三届中国建筑装饰设计艺术作品展获铜奖
2017年获居然顶层精英设计师
2017年获中国(陕西)设计杰出青年
2017年获第四届峰尚杯新中式设计大赛 最佳方案奖
2017年获首届禾记万佳杯设计大赛优秀奖
2017年获创意生活设计金蝴蝶奖
2017年获商业旅游地产年度优秀住宅公寓设计师
2017年评选为亚太空间艺术大师
2018年获金楠奖设计大赛优秀奖
2018年获得第二届西安建筑装饰设计“青年设计师领袖”称号
2018年设计作品《中海百贤府》获第二届西安建筑装饰设计别墅类银奖
2018年设计作品《龙湖香醍》获第二届西安建筑装饰设计样板间设计优秀奖
2019年获金堂奖全国百强先锋榜百强设计师
2019年获腾讯家居搜狐焦点家居杰出设计师
2019年获德国高仪住宅精英榜TOP108匠
2019年获蒂森克虏伯杯别墅设计大赛经典设计奖
2019年获第三届西安建筑装饰设计奖“年度青年设计师领袖”代表作品:中华世纪城紫薇臻品、白桦林居、中海华庭、中海国际、紫薇融侨、就掌灯、中海东郡、曲江公馆、曲江尚林苑、曲江兰亭、曲江华府、枫林意树、湖城大境、中海铂宫、中海百贤府、紫汀苑、紫楹台曲江和园、中海曲江大城等
易高国际西北首家工程直管
100%自有工人、零增项、零增量、诚信一口价
中国设计百强品牌/专注别墅大宅设计/施工/软装陈设
易高国际秉承【出于易高·必为精品】的施工理念
【受人之托·忠人之事】的服务理念
竭诚为您提供全案设计服务
关注我们,了解最新动态
还您一个独一无二的家居生活
VIP客服专线:029-89833383 / 15353495550
地址:陕西省西安市雁塔区曲江池北路1369号金地湖城大境天字一号9-1-1101
客服
消息
收藏
下载
最近






























