查看完整案例


收藏

下载
如果说空间是一种对生命的礼赞,那么艺术则当之无愧是对这种礼赞最优雅的注解。
——ENJOY DESIGN
项目名称:万科理想城
开发商:西安万科
设计范围:叠墅样板房室内及软装设计
C户型 丨202
整个空间以各种国际灰色调的木饰面、大理石、烤漆面为主,配以亮面黑镜,使空间更加的明亮通透。
深胡桃和大理石结合的茶几表现了客厅的沉稳大气,背景墙采用了追求自然的木饰面与大理石组合,使空间无限亲近自然,轻松愉悦。
低调优雅的墨绿色加上香槟金的点缀,营造出有温度的生活起居场所,回到“家”所应该有的样子。
餐厅与客厅相邻,大面积的地毯使得两个空间的过渡更加自然连贯。六人位的餐桌拉近了人的距离,同时也增大了通道的空间,使得更加大气,宽敞。
亮金与深色搭配的边柜点缀在走廊尽头,不仅很好的利用了空间,更是起到活跃空间的作用。精美的画作、气韵生动的雕塑、摆件,令整个空间更突显品质感。
主卧的角落增加单椅边几,加强空间场景化。银杏叶图案的背景墙体现了主人的浪漫情怀,床靠背采用了编制皮革加刺绣的表现手法,彰显着主人对品质的细致追求。衣帽间采用了可视性极高的玻璃柜体来表现,位置与大飘窗相对,空间明亮温暖,使整个空间更加精致,赋予居住者全新的感受。
次卧的床靠背采用了漆画、带纹理墙纸、皮革等材质来表现。以一个精致、从容的生活方式为空间主题,提取自然及生活中的现代美学元素,构筑一个典雅舒适的生活空间。
负一层设置了休息娱乐区和一间花房工作室,主人在闲暇之余可以照顾摆弄自己心爱的花草,孩子在一旁聊天、看书,让忙碌的心放松下来。
▲负一层平面图
▲一层平面图
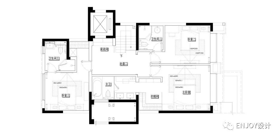
二层平面图
E户型 丨147
空间凝固着人的需求、情感与审美,细节构成了空间,空间则成就了细节。设计在讲究空间动线流畅及向光性的同时,注重空间形式感,给空间使用者带来另一番人居体验。
客厅及用餐区呈开放式设计,划分在室内的阳光充足处,毗邻宽大开阔的玻璃外门,空间上给人以通透之感。
整体素雅的浅色调营造轻松的气氛,红色的抱枕及艺术装置为视觉与触觉带来记忆,这抹红
亦或朝晖,亦或晚霞,点缀得恰到好处。
飘于上空的流苏灯饰如梦如幻,与客厅呼应得恰到好处,温柔舒适。将晶瓷画装饰整面背景墙,与有序排列的精致餐具相辅相成,体现出主人对于生活品质的追求。
主卧隐去繁复沉重的设计表现与具象形态,围绕简居简行的中心进行设计。通透敞亮的照明效果搭配艺术灯光点缀,使整体氛围更显通透与质感。
次卧是一种宁静素雅的空间调性,以米灰色为主,点缀以红色的床品打破空间的沉闷,饰品的选择上则精致简洁,在柔和的美感中让空间呈现惬意愉快的气氛。
儿童房的设计是将实用与美感完美融合,蓝色与黄色的组合则使空间更具活力,体现出孩子的灵气活泼。
▲一层平面图
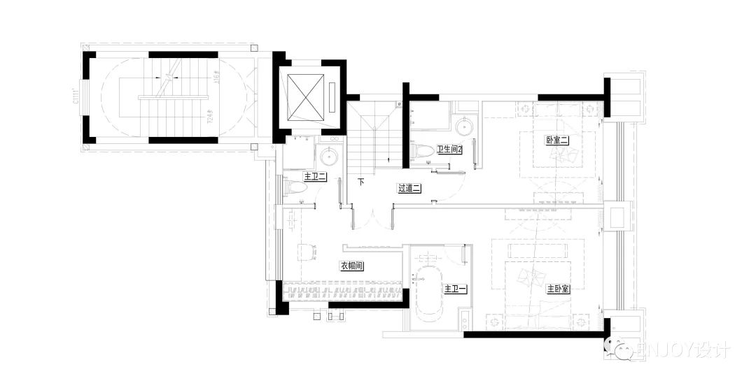
二层平面图
硬装设计:何志满
软装设计:李燕、郑磊、杨增勇、严康南、陈颖、伍爱玲
摄影师:冯建
鸣 谢:西安万科房地产开发有限公司 设计管理中心 孙侃侃
关于ENJOYDESIGN
ENJOY DESIGN 创办于2010年,坐落于广州。作为一家专业的建筑室内空间设计公司,我们为不同行业的顶级客户提供住宅(售楼处、样板房、别墅、公区)、办公项目的产品策划和个性化定制设计,为地产行业领先客户提供整体精装修设计标准定制研发,同时,我们提供教育、旧改、活化项目的专业设计及顾问服务。
我们拥有120多人的专业设计团队,作为美的践行者,提倡美学让生活回归本真,坚持从客户感受和体验出发,以独特的设计语言、为众多客户提供值得赞叹的当代又创新的空间设计,为最终的使用者提供功能与美学的共同体。我们坚信,一切设计的出发点都是变革,不管是服务大众,还是改变人们的生活,即便,这种变革是微妙的。
我们特立独行,但不标新立异;我们很酷,又很友好。
代表作品
宁波万科格拉美西精装设计
<< 滑动查看下一张图片 >>成都万科玖西堂精装定智家
三亚海上大都会
<< 滑动查看下一张图片 >>
<< 滑动查看下一张图片 >>
招聘信息
CAD制图员
效果图绘图员
设计师助理
深化设计师
驻场设计师
设计师
设计主管
摆场专员
采购助理
软装助理
软装设计师
商务助理
请将个人简历及作品集发至
如有疑问请致电
020-85219763
地址:广州市天河区天河北路663号机械研究所9栋4楼
客服
消息
收藏
下载
最近































































