查看完整案例


收藏

下载
项目名称:海天一色
项目地址:湖北 武汉
设计公司:上作空间设计
项目面积:480㎡
我们以特定的方式生活
就会以特定的方式去表现生活
本案来自老客户的委托设计,是一栋房龄超过十年以上的老别墅全面翻新改造。因为房龄时间过长,原本装修基本没办法利用,房屋结构上也出现了沉降和开裂问题,选择了全部拆除重新改造加固房屋结构,让老宅焕发新生。
项目现状
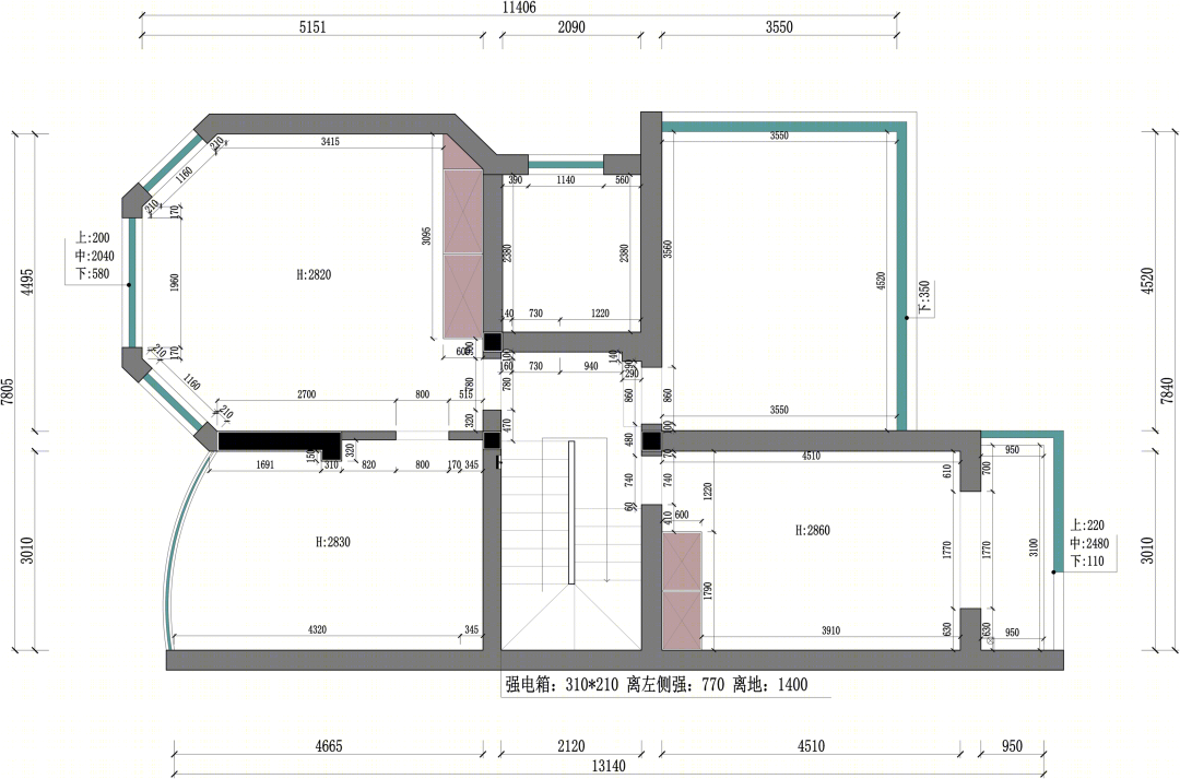
原始结构图︱平面布置图.
结构改造上我们重新规划的房间动线与套房关系,因为考虑是两个小孩的成长周期和别墅空间改造的的长期性,设计上我们直接考虑了3套房的超大卧室空间,牺牲了一定公区面积的基础上,满足了卧室的私密性和舒适度,一定程度上也考虑了未来十年甚至更久的小孩房的周期性功能。
建筑外立面改造后
房子应该是庇护所,是安宁的地方,也是身心恢复活力的地方。我们将建筑外立面打造成简单而又优雅的长期住宅。并且在材料比例上和对细节的关注,让住宅与周围环境结合而不是形成一种焦点。
客 厅
城市的声色光影里,人心容易浮躁、少了温度,给建筑适当留白也是给生活以空间,变得简单,心境更加纯然。本案在室内设计主题上没有考虑传统的繁琐装饰材料,用简单的元素和自然材料,实现舒适生活和休闲度假的平衡环境。
餐 厅
吧 台
主 卧
次 卧 1
次 卧 2
关于我们
About us
上作空间室内设计创立于2014年底,是一家集室内设计、工程施工、软装设计与实现于一体的专业设计公司,长期以来致力于中高端家居装饰服务。
我们坚信设计创造的不单是空间,更是品味人生,强调功能与美感的最大可能,理性,艺术,有趣的设计,生活是人品质的外延,是自我追求的外在体现。强调功能与美感的最大可能。每个项目都是针对业主个性需求而定制的,同时对其功能要求进行仔细分析,以提供经济和美学之间的最佳平衡。
上作空间设计拥有才华横溢的设计专业人士与施工队伍,其资源与技术完全可以胜任完整的项目运作,即:风格定位、概念分析以及贯穿整个项目施工过程中的施工图设计、现场管理以及各种材料供应验收阶段的配合等。此外,还与软装饰品家具厂家及专业全球家居采购公司保持了良好长期合作关系。
设计理念 /
Design concept
上作空间 No style, your style
我们并不用风格的标签来禁锢自由,
而是让我们的设计通过你的内心,
成为自己的风格。
作品案例
Case
我们从不趋于主流审美,而是直面客户的内心需求,找到设计的价值根源。专注于为私人客户提供定制式的室内设计与软装陈列表现,以此示范生活之美。
▲
时代新世界︱愿你活着一个有趣的时代
▲
美联城仕︱聚在一起,幸福的事就多了
▲
江山樾︱梦游少女
▲ 印象城︱现代美学之家
更多作品案例及专属空间设计服务
室内设计 / 软装陈列 / 地产项目 / 商业空间
武汉上作空间室内设计事务所
地址:中国 武汉 洪山区欢乐大道东湖尚郡 6-1106
手机:13971620300
客服
消息
收藏
下载
最近













































