查看完整案例


收藏

下载
实景视频
项目地址:龙湖天宸原著
面积:296㎡(包含顶楼花园)
设计:方平米设计®
主材:惠达瓷砖/洁具,柏鹿全屋定制,佛山富轩封窗,日立空调,远大新风
摄影:Nantu®南图
关于这个家
本期住宅为三层叠墅结构,很适合三代人共同居住,既有浓厚的家庭氛围,又有相对高的私密性。
常住人口:屋主夫妇+两个孩子+两位老人。面对 6 口人不同的生活需求,保持家人之间刚刚好的独立与亲近关系尤为重要。
Q 三层复式如何合理布局?
A 一层属于家庭互动空间,有一家人互动陪伴的亲密氛围,同时将父母房设置在此,省去上下楼梯的不方便。二层属于私密生活空间,配置两个卫浴区,保证家庭成员生活的独立性。三层属于休闲功能空间,追求空间的实用性与灵活性。每层空间定位明确,尊重三代人的生活需求,避免因彼此习惯、作息不同造成的干扰。户型改造 ➝ 实景落地。
Retrofit ➝ Real scene landing
概念图&实景图
家庭互动区 { 门厅+客厅+餐厨区+父母房+生活阳台+公卫 }1F 户型改造
1F 改造要点?
A
入户门外移,增加门厅。
卫生间门位置从面对父母房改到过道中,使楼梯有增加每一级踏步厚度的空间,让楼梯更加平缓。
父母房阳台加建楼板。
敲掉原有客厅阳台,使客厅空间整体往外移动,餐厅与厨房面积随之扩大。
考虑到从父母房进入晾晒阳台时影响其休息,在客厅电视墙右边设置对开门进入晾晒阳台,避免互相干扰。
半开合的餐厅与厨房空间既能实现彼此连接贯通,也能成为两个独立的空间。
门厅
鞋履放置在白色鞋柜中,清爽举步踏进屋内。
客厅
全室灯光分为全区、局部重点与情境式照明三种,使空间依随日常生活变化而调整灯光氛围。
低矮的柜体连接两侧高柜不会造成视觉上的压抑感。由于客厅开间较大,沙发无需靠墙摆放,利用其后方空间开辟出一片新的收纳、展示区域。
挂画、茶几、灯具等物件的造型丰富有趣,为空间注入更多的活力与艺术气息。
电视背景墙中部高于两侧墙面,呈现立体感。白色壁炉状电视柜与两旁储物壁柜,共构对称形式。极简感的长条壁灯烘托温馨氛围。
客餐厅背景墙连贯一体,运用不同色系的柜体划分各自区域。
右侧拱形门通往楼梯间,展现空间的仪式感。餐厨区玻璃推拉门隔开餐厅与厨房,开放与独立兼顾,有利采光又阻挡油烟。
餐厅选择圆桌,家人围坐在一起用餐更有温馨氛围。
餐边柜由酒柜、上下层收纳柜和内嵌冰箱三部分组成,中部平台配置插座,便于日常使用小型家电或摆放陈列收藏品。
中岛台增加厨房可操作面积,多人一起下厨增进家人之间的日常互动。
一层公共卫浴间
私密生活空间
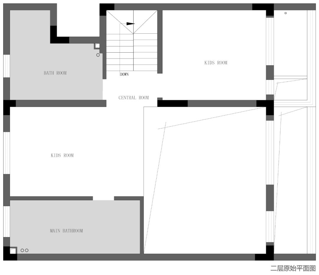
{ 主卧套间+2 个儿童房+公卫 }2F
户型改造
2F 改造要点?
A 尽可能多的设计柜子以加大主卧的储物空间。
均衡两个小孩房的功能,都设置有独立的书柜与衣柜空间。
过道两侧房门与墙面同色系更具整体性。
主卧
属于午夜蓝的典雅气息,以简练线条调配墙面比例,构成具有美式线板风格的背景墙。
主卧中包含独立卫浴间+衣帽间。整面白色衣柜囊括多个抽屉和长短不一的柜体形式,便于屋主分类性的收纳衣物,方便日常拿取。
主卧衣帽间充足的储物柜满足不同物品属性的收纳需求。
主卧卫浴间
儿童房
选用姜黄色床铺注入更多温暖气息,安静独立的学习区让孩子更快进入独立思考的氛围中。
开放层板弱化封闭柜体的沉闷感,同时便于收纳包包等物品。衣柜门均采用按压式设计,无拉手立面更显简洁美观。
儿童房
房内放置一块画板,创造一个孩子画画专属的艺术空间,度过温暖美好的童年。
设置小夜灯方便孩子晚上活动时使用,同时增强安全感,陪伴害怕黑暗的孩子安心入眠。
二层公共卫浴间
本层公卫主要是两个孩子使用,彩色系墙面更具童趣感。
休闲功能区{书房+洗衣间+露台+晾晒区+公卫}3F 户型改造
第三层是多功能区域,兼具茶室、小花园、洗衣晾晒等功能,是欢聚放松的好地方。施工过程 Construction process
泥工阶段
木工阶段
木工阶段
定制安装阶段
定制安装阶段
油漆阶段
家具摆场
家具摆场
# 往 期 案 例 #
PAST WORKS
联系我们
不懂软装的施工不是一个好设计
美丽皮囊和有趣灵魂都是我们的追求
认真画图,专注设计,执着施工感谢关注
欢迎有品位的你
@方平米设计事务所
好好住:方平米设计
方平米设计
▲添加客服号咨询装修
湖南·长沙德思勤创业大街 A5 栋 812
189-4256-3722
广东·东莞莞城区天宝设计城 B 栋 4 楼
客服
消息
收藏
下载
最近










































































