查看完整案例


收藏

下载
"加班!加班!设计工作者不需要休息!" "加班!加班!设计工作者没有周末!" "热爱生活,热爱工作"
"没有什么可以阻止我们对工作的执著!"
"什吗!国庆节到啦!放下键盘鼠标!走起来老弟!"
"一年一度的‘十二’间公益设计开始啦!谁说我们设计师只能坐在电脑面前,只会为客户服务呢?「山合」人走起来!"
这是来自「山乙山合对祖国爱的表白。我们没有关睢的歌喉,没有屈原的音韵,不能用古风与乐府、律诗与散曲来歌颂祖国但我们可以用设计发声来表达我们对祖国的深情,用我们的专业与祖国并肩同行。
红灯笼挂满大街小巷,蓝天上白鸽快乐飞翔,千山万水喜披新装,无时无刻,喜庆无处不在。「山乙山合早已将对祖国的祝福塞入了这封来自2014年的信封之中。
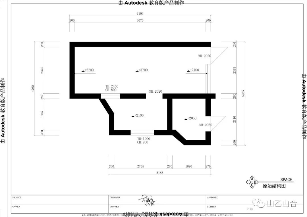
“设计是为民众服务的,而非服务于少数人的活动。” ——威廉·莫里斯2014年居然乐屋十二·间公益设计展选择老城改造这一关系民生大事作为设计展的切入点,希望通过十二·间公益设计展开通的这条亲民通道",为全国城镇化建设起到示范作用,在民生层面上体现设计的价值。山乙山合走进北京大栅栏胡同,为小小胡同人家进行重新设计。胡同人家与设计师,原本是两条互不干扰的平行线,在十二·间里相遇。24平米,5口人,30年的生活用品积累。要解决的不仅仅是居住,更要有巧妙储存所有的生活积淀。-改造前现场照片-
-第一套户型改造前原始结构图-改造后平面布局一层】平面面积的不足从设计思维来考虑的话应该就是从立体空间进行着手。谨慎调查人体工学尺寸后换来夹居的休息空间,同时要更为具体满足不同年龄的居住使用功能。如女儿的电脑台等,主人室的电视柜,老人室的便行与卧躺功能。
收纳在此时已经与空间融为一体,和从前的所有物品的裸置换成现在的按功能、按类别、按使用频率归纳,它们在床内,在沙发内,在夹居,不再凌乱无序。
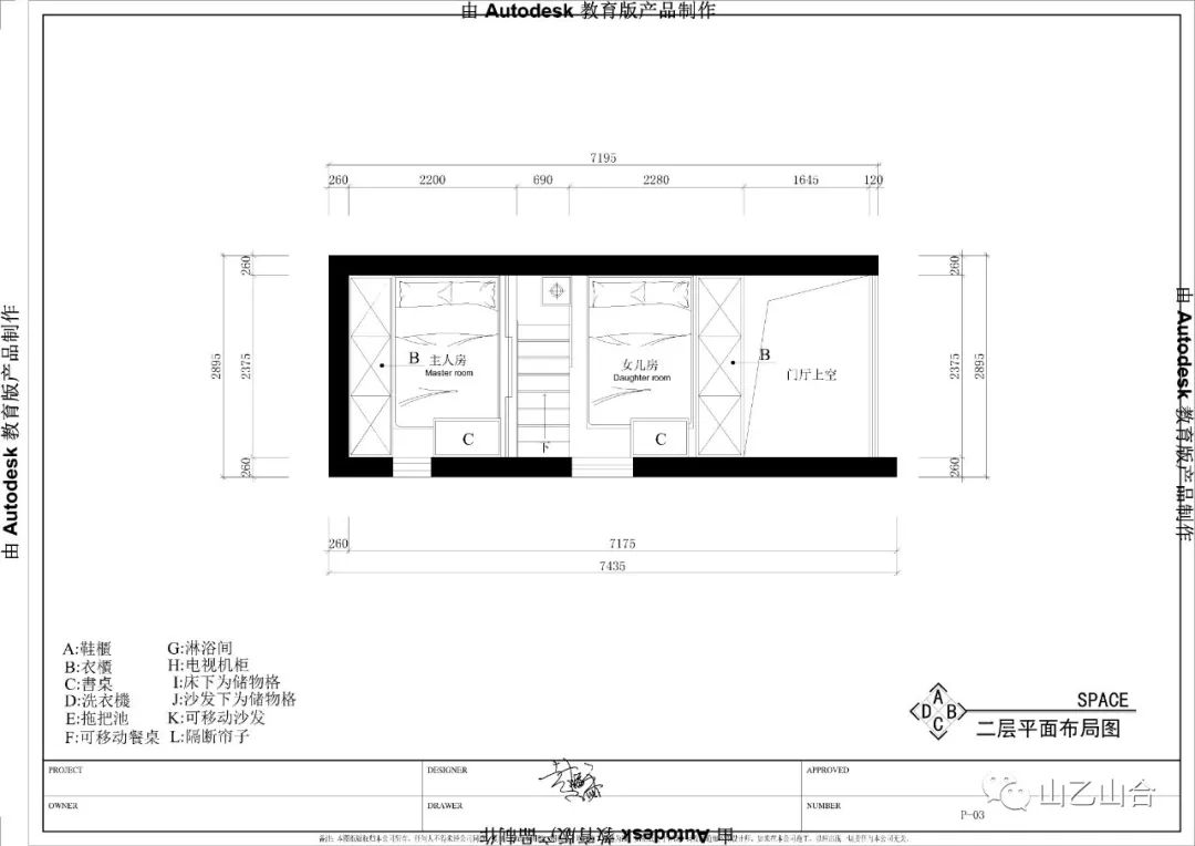
【改造后平面布局二层】为了方便,空间增加了厨房的使用率与方便性。从原来的户外出入改成和室内融合,增加了生活和亲和感。方便了出入,更重要的是增加了洗浴功能,方便了老人因为在室外合用卫生间洗浴而带来的困扰,宜人宜居,朴实无华的新生活空间。
-第一套户型改造后效果图-
-第二套户型改造平面图-
-第二套户型改造效果图-
水墨,靛蓝,原木是整个设计的焦点,点、线、面的空间构造与色彩的有机结合让整个空间富有诗意。
简单精细的不锈钢材质使空间提升质感,与木质材料形成强烈的对比,又刚柔结合。
大面积镜面的运用扩大空间感和层次感。这样的比例关系给与的视觉感,体现出既有传统底蕴又现代时尚的生活品味,一水墨一花束自然随意,娓娓道来。
家具及软装的整体定制是为了更好的诠释设计,简洁线条,素色布艺,暖色照明使整个空间精致又优雅。
望祖国在2019年10月1日这个普天同庆的日子里签收这份穿越时空的慢递,「山乙山合」。在前行的道路上勿忘初心,将「功能美学」的设计理念进行到底,创造更多有温度的原创设计与祖国并肩同行。
「山乙山合」主营室内外空间设计、软装陈列设计、工程施工,产品以及核心技术研发。是一家以设计为主导,品质为前提,满足你对私人定制高标准需求的全案执行落地公司。公司团队由一群屡获行内权威大奖的精英设计团队组成,有着非常丰富的各行各业项目主持经验。秉承创新、改革、研究、功能衍生美学的设计理念,致力于突破室内设计行业大环境现状,打造独属于对品质有着高标准追求,对审美有着高标准要求的设计品牌。公司拥有强大的研发团队,将针对设计体系、工程体系以及软装体系进行不断研发及创新。是国内富有创造力与艺术价值的设计企业之一。公司将秉承以设计证明私人定制的核心原则,以高标准的施工品质为前提保障,以高品质软装产品配套的基本原则服务于每一位客户。用设计证明私人定制,你对个性的需求就是我们的专业。
SHANYISHANHE
-山乙山合
*TEL:0731-84456188*Campany Location
湖南省长沙市开福区北辰三角洲奥城D3区1栋1单元3101室
9:10~17:30
周一至周日
—欢迎关注,获取多信息—
weibo:山乙山合
站酷:山乙山合
-山乙建设大家庭-
We Are Family
「山乙」、「东久饰」地址:长沙市开福区栖凤路486号凯乐微谷商务中心1栋B区18楼岳阳分公司地址:岳阳楼区巴陵东路101号东方实业大厦7楼|喜欢就点赞分享朋友圈关注我们
客服
消息
收藏
下载
最近























