查看完整案例


收藏

下载
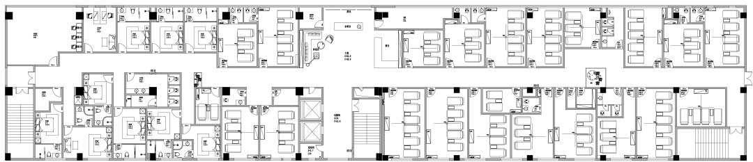
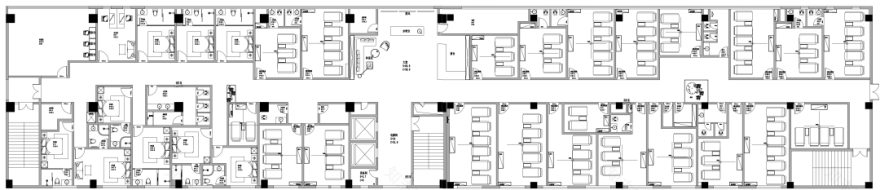
项目名称:《悦目MOON》KTV沐足
项目地址:株洲天元区
Project add: Zhuzhou
设计团队:思所设计SEESOUL
Design team: SEESOUL
设计面积:1200m
Design area:1200m
商业项目:KTV沐足
月与悦,用赛博文化重新定义K歌与沐足。
随着年轻消费者对于该业态传统设计的审美疲劳
设计师采用大量新材及科技元素,重新颠覆消费者对于场所精神认知。
让场景包容更多可能性,在消费风口上产生更广泛的影响。
过道区域
包厢走廊区域
包厢走廊区域
空山基装置艺术
通过视觉差异形成打卡区
卫生间
包房
KTV包房
KTV包房
KTV包房
平面图
公司地址:湖南株洲美的城澜山别墅34-1
1817331 1052
荣誉 Honor
湖南建筑室内设计学会HIID理事单位
4040杰出设计青年5位(1位省榜)芒果奖全国总冠军
艾舍奖银奖
《我是设计师》赛区晋级
十间坊城市青年设计领军人物
湖南设计星12强
湖南设计人物总评榜TOP100
法国双面神作品银奖
亚太IAI国际设计奖银奖
中国百强家装设计机构
湖南设计星8强
M+全国设计20强
中国住宅精英榜
顶峰奖全场大奖
顶峰奖餐饮实例金奖2座
顶峰奖年度影响力设计机构
顶峰奖年度新锐建筑室内设计师4座
湖南设计人物TOP100
湖南十佳设计住宅设计单位
芒果TV《设计理想家》录制
株洲FM98.4设计专访
作品刊登《装潢世界》
更多平台了解思所
客服
消息
收藏
下载
最近


















