查看完整案例


收藏

下载
关于习本设计
XIBENSPACE/ WE ANSWER YOU BY CREATIVITY
我还记得那个夏天,风依旧在吹,吹动榕树的繁叶,炙热的阳光投下,透过树叶的间隙,撒下斑驳的光影。而今这个夏天 壹处 悄然绽放。
【基本信息 】设计机构 | 习本设计
项目地址 |合肥祥源小筑
项目面积 | 35m²
装修造价 |28万
施工机构 | 辰茂施工
项目摄影 |Remex 建筑空间摄影
说在前面
业主对新家几大需求:①虽然空间有限,但还是希望尽量空一点,不喜欢把家塞满,多给人留下呼吸的空间;
②希望有自己独立的工作+学习的区域;
③无论色调,还是陈设,希望尽可能的统一,整体效果简洁、干净、有秩序、有质感;
④色调上倾向于黑白灰,但又不希望氛围过于压抑;
⑤自然采光不好,光线不均匀,希望设计师可以利用室内灯光设计弥补(很重视灯光设计);
⑥希望有相对独立的衣帽间,方便衣物的收纳归类;
⑦弱化厨房功能,平时以简餐为主;
⑧有相对独立的喝茶区域,单独的茶水台,茶水台下方放置净水机;
⑨卫生间干湿分离,最好可以将洗漱台独立出来,避免家庭早高峰;
⑩挑空的客厅,让家更有立体感;
⑪书本较多,后期还会不断增加,希望跟着我漂泊不定的它们也能有个家;
⑫希望物品陈设藏与露兼备,张弛有度。
毛坯状态:根据业主文字描述的需求,与业主进行了详细的沟通,我们对②/⑥进行了深入的探讨。针对②:首先业主简餐为主,所以再单独去做独立书房,会比较拥挤,不如与餐桌共用,而且作为一人居独立书房没有必要性,意义性也不大。针对⑥:很多人要衣帽间无非2点,仪式感/收纳量,但是如果小空间再去做衣帽间,基本会沦为杂物间,那么它所带来的仪式感荡然无存,所以小空间更应该注重收纳的一个体量感。//实景图客厅・Livingroom
俯视客厅A
一款黄色的Puppy宠物狗椅点缀了整体空间
利用楼梯下方做了一些收纳柜体。
木质地台可坐/可卧
让人十分惬意。
前期su效果/最终实景落地
俯视客厅B一整面高5米的全敞开式书柜连接夹层空间,使空间错落有致更具有立体感。白色的柜体收纳了业主多年购买的书籍与对面的柜体,虚/实呼应。
[“藏 ”与“露” / 相得益彰]
开启状态
关闭状态
90%大件物品都被收纳其中,保证了整体视觉上的清爽。
洗衣机与烘干机,冰箱都收纳隐藏于此。
餐厅・Dinning room
在厨房的一旁设计了一组岛台通过功能来划分区域。平时洗菜 切菜 备餐都在岛台区域餐桌是定制的整板橡木,桌腿是高透亚克力卡座与书架相结合,让空间具有延伸性。
整体空间只有卫生间隐私区域保留一部分墙体其他区域均采用玻璃镜子亚克力等元素增加透光性,保证采光最大化植物的映衬下,让餐厅区域更自然。厨房・Kitchen
业主平常多以简餐为主,不需要太大的厨房空间。但是对厨房的品质要求是极高的。所以整体厨房设计采用黑色柜体与金铜色搭配。
主卧・Master bedroom
卧室空间,业主需要简单化,部分墙面装饰留给未来生活
尽可能放空,给自己多一点呼吸空间。
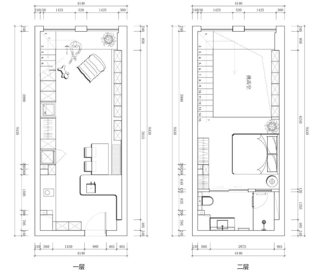
户型图
原始户型图・Before
平面布置图・After
关于收纳展示
本案特别鸣谢以下品牌
建材:地板:书香门第/移门:佳尔美/全屋定制:古思诺/瓷砖:爱因斯坦瓷砖/照明:南京光合未来
软装:第六空间国际进口C馆三楼HOMTIQUE进口家具集合店/稀木作/写意空间
END
关于习本
创建于2018年,习本“以人为本”专注于全案设计/精装修改造/软装设计/商业空,提供整体设计服务和解决方案,私人定制为每位业主实现符合业主生活习惯及喜欢的专属风格。从前期需求了解调研规划、设计方案到过程执行、设计落地,最大限度解决设计方案最终落地预想差。并形成“空间设计、软装陈设、灯光顾问”整体设计和施工落地指导服务。勤于术,忠于心
习本设计实景鉴赏
如需设计咨询,请添加客服“尔争”习本设计工作室地址:安徽省合肥市滨湖新区(庐州大道与锦绣大道交叉口)新地城1号楼510
客服
消息
收藏
下载
最近





















