查看完整案例


收藏

下载
何为美学,美学之于现实生活的意义又是什么,是浮于表面锻炼思维或陶冶情操,还是对人之为人其背后理想的诠释与继承。让我们一起走进别墅私宅,寻找自己心中的答案。
1一层客厅
纵观整个客厅空间,灰、白、黑三种色彩的抽丝剥茧,站在客厅中央宛如置身三月的江南小镇,进门处简洁的柜体设计想必是那木门的铜环,惹得那一处的动静。
大花纹的石材电视背景墙像是
在平静的湖面投入一颗石子,波澜不惊,使得那归故的行人驻足观望,好似看到什么,又好似想到什么?
灰!高级灰!
想必在时下流行的北欧风格中,这两个词经常被设计师提到,但如果高级灰碰到轻奢又是一种极致的美感。
2
一层餐厅、茶室
潇湘有雨谁知愁,怡红无泪暗自伤,行至此处,坐看典雅!雅士白大理石的圆形柱子,与餐桌和上方圆形吊顶交相呼应,仿佛包容着一切,然而茶桌、茶柜、茶桌上方行吊顶,貌似又跳了出来,诉说着爷爷泡的茶和听妈妈的话。
3二层卧室
大面积灰色的墙面不需要任何的解释,释放着卧室整个空间的干净简洁,床背景墙深灰的墙面凹出一片暗红色,配合着温暖的灯带,冷色暖色交相呼应,给人以视觉冲击。
有人说最好的照明就是找不到重点,但又好像哪里都是重点,此次卧室无主灯的照明,依靠着射灯、灯带、台灯和床头小吊灯的光源,衬托这个空间,让整个卧室层次更加分明。
除了床背景那几分艳丽,整个卧室的空间基本用到的都是冷色调,配合着暖色的光带、家具,看起来很高级、很舒服,有使人自然安静下来的魔力。
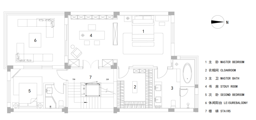
4三层卧室
三层主卧室墙面使用大面深绿色去渲染表现,再用电视背景墙、地板、家具的木饰面把整个空间的温度提升上去,配合床背景的米白色而达到平衡。卧室的门都做成了暗门,整个空间干净而立体,天花造型转角做成圆弧,很自然,提升了卧室的细节和品味。
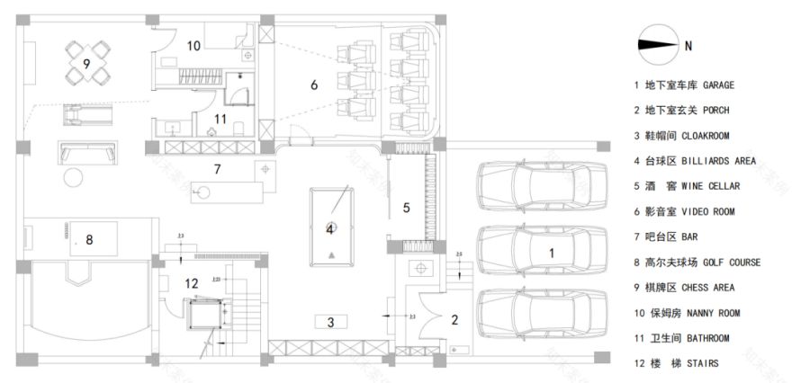
5地下室
整个地下室墙面的空间整体还是以白色为主,部分区域以空间百搭的雅士白大理石,增加线条和樱桃木墙面点缀,吧台区设计师用到钢琴烤漆木饰面,增加了细节的亮点,配合天花倒圆角的造型,让整个地下室空间美感与奢侈度瞬间提升。
从上到下,从内到外,到处都是美的诠释,不用夸张的手法,自然流露。生活亦是如此,不缺少美,缺少的是发现美的眼睛,行至此处,此处既是风景!
▲负一层
平面图
▲一层平面图
二层平面图
▲三层平面图
Project Information
项目信息
项目名称 | 时光藏艺
设计公司丨葉设计
设计总监|叶祥宝
设计团队| 徐卡迪
软装设计 | 张笑微、沈璐怡
材料应用 | 大理石、艺术漆、金属、木饰面
项目地址 | 浙江玉环
项目面积 | 567m
END-
葉设计|YEINTERIORDESIGN
葉室内设计事务所是一家高端全案设计公司,致力于从事别墅私宅、商业地产等高级定制化设计服务。我们善于从分析项目定位,针对客户需求从项目策划、空间设计、施工指导到软装落地等专业系统服务。
我们通过对居住理念和需求本质的深层思考,构建当下人对空间的物质与精神的感受,平衡生活艺术和情感体验两者的关系,为客户造就更好的感受与生活方式。对创新的不懈追求,以当代的感官体验为设计视角,将艺术与设计融入设计,致力打造高品质人性化的奢华空间。
精致与现代的完美邂逅:打造雍容气度之家
葉设计 | 用光影打造温润如玉的私宅家居!
琖宅Design记:结构艺术化的三维延伸空间
18969621351
联系地址
浙江省台州市闻学路Z中心二楼
客服
消息
收藏
下载
最近



















