查看完整案例


收藏

下载
说到奢侈品,我们会想到爱马仕,宾利,香奈儿等...
但是这些奢侈品的背后,除了优质的工艺和经久的底蕴
难免有商业包装
本案设计理念:十大奢侈品
1.生命的觉悟。
2.一颗自由,喜悦与充满爱的心。
3.走遍天下的气魄。
4.回归自然,有与自然连接的能力。
5.安稳而平和的睡眠。
6.享受真正属于自己的空间与时间。
7.彼此深爱的灵魂伴侣。
8.任何时候都有真正懂你的人。
9.身体健康,内心富有。
10.能感染并点燃他人的希望。
现实中,没有十全十美的人生,只有知足常乐的心态。今天我们要说的是其中的四点和我们的设计工作是息息相关的。
属于自己的时间和空间,就是美好时光。
看日出日落,看岁月星辰,随着外部时间的改变,内部光感也跟着改变,就是连接自然,是时·光。
华侨城
项目地点:上海市
项目名称:华侨城
空间性质:住宅
房屋类型:平层
实用面积:250平米(不含屋顶花园)设计单位:上海正饰空间设计
主创设计:孙正栋
设计团队:陈昕 杨顺 叶泽林 李廷
机电设计:顾忆青
暖通设计:李启超
施工现场管理:殷苏南
协作单位:美黎世设计
上海爱忆装饰
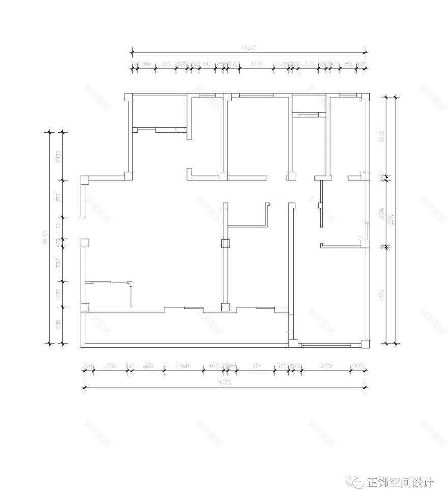
原始户型
原始户型中几处需要调整的地方:1.客厅特别深,且不规则。
2.餐厅相对客厅特别小,橱柜也比较小。
3.男业主希望再多一间小书房,女业主希望有个独立的衣帽间。
4.楼梯位置在进门的左侧,楼梯比较狭小。
改动后平面布置
新的平面中,我们把原有楼梯位置调整成了入户衣帽区,把原有的不规则客厅切割了一部分做了景观楼梯。楼梯做的很通透,电视柜做半高高度,与楼梯下的景致融为一体。这样做的好处是空间整体通透,但又相对区域分明。楼梯间下方的景致会随着屋顶花园的玻璃顶,以后和阳台相连的落地窗所透射出的光线而熠熠生辉。
餐厅和厨房我们也进行了位置调整,不仅扩大了使用面积,也打通了采光和通风。
进门正视角处我们避开走道做了一个玻璃墙植物造景,玄关墙这样做既可以在家中感受生机,也可以将光线更多的传递。
原本的走道比较狭长,有种压抑感,因此我们在几个卧室中打开一个育儿茶水区。其作用是让原本单一狭长的走道有一个多项的打断,衍生了走道两侧的空间感。其次也方便了业主一家平时的用水。
本案主材
客餐及共享区域
这个空间中,白天我们可以充分享受自然光线。晚上我们可以观赏月光与氛围灯光。
看日出日落,看岁月星辰,随着外部时间的改变,内部光感也跟着改变。
日)楼梯的踏步我们没有做立板是为了让光线能更好的通过。电视机柜做了斜面是为了扩大电视机的观看视角。沙发背景墙的铝线灯错落有致,即能作为木材相接的收口线,也可以增加居家氛围。
入户处增加了镜子和鞋凳,镜子既可以出门使用也可以反射光线和延展空间。
整体软装上用一个沉稳的灰色调,配一个温润的原木来作为基调,点缀色是一个很特别的暖红色。暖红色可以让空间产生强烈的视觉对比,增添了一丝活力。
夜顶面用LED低温铝线灯条代替了传统的反光灯槽结构,这样做可以提升空调的运转效率,降低能耗,也可以当伸缩缝使用,避免材料交界因伸缩产生的后期开裂。
做设计不是一味追求外在美,更多的是对生活方式的探索。
日餐厅两侧的柜体代替了传统的活动餐边柜和背景墙,让空间更简洁且兼顾实用性。
夜整个空间十分的通透,与大自然相通。卧室区域
主卧利用结构拐角设置了一个柜体,既可以收纳一些日常物品,也可以用来做装饰。可收缩桌板内放置了一部咖啡机,既可用来写写东西,也能做一个小的咖啡桌使用。
主卧的床背景后做了一排感应氛围灯,功能是夜晚起夜时可以不影响他人睡眠,因为光的照射方向避开了人。
衣帽间与主卫
衣帽间通向主卫,两侧的柜体一侧做了开放式,一侧用了镜面的柜门。镜面可以反射空间,开放式可以扩大视觉。即提升了空间感,也方便了使用。
儿童房
考虑到今后孩子会长大,女孩房的设计不能做的太童趣。住宅会见证孩子的成长,留下美好岁月的痕迹。
走道及客卫
设计是一种人生阅历,是对生活的提炼,对生活的感悟。家是每个人心中的期盼,无论身在哪里,有家人的陪伴和关怀,就是最好的时·光。
正饰空间设计创始人孙正栋先生
个人经历:2008年上海交通大学媒体与设计学院设计系学士学位
2008年入职中国海诚工程科技股份有限公司,第五设计所任建筑设计师。
2010年入职全筑建设股份有限公司,任全装修配套部设计组组长。
2013年成立正饰空间设计品牌,上海正饰工程设计有限公司。
主要荣誉:2012上海市优秀室内设计师
2015第六届筑巢奖住宅类提名
2019M+中国高端设计大赛上海赛区最佳人气奖
2019M+中国高端设计大赛省区TOP30
2019金住奖,上海区十大居住空间设计师
2019第十三届大金内装设计大赛优胜奖
2019CBDA中国装饰设计奖优秀作品
2019CEAPVA奖-icva亚太视觉艺术交流展
cbda中国建筑装饰协会注册高级建筑师
icda国际建筑装饰设计协会注册高级设计师
中国建筑装饰协会会员
上海装修装修行业协会会员
筑巢设计师俱乐部会员
M+设计俱乐部金牌会员
icva设计协会亚太分会会员
代表作品
住宅类平层:国信世纪海景,徐汇中凯城市之光,长宁88金廷,虹桥府邸,华润佘山九里,古北国际花园,古北瑞仕花园,翠湖天地,古北御庭,中海紫御豪庭等。住宅类别墅:汤臣高尔夫,西郊美林馆,东郊紫园,白金院邸,虹山半岛,复地北桥城,湖山在望,天籁园,剑桥景苑,长岛别墅,万顺水源墅,中景水岸等。商业类:沈阳嘉里中心,宝莲购物中心,宁波沐云谷会所,云顶澜山会所,力康集团青浦办公楼,印言网咖,极佳电竞,蒙古国马王大厦样板间,蒙古国在森别墅样板间。
客服
消息
收藏
下载
最近






















