查看完整案例


收藏

下载
点击上方蓝字关注涵瑜室内设计
蓝色是一片天,那里有明媚的阳光,也有漫布的白云;蓝色是一片海,广阔无际,一望无边;蓝色是一朵花,每一个花瓣都透出让人放掉烦恼的芬芳;蓝色是一种格调,是一种对待生活的态度,一种怀旧的纯真,一种向前的希望,一种淡泊的心境。
房屋信息项目坐标:深圳南山熙湾俊庭房屋面积:134平方装修风格:现代美式装修花费:68W本案设计:涵瑜设计团队摄影:艾荣设计故事最完美的设计,就是现实与梦的结合。每一个业主都有自己的一个梦,他们希望将直白的现实与美妙的梦境合二为一。或真实、或虚幻、或痴迷、或感悟,在半梦半醒之间,享受片刻的欢愉,承接触手可及的幸福。
本案的主人公是一位极喜欢蓝色的女士,同时她又有一个非常梦幻的姓氏—颜。设计师别出心裁,以蓝颜为主题贯彻整个作品,将饱和度高的蓝色和黄色碰撞出鲜明及有活力的生活态度。
玄关The entrance
对一个追求品质的人来说,玄关一定要足够吸睛和亮眼。精致的家具和精巧的搭配,将业主时尚的另一面发挥得淋漓尽致。最值得考究的是画作中那一抹蓝,点亮了整个空间。
客厅living room
开放型的书房是本案的亮点之一。镶嵌在墙壁上的书架大大节省了空间资源,时尚的卡座及实木书桌则增加了浓郁的读书氛围。一盏青灯,一株洁白,倚靠在客厅的一隅,陷入书中忘却尘世的悲欢。
贯穿每一个细节的孔雀蓝,让客厅充满了优雅、放松的氛围;同时,融入了亮黄色沙发椅及橘黄色顶灯的活跃感,让整个空间灵动充满生气。
将整个墙壁做成书架,是客厅设计中另外一个特色。一方面,凸显出整个作品书香味;另一方面,大大增加了家庭内的收纳空间,电视也收进了书柜中,使得空间整洁、干净,不凌乱。
色彩明丽、时尚动感、生机勃勃。仅仅在这小小的一隅,就能体现出设计者匠心独具的搭配。每一个细节都用心搭配,每一个元素都有它专属的位置,这才是生活的本真,讲究但不刻意。
餐厅Restaurant
家,温馨、和睦、其乐融融是为家。橘黄色的头灯和射灯让整个空间都酝酿出了幸福的味道。
餐厅的结构平行于玄关之间、隔离于客厅之外。仿若单独隔开的一个小世界,安静、从容、幸福、甜蜜。
主卧Master BedRoom
雍容典雅、动静皆宜。主卧的精妙就在于此,有充满美式风情的灯饰和略带古典韵味的家具交辉相应。喧闹之余,窝在飘窗的一角享受恬静;疲累之际,倚在床边品位微酣。
主卧墙面延续客餐厅主色,赋予了卧室更加单纯的绚丽,依然是一股抹不掉的灵动气韵,共同营造出鲜明,有活力的生活态度。
深邃的蓝色,却又带着跳脱的亮光,美丽的像是沉浸在无尽的静谧中的湖水。设计师在主卧的空间里巧妙地将业主喜欢的蓝色融入在了每一个细小的元素中。
儿童房
Children
小朋友的世界除了玩就是学习。作为一个注重熏陶和教育的家庭,儿童房的核心亮点就在这小小的方寸之间。科学合理的书桌满足了孩子对学习的所有需求,俏皮的动画元素和可爱立体的小挂件,则给孩子留下了足够的幻想空间。
老人房
Elderly room
老人的生活是最简单的,洗尽一生的铅华,他们的所求无非实用。老人房完全以实用为原则,复古的蓝色木床及深红色实木床柜增添了房间的古朴韵味。
厨房Kitchen
干净整洁是厨房的第一要求,而白色是最能凸显干净的颜色。整个厨房选用白色瓷砖打底搭配深色橱柜,提升了整个空间的视觉感。
卫生间
Toilet
蓝色的元素同样贯彻到两个卫生间的设计中,搭配美观实用的白色浴室柜,打造出一个安宁放松的卫生间。
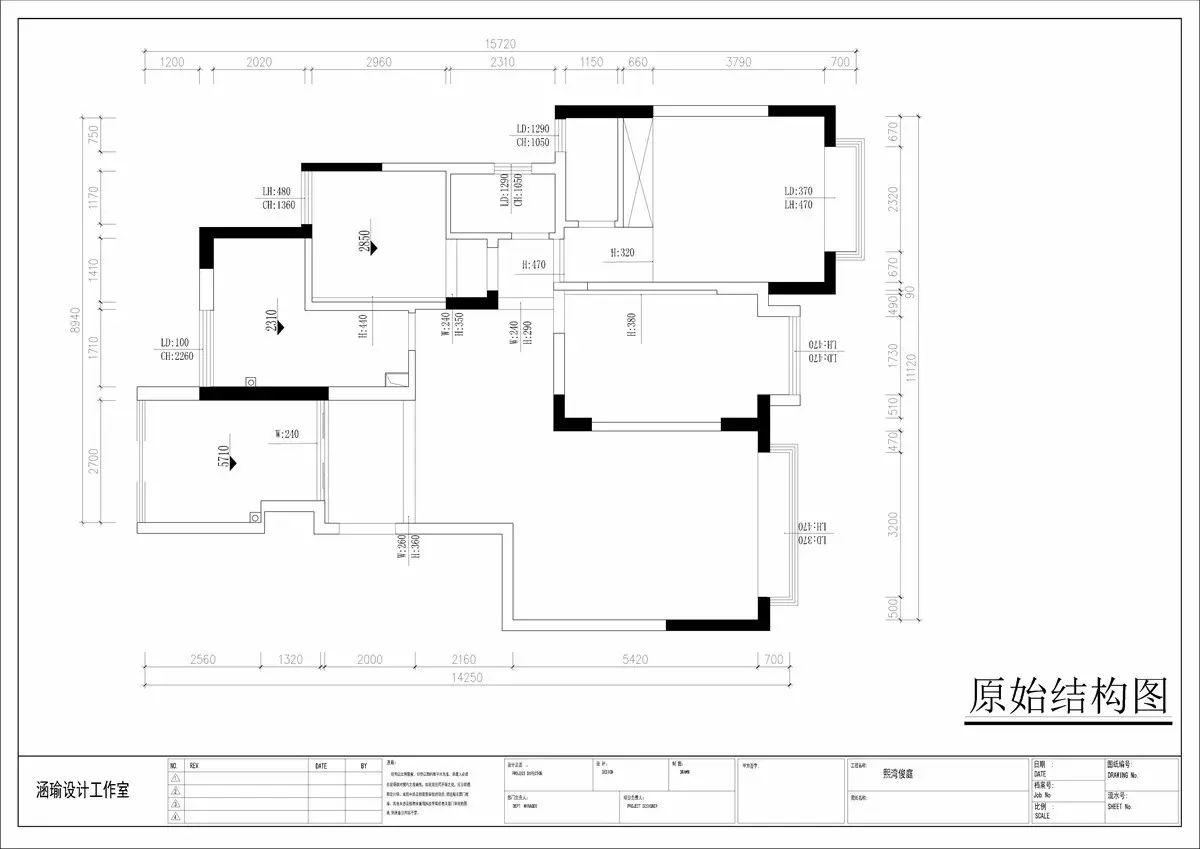
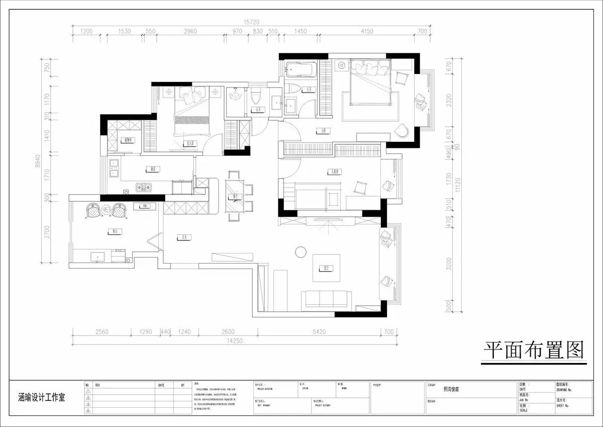
附:原始平面图+平面布置图
END
深圳涵瑜室内设计
创意总监:薛莲
创意总监:熊志伟
客服
消息
收藏
下载
最近














































