查看完整案例


收藏

下载
松雅之境,共生自然
客行长沙里, 山川郁绸缪。
西探指岳麓, 凌晨渡湘流。
长沙被称为山水洲城,元禾大千秉承此地源文脉,探索城市人居的文化属性,打造人文与自然交融的生活环境。
如同一首裹挟着岁月书香的现代诗,将自然与人文,历史与当代都化诸设计的笔端,勾勒出一座致敬历史、回应当代美好生活的会客厅。
“松雅·印”作迎客的最高礼遇,线条婉转、飘逸随行,依托起专属于万境松雅的印记符号。
“吾道南来原是廉溪一脉,大江东去无非湘水余波。”设计师延续水元素,定制打造“湘水清波”,流光溢彩、盈盈摇晃,雾纱幻影之间凝练湖湘的深厚文化底蕴。
君子之风,远于云端。一入此间,便得天下之大观。时代文化的脉络贯穿其中,四方留白围合起天幕飘逸的艺术艺术装置,方正之间亦有柔美,恰如文人雅士以书卷智慧守护玲珑之心。
继续向前,诚朴会客厅安置于此。此间艺术品与家具皆以东方审美为基准,又用当代手法进行解读,光影流转、诗意流淌、绿植点缀,人文哲思与自然的四时风雅相看两不厌。
肌理、色调,内敛简约
体量、块面,温暖治愈
浑然一体的克制之美,潜入空间每一个角落,宁静安然之美的归家氛围,氤氲而生。
"朴石咖啡"作为空间与体验者的链接纽带,人们偏安此处,暂时抛开都市的喧嚣,静坐品尝一杯醇厚咖啡,便得身心放松之感。
随心而入,步入一处可观、可感、可体会的“抱朴书局”,精神世界之美好、心灵请示之浪漫,于此如诗意般呈现,沉溺一片浓厚书香底蕴的美妙境地。
光影赋诗,自然呈画少了些许直白注入朦胧情调铺叙生活真意浅色系空间中随感而定,随心而动交互随时发生
迈着从容的步伐围坐在阳光下将精神安放在万物共生的光阴里心随意动且安放情怀的诗意
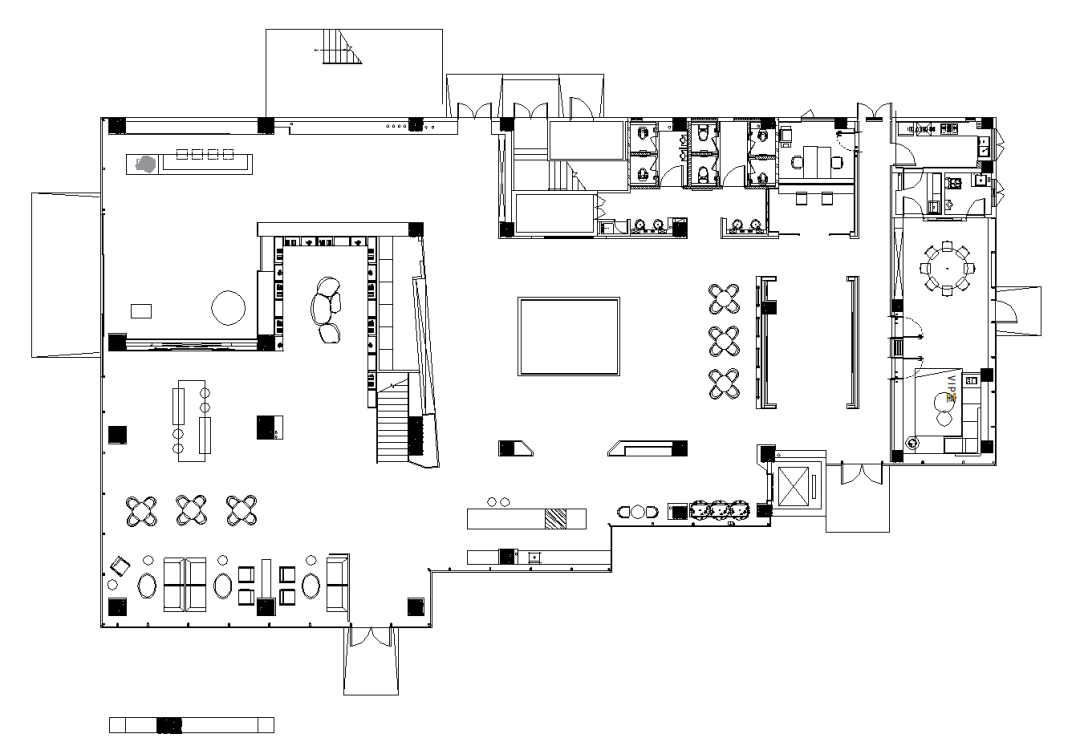
1F平面布置图
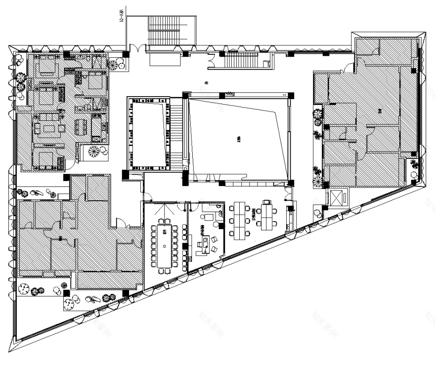
1F平面布置图
项目全名:五矿万境松雅销售中心
项目地址:湖南长沙
软装设计:元禾大千
硬装设计:京冶设计
设计时间:
2022.02
完工时间:
2022.05
空间面积:1300
甲方单位:五矿地产华中区域公司
特别支持:朱红黎 王连发 邓晶晶 贾鑫 潘雯雯
摄影团队:失窃的未来
客服
消息
收藏
下载
最近


































