查看完整案例


收藏

下载
城市是文化的容器,空间则承载了文化的语汇,在都市化进程所构建的当代语境中,如何将桂林荔浦这座根植于山水之间的城市定格,成为了本次的首要思考要义。
文震亨于《长物志》一书中,开篇直叙"居山水间者为上";寄情山水,归隐田园,曾是无数文人骚客向往的生活境界。隅居一方禅意山居,物外高隐,借境调心——古人对理想居所的审美与实践,亦为今人之所求。
此城环抱群山,得天独厚的气候条件,得以作为“都市绿洲”的存在,原生自然与人文蕴涵是空间格调的基底。
桂林荔浦,一片根植于山水之间的秘境,如同画卷般徐徐展开,抬头可见周围穿透屋顶的上层枝叶,让枝叶筛过日光温柔荡漾在墙,无声摇曳的光束宛如隐身丛林下,游离于虚实间。
借实入虚,一枝一木皆为灵魂。在东方秩序美学中,借鉴中轴对称关系,局部运用透景、借景等手法,模糊室内与室外的界限, 体验无边界感的东方美学空间。
空间色彩以大面积原木色为基调,点缀空间的是植物历经时间沉浸出最美的状态,呈现出一种朴素而安静的生命本质。
山水纱幔的灯饰与餐桌上的青苔相得益彰,真正做到“不论身于何处都将把景看”。寻回清幽雅致状态,让节奏慢下来,觉醒生活享受空间。
自然的细节是简洁而又细腻,如工笔画一般细致的笔触。此景唤做一副画,细节的存在便是笔底春风,丹青不渝。
射灯下的艺术雕塑指向空间调性,是艺术与生活的交融。深浅两木相互成全着,混入米白色的步调,是静谧的味道,是细腻,是东方艺术的留白。
“窗外悠悠若登仙,曈曈丽日藏远天。拨开山间半晌后,依稀梦醒在人间。”静坐于此,遥看山水,光阴止步,仿若一席绢画。
虽不见文房四宝,却处处都是笔墨纸砚的缩影。“可以调素琴,阅金经。无丝竹之乱耳,无案牍之劳形”寻一静谧之处,陶冶情操,升华自我。
摇坐于此,透过阳光穿透手指间的第一感觉,享受一刻平淡简朴之美,不去干预自然的状态,沉寂于带着空寂感的时空。
纯洁净白的女儿房亦是干净亦是跳跃。拥抱大自然,沉浸在灵动之间,述说着时间的脚步和艺术生活的美好。地毯上的渐变条纹仿佛跳动的钢琴键,床上那灰白鲸犹如在钢琴的韵律中游躺。
克莱因蓝色系为男孩房主调,打破原有东方的固有思维,把车模的零散世界带入凡尘,跳脱的空间随处可见的车模,宣誓着独特的主权。车模解构重组,便是一幅画,打破格局的阻隔,质感触手可及。
茶余铺一笺素纸研墨提笔色侵书帙晚隐过酒罅凉雨洗娟娟净风吹细细香听风闻香
项目介绍
项目名称:天誉翡翠谷220户型
项目地址:桂林荔浦
开发单位:广州天誉地产
业主团队:冯曦刘灼林
软装设计:觉度设计
硬装设计:奕卓设计
项目面积:296m²
摄影团队:谭冰
完成时间:2020.09
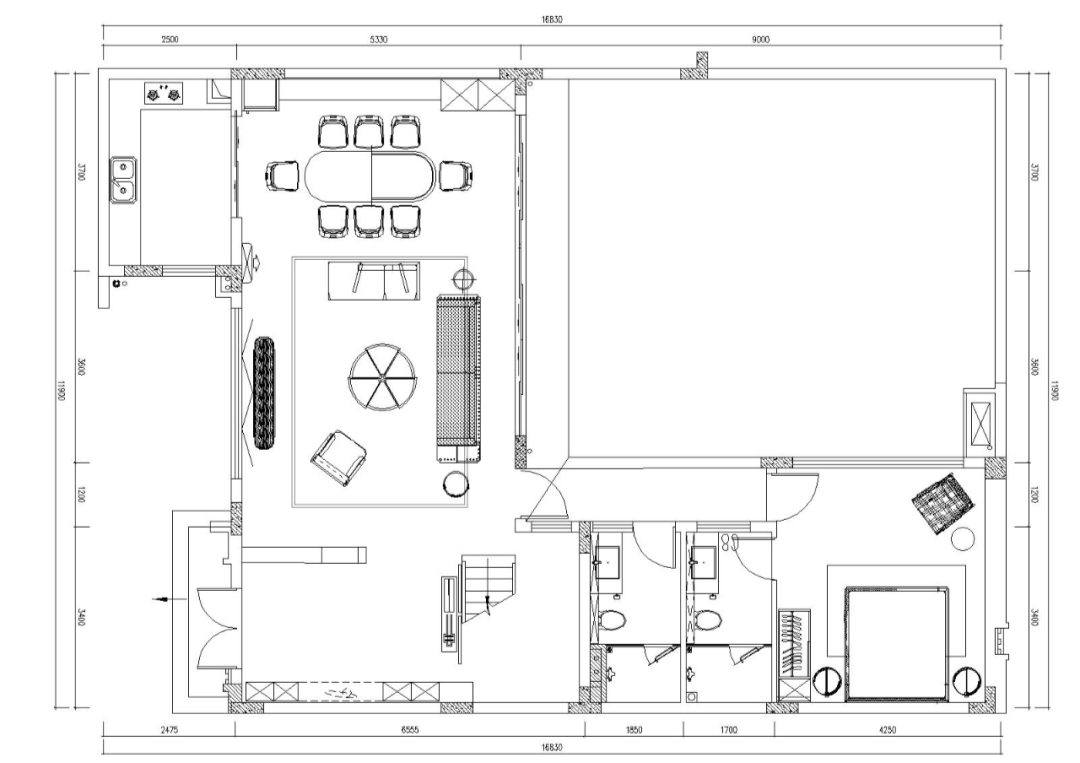
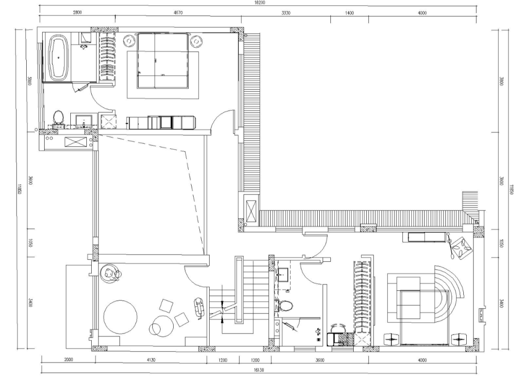
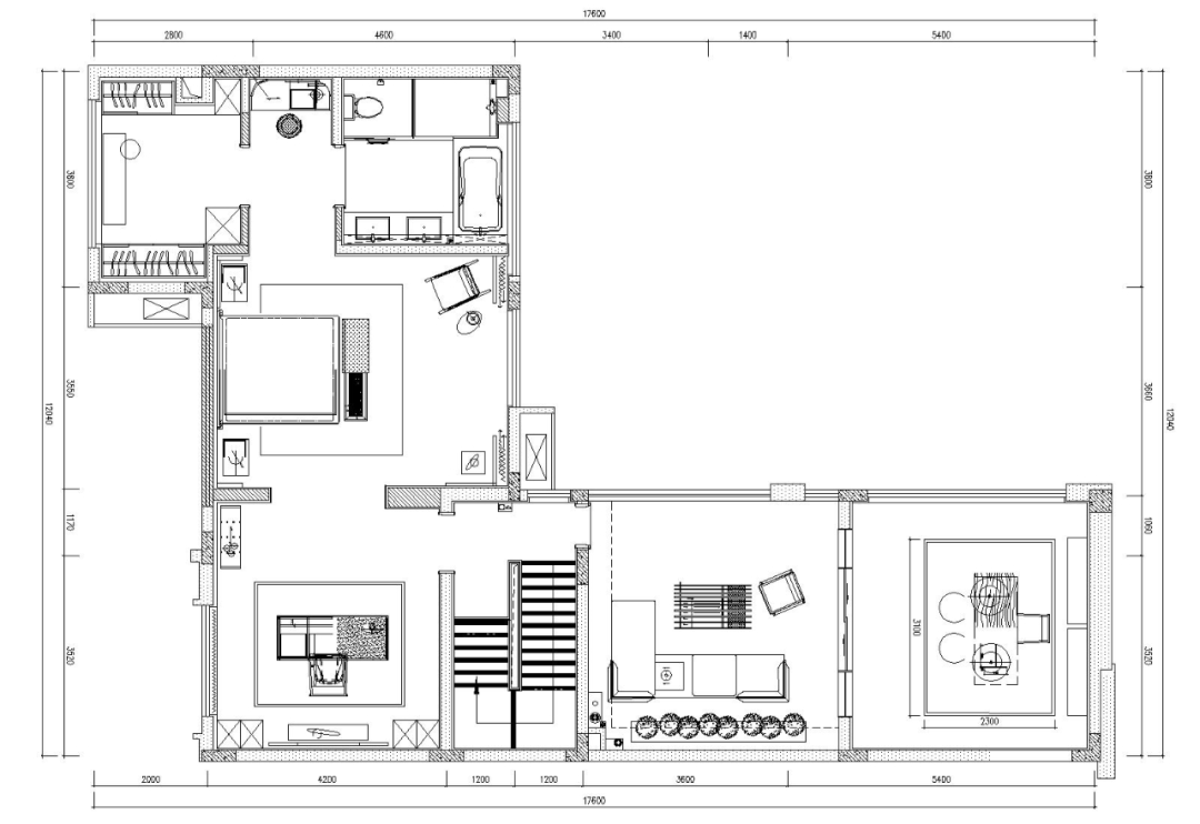
平面布局图
一层平面布置图
二层平面布置图
三层平面布置图
邬叶红觉度合伙人 | 配饰艺术总监
ZOODO觉度设计,空间策略美学倡导者,秉承“以觉筑形,以形度念”的设计理念,主张用策略思维不断放大设计美学价值。致力于室内空间设计、陈设软装领域,研究空间与人的需求和互动,探寻环境、建筑、人文、历史源流的悠远厚重,承载建筑几何美学,用空间为媒介觉知物质与精神之间的建构意象,最终营造出一种崭新的精神意境,实现空间美学、文化、艺术与功能的合一,进而觉行圆满,修成正果。
公司以合伙人制度吸纳更多专业的设计与管理人才,团队主创人员均具备多年一线设计事务所从业背景,融合空间设计、商业策划、项目管理等多元领域,通过对国际设计潮流和未来设计趋势的敏锐洞察,探索当代设计与商业价值的更多可能性,专注于地产空间、总部办公空间、商业空间等领域设计服务。
从而与客户建立了长期稳定、相互信任、共同发展的合作伙伴关系,充分得到万科、华润置业、远洋集团、招商局、融创中国、天誉地产等众多知名地产商的高度认可,为客户定制超预期的从空间策略建构到执行的美学整合方案。
客服
消息
收藏
下载
最近



































