查看完整案例


收藏

下载
越简约,越能看出事物的面相。
The more simple, the more you can see the face of things.
项目地址 | Address:绍兴元城大厦
设计师 | Designer:潜守政洛佳炜
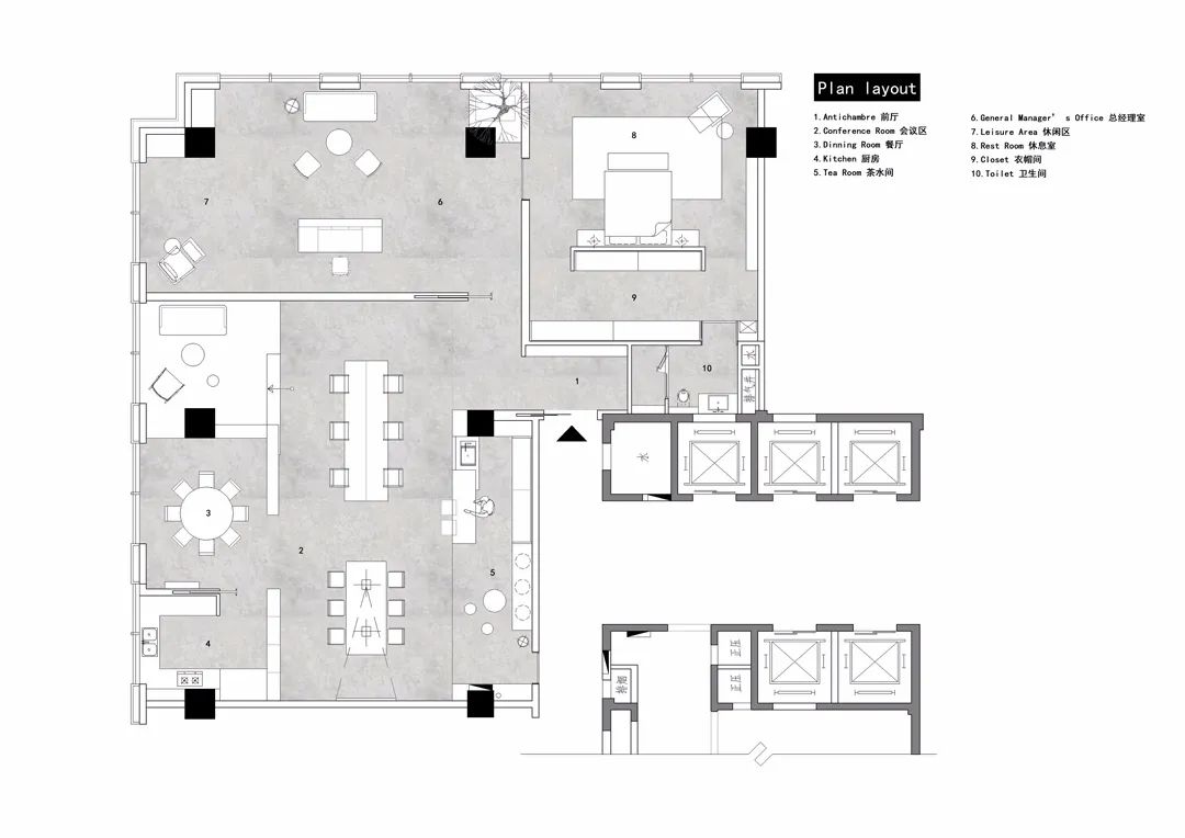
项目面积 | Area:400㎡
软装陈列 | Designer:仰些空间美学MISS WANG
视觉表现 | Designer:仰些空间美学Mr.PAN
空间
前厅
办公区
休闲吧
休闲区
会客餐厅
独立办公室
独立休息室
荣誉
(可滑动哦)中央电视台《空间榜样》《交换空间》特邀设计师
绍兴文理学院美术学院特邀讲师
(绍兴青设会联合创始人
2018年芒果奖全国10强
2018年HI,DESIGN 年度10佳
2018年40 UNDER 40中国(浙江)设计杰出青年
2018 欧派梦想设计家别墅组金奖
2018年 IDS年度10佳别墅设计师
2019金堂奖优秀软装陈设
2019年40 UNDER 40中国(浙江)设计杰出青年
2019第九届筑巢奖别墅组全国10佳
2019芒果奖别墅组全国10佳
绍兴/地址:13757577507座机:0575-88618711XZ7507tz.design杭州
地址:杭州元巢创意园1-140室
17767179598
|预约设计师
版权声明
可以
“推送”或“分享”给身边的朋友
关注我们,关注生活
客服
消息
收藏
下载
最近

















