查看完整案例


收藏

下载
关 于 空 间 的 设 计
O N T H E D E S I G N O F S P A C E
「
One's freedom
」
一 野 设 计 ▏苏 州 ▏蓝 光 天 悦 城 ▏140㎡
享受一个自由
的
空间,让生活拥有更多的乐趣
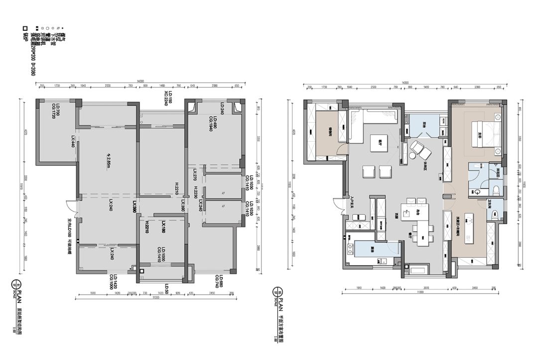
本案原始建筑结构户型很方正,是
一个
正常的140m²的户型,很幸运的是遇到了一位有追求、有审美、又自律的瘦子(业主),她只需要一个卧室、要超多的储物空间;然后加上室内的承重墙位置比较理想。
那么改变就开始了,首先我们想让空间做得更开放
,增加区域之间的互动性,
让业主更好的享受空间,
让更多的阳光可以照进空间,让空间更
自由更
自然。
所以我们对墙体结构的做了很大的改动
进门入户设计了一个包裹性的玄关空间,既解决了原来空间的一眼望穿,又让回家多了一份仪式感。
进入空间后,是一个完全开放的客厅、休闲区、西厨、餐厅
休闲公共空间与主卧之间设置了一面白玻,两者空间在不发一语的情境下也能透过光达到共存、共享
主卧室为一个套房,卧室/卫生间/衣帽间,卫生间采用全透明的白玻,贯穿卧室与衣帽间,让卧室走到衣帽间的有一种干净、纯粹、轻松
卧室衣帽间内设置了独立的马桶区,化妆区洗手台,可以满足朋友来访时双动线的使用,也不影响主卧室的隐私
往期推荐阅读
九龙仓时代上城 | 385m² | 现代风格
龙湖时代天街 | 140m² | 日式风格
龙湖时代天街 | 140m² | 美式轻奢
绿地晶萃 |160m² | 现代风格
客服
消息
收藏
下载
最近






















