查看完整案例


收藏

下载
加成花园 & 书香学府
小巧的空间里面五脏俱全
二手房每次的改造都是属于新生的开始
空间色彩带给人的感受比任何单个的物体都要真实
浓烈艳丽的色彩直白而强势它的意义一目了然让人无法忽视
但越是简单的、平凡无奇的颜色越能诠释复杂深邃的生活意义
整体空间基调以白色为主,投射的光线,明亮的灯光等都在视觉上放大了空间。运用开放性设计手法,令空间开阔统一,洋溢出年轻化气息。
明亮纯净的空间
相互制约、相互抵消
轻描淡写的述说着清新优雅
弱化边缘的柔和氛围
温柔高级的灵动质感
在这个黑白简约的精致空间里
每个单品的选择都是质感且时髦
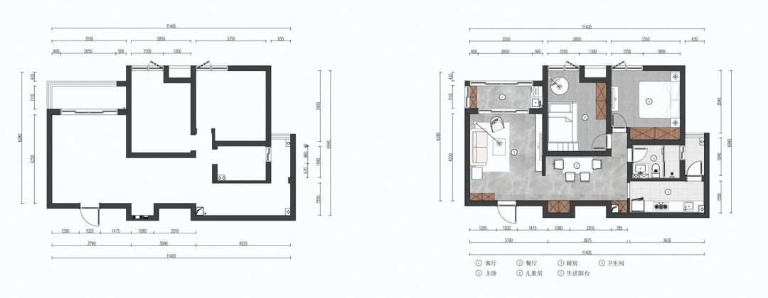
因为室内空间面积并不是很开阔,在满足各个功能区的同时也要保证整个空间的行走动线是流畅。电视背景墙用瓷砖铺贴,而中间部分镂空,拉伸视觉感的同时使空间更加通透。
开放式的布局让室内更加通透明亮
各个功能区的联系也显得更加紧密
定制的整面餐边储物柜满足了储物需求
结合造型简洁而优雅的皮革餐椅搭配大理石餐桌,提升了整个空间的质感。
客餐厅呈狭长式布局,在立面与吊顶连接处,融入黑色金属嵌条
既起到明确吊顶、墙面、地面三者关系的作用,又增加整体层次感
木质背景墙的暗门设计,保证了视觉一体呈现
柔和的色调让人卸下疲惫,进而营造出轻松、惬意的气氛
洗浴室的墙地满贴米灰色砂岩砖而镜柜和浴室柜也具有丰富的储物功能黑白灰经典色系的穿插,依旧可以营造出空间的利落清爽
由于卧室是睡眠区域,设计师则以柔和的灰色调子进行呼应。精心挑选的装饰画也迎合了整体色系,旨在达到屋主对艺术追求的同时,保证家应有的舒适度与温馨感。
儿童房简洁大方
木色的床简单的床品
墙壁上精心挑选的挂画
使整个空间时尚又不失俏皮
所有用材设计都维持了全屋的轻盈、纤敏的线条
实木几何拼接系列家具,极简的形式美,木质天然的肌理触感
简单的颜色变化构造出清晰的轮廓
无处不在的细节透露着这个家的质感,也是业主对生活的追求
改造前
往期推荐阅读
明珠城 | 120m² |北欧风格
Holiday | 210m² | 简约风格
荷澜庭 | 140m² | 现代风格
朗诗绿郡|142m²|美式轻奢
客服
消息
收藏
下载
最近
























