查看完整案例

收藏

下载
大盛说:
每一个项目,从建立合作到设计再到施工落地,我们都会付出大量的时间和精力,只望每一套作品都能成为精品。
■
故事
|
Story
我们给这个家取名《予花》,布局推翻传统逻辑搭配,结合业主需求以及喜好进行格局调整,将原本的传统套间,改造成居家与花艺工作室汇聚一室,相互独立但又不隔离。满足业主对“法式”浪漫想象,实现效果落地。
完美与否,完全取决于个人心中的标准,何为温暖,何为适宜,同样需要由住进房子的人决定。更何况,居所是居住者的理想世界。
■
项目信息
|
Information
【项目地址】南宁市·江川悦城
【项目户型】3 室 2 厅 1 厨 2 卫
【实用面积】86 平方
【硬装费用】12 万(含拆墙/砌墙/水电/开槽/防水/回填/木工/油工的人工与材料,瓦工人工费)
硬装设计|大盛设计
软装设计|大盛设计
服务模式|设计·施工·全案
空间氛围|法式风格
■
实拍图 VS 效果图
|
Actual picture vs effect picture
实拍图 VS 效果图 1:1 还原图纸设计,设计再好,不能把作品呈现出来也是白搭。
效果图 VS 实拍图
效果图 VS 实拍图
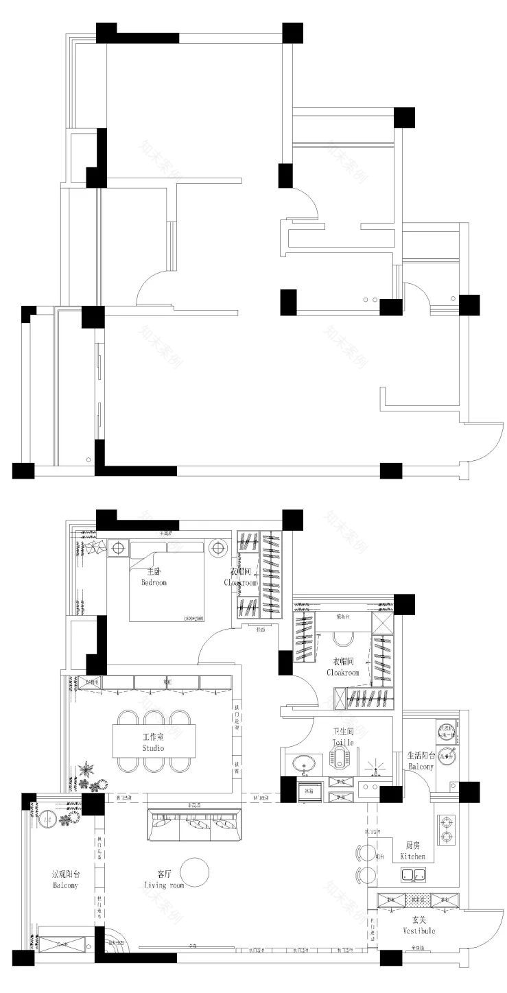
■ 平面规划 | Plane planning
■ 设计诉求:办公与居家实用功能分离
■ 设计重点:重新规划了公区的关系,打破单调,增加了空间的延伸感。入户的交代简单,改良了单调乏味的单色系,以储物来增加实用性。厨房面积局促,拆除墙体之后改造为开放式。改变次卫格局,让出部分面积放置冰箱及展示柜,还原一个方正区域,待后期业主招生培训场地备用。我们通过结构改动和空间的相互串联,弱化了空间之间的边界感,增强了动静区域的视野联系。
■ 作品展示 | Design concept
空间中悠然浪漫的细节,让房子的属性已经远远超出了原本只是居住的目的。它自身携带着沉浸式地放松,并拥有愉悦美感。
本案中,设计师摒弃一些传统家装上的“束缚”,强调生活的纯粹。去掉多余的色系,硬装都采用奶油白和极少数森林绿,给软装留足了空间加入更多的生活色彩。大面积留白,让实用主义与审美价值完美融合。
我们以自然、极简、原始为主题,强调了空间概念和多样性元素,创造出一个舒适的空间。
带着法式的精致而来,弧形圆门拱造型让空间感更加通透,简洁中带出几分活泼。
如果只是单一的墙面会稍显单调,于是将阳台外部设计为拱门形状。在增添空间仪式感的同时,引入的自然光线,赋予由外向内的延伸感更有趣的意味。
生活中最需要的是保持新鲜感,固化的空间能吸引目光,时间长久之后氛围就弱了。
多元化的无拘无束,可以在后期自由随心的进行家居装饰摆放。
把我喜欢的一切都放进家里,包括这个小壁炉和“老鼠洞”壁龛。
休闲+生活一体的大阳台,实用和颜值都要~
把我喜欢的一切都放进家里,这才是自由随性的小日子。
空间之间互相渗透流动,充满趣味性。
通过少而精的家居饰品表现空间纯粹感受,营造出一种随性、和谐放松的状态。
一镜、一桌、一椅,没有多余元素的堆砌,是设计师想要呈现的设计理念与此间屋主的生活方式。
精致优雅的角花,点缀提升了整个空间的层次感,颜值满分。
多个拱形门组合,就有了空间的过渡感,又进行了一定的功能分区。
拱门造型与小吊灯微光的加入,让空间又多了一份慵懒的氛围。
卫生间干区壁龛,搭配金色小五金,简单纯粹,将空间做到极致。
水磨石搭配一抹并不繁复的绿色,让空间有了更多的清新暖意。
没有繁杂的装饰,体现了屋主所追求的简单、清爽。
入户的交代简单,改良了单调乏味的单色系,以储物来增加实用性。
不融入生活感情的细节配件,是没有滋味可言的。
偏爱它圆润优美的弧线,形状对称、修长,有垂直拉伸之感,象牙白配上简约拱形,每一扇都是通往其他空间的仪式感!
遵循内心的感受,并不十分刻意的去追求独特的风格。
■设计前 | Before design
施工过程
| Construction
施工记录点点滴滴
好的作品,离不开严格的工地管理
我们只管不断打磨好作品
这就是让更多客户选择你最简单的套路
永久有效
大盛施工-施工前期工作:拆墙,砌墙,水电
■
大盛施工-特色壁龛制作全记录
■大盛施工-贴砖
■大盛施工-木工
■大盛施工-腻子,乳胶漆,喷漆
■大盛施工-安装玻璃砖,PU 石膏线,飘窗石
■ 大盛施工-柜类安装
■ 大盛施工-灯具安装
大盛施工-收尾工作
■
大盛施工-硬装交付
■
公司简介
|
Company profile
大盛设计事务所,是一个优秀的年轻的设计+装修+全案团队。自营施工队,无恶意增项,设计与施工无缝对接。秉承创新精神,坚持坚持良心、匠心、用心。我们融合设计、商业和文化、艺术之间的关系,赋予每个设计以鲜明的个性和旺盛的生命力。专注于休闲娱乐、精品零售、高端餐饮、商业办公、住宅别墅等空间设计。
■
我们的荣誉
|
Honor
2021 年 40 UNDER 40(广西)设计杰出青年
2021 年 ICS 国际色彩空间设计奖
2021 年 IDOL 锋范奖铜奖
2020 年 40 UNDER 40(广西)设计杰出青年
2019 年法国 INNODWSIGNPRIZE 国际创新设计大奖
2019 年 IDOL 锋范奖铜奖
2019 年 IDOL 锋范奖优秀奖
2018 年金城奖新锐设计师
2018 年 IDOL 锋范奖优秀奖
客服
消息
收藏
下载
最近











































